|
|
|
| Larry Stein Oklahoma County Assessor (405) 713-1200 - Public Access System |
|
|
|
|
|
|
| Real Property Display - Screen Produced 4/4/2026 10:44:36 AM | ||||
|---|---|---|---|---|
| Account: R130642560 | Type: Residential | Location: |
1123 NW 98TH ST |
|
| Building Name/Occupant: |
|
OKLAHOMA CITY |
||
| Owner Name 1: | PERKINS KEYSHAWN D |
Parcel PIN#: |
3714-13-064-2560 |
|
| Owner Name 2: | 1/4 section #: |
3714 |
||
| Owner Name 3: | Parent Acct: |
|
||
| Billing Address: | 1123 NW 98TH ST | Tax District: |
|
|
| City, State, Zip | OKLAHOMA CITY, OK 73114-4809 | School System: |
Oklahoma City #89 |
|
|
Country: (If noted) |
Land Size: |
0.1607 Acres |
||
|
Land Value: 18,200 |
|
|||
|
Sect 29-T13N-R3W Qtr SE |
ALTAVUE ADDITION
Block
006
Lot
000
|
|||
| Full Legal Description: ALTAVUE ADDITION 006 000 LOTS 19 & 20 |
| Photo & Sketch (if available) | Comp Sales (ordered by relevancy) |
|
||||||||||||||||||
|
||||||||||||||||||||
| Value History (*The County Treasurer 405-713-1300 posts & collects actual tax amounts. Contact information HERE) | |||||||||||||
|---|---|---|---|---|---|---|---|---|---|---|---|---|---|
| Year | Market Value | Taxable Mkt Value | Gross Assessed | Exemption | Net Assessed | Millage | Est. Tax | Tax Savings | |||||
|
2026 |
140,000 |
140,000 |
15,400 |
0 |
15,400 |
122.90 |
$1,893 |
$0 |
|||||
|
2025 |
140,000 |
140,000 |
15,400 |
0 |
15,400 |
122.90 |
$1,893 |
$0 |
|||||
|
2024 |
137,000 |
135,975 |
14,957 |
0 |
14,957 |
123.89 |
$1,853 |
$14 |
|||||
|
2023 |
129,500 |
129,500 |
14,245 |
0 |
14,245 |
122.82 |
$1,750 |
$0 |
|||||
|
2022 |
100,000 |
85,692 |
9,424 |
0 |
9,424 |
117.63 |
$1,109 |
$185 |
|||||
| Property Account Status/Adjustments/Exemptions | ||||||
|---|---|---|---|---|---|---|
| Account # | Exemption Description | Amount | ||||
| No adjustment/exemption records returned. | ||||||
| Property Deed Transaction History (Recorded in the County Clerk's Office) | ||||||||||
|---|---|---|---|---|---|---|---|---|---|---|
| Date | Type | Book | Page | Price | Grantor | Grantee | ||||
|
5/5/2025 |
|
Deeds |
$159,500 |
FRANCOR LLC |
PERKINS KEYSHAWN D |
|||||
|
5/9/2022 |
|
Hmstd Off & |
$0 |
AMSOLUTIONS LLC |
FRANCOR LLC |
|||||
|
2/18/2022 |
|
Mult Parcel |
$160,000 |
WARD MICHEL L |
FRANCOR LLC |
|||||
|
4/23/2014 |
|
Deeds |
$67,500 |
ATLAS BUILDERS LLC |
WARD MICHEL L |
|||||
|
3/12/2014 |
|
Deeds |
$35,500 |
MARTIN JOANNE |
ATLAS BUILDERS LLC |
|||||
| Last Mailed Notice of Value (N.O.V.) Information/History | ||||||||
|---|---|---|---|---|---|---|---|---|
| Year | Date | Market Value | Taxable Market Value | Gross Assessed | Exemption | Net Assessed | ||
|
2025 |
02/14/2025 |
140,000 |
140,000 |
15,400 |
0 |
15,400 |
||
|
2024 |
02/13/2024 |
137,000 |
135,975 |
14,957 |
0 |
14,957 |
||
|
2023 |
02/14/2023 |
129,500 |
129,500 |
14,245 |
0 |
14,245 |
||
|
2022 |
03/15/2022 |
100,000 |
85,692 |
9,424 |
0 |
9,424 |
||
|
2021 |
03/19/2021 |
89,500 |
81,612 |
8,977 |
0 |
8,977 |
||
| Property Building Permit History | |||||||||||
|---|---|---|---|---|---|---|---|---|---|---|---|
| Issued | Permit # | Provided by | Bldg # | Description | Est Construction Cost | Status | |||||
| No Building Permit records returned. | |||||||||||
| Click button on building number to access detailed information: | ||||||
|---|---|---|---|---|---|---|
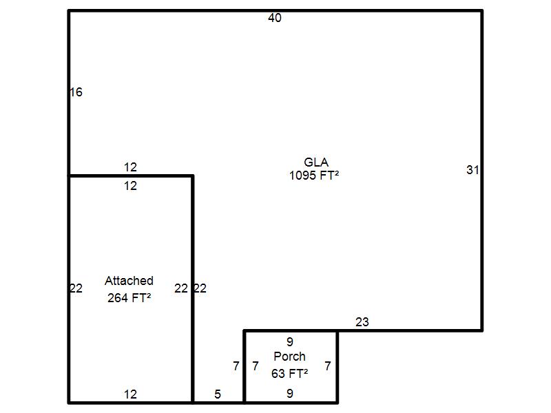
| Bldg # | Vacant/Improved Land | Bldg Description | Year Built | SqFt | # Stories | |
|
1 |
Improved |
Ranch 1 Story |
1963 |
1,095 |
1 Stories |
|