|
|
|
| Larry Stein Oklahoma County Assessor (405) 713-1200 - Public Access System |
|
|
|
|
|
|
| Real Property Display - Screen Produced 4/4/2026 11:24:11 AM | ||||
|---|---|---|---|---|
| Account: R130646220 | Type: Residential | Location: |
9705 N UNIVERSITY AVE |
|
| Building Name/Occupant: |
|
OKLAHOMA CITY |
||
| Owner Name 1: | CARDONA MARIA ELENA TRS |
Parcel PIN#: |
3714-13-064-6220 |
|
| Owner Name 2: | CARDONA MARIA ELENA REV LIV TRUST | 1/4 section #: |
3714 |
|
| Owner Name 3: | Parent Acct: |
|
||
| Billing Address: | 9705 N UNIVERSITY AVE | Tax District: |
|
|
| City, State, Zip | OKLAHOMA CITY, OK 73114-4720 | School System: |
Oklahoma City #89 |
|
|
Country: (If noted) |
Land Size: |
0.1607 Acres |
||
|
Land Value: 18,200 |
|
|||
|
Sect 29-T13N-R3W Qtr SE |
ALTAVUE ADDITION
Block
017
Lot
000
|
|||
| Full Legal Description: ALTAVUE ADDITION 017 000 LOTS 9 & 10 |
| Photo & Sketch (if available) | Comp Sales (ordered by relevancy) |
|
||||||||||||||||||
|
||||||||||||||||||||
| Value History (*The County Treasurer 405-713-1300 posts & collects actual tax amounts. Contact information HERE) | |||||||||||||
|---|---|---|---|---|---|---|---|---|---|---|---|---|---|
| Year | Market Value | Taxable Mkt Value | Gross Assessed | Exemption | Net Assessed | Millage | Est. Tax | Tax Savings | |||||
|
2026 |
106,000 |
106,000 |
11,660 |
0 |
11,660 |
122.90 |
$1,433 |
$0 |
|||||
|
2025 |
105,500 |
105,500 |
11,605 |
0 |
11,605 |
122.90 |
$1,426 |
$0 |
|||||
|
2024 |
76,500 |
50,251 |
5,527 |
0 |
5,527 |
123.89 |
$685 |
$358 |
|||||
|
2023 |
73,500 |
47,859 |
5,263 |
0 |
5,263 |
122.82 |
$647 |
$346 |
|||||
|
2022 |
54,500 |
45,580 |
5,012 |
0 |
5,012 |
117.63 |
$590 |
$115 |
|||||
| Property Account Status/Adjustments/Exemptions | ||
|---|---|---|
| Account # | Exemption Description | Amount |
|
R130646220 |
5% Capped Account |
0 |
| Property Deed Transaction History (Recorded in the County Clerk's Office) | |||||||
|---|---|---|---|---|---|---|---|
| Date | Type | Book | Page | Price | Grantor | Grantee | |
|
6/28/2024 |
|
Deeds |
$113,500 |
KERBY INVESTMENTS LLC |
CARDONA MARIA ELENA TRS |
||
|
1/19/2017 |
|
Mult Parcel |
$372,000 |
WOODRUM ENTERPRISES INC |
KERBY INVESTMENTS LLC |
||
|
1/31/2000 |
|
Deeds |
$0 |
SUPREME PROPERTY INVESTMENT GROUP INC |
WOODRUM ENTERPRISES |
||
|
3/3/1998 |
|
Historical |
$17,000 |
KILFOY K K |
SUPREME PROPERTY INVESTMENT |
||
|
4/1/1984 |
|
Historical |
$0 |
|
KILFOY K K |
||
| Last Mailed Notice of Value (N.O.V.) Information/History | ||||||||
|---|---|---|---|---|---|---|---|---|
| Year | Date | Market Value | Taxable Market Value | Gross Assessed | Exemption | Net Assessed | ||
|
2026 |
02/23/2026 |
106,000 |
106,000 |
11,660 |
0 |
11,660 |
||
|
2025 |
02/14/2025 |
105,500 |
105,500 |
11,605 |
0 |
11,605 |
||
|
2024 |
02/13/2024 |
76,500 |
50,251 |
5,527 |
0 |
5,527 |
||
|
2023 |
02/14/2023 |
73,500 |
47,859 |
5,263 |
0 |
5,263 |
||
|
2022 |
03/15/2022 |
54,500 |
45,580 |
5,012 |
0 |
5,012 |
||
| Property Building Permit History | |||||||||||
|---|---|---|---|---|---|---|---|---|---|---|---|
| Issued | Permit # | Provided by | Bldg # | Description | Est Construction Cost | Status | |||||
| No Building Permit records returned. | |||||||||||
| Click button on building number to access detailed information: | ||||||
|---|---|---|---|---|---|---|
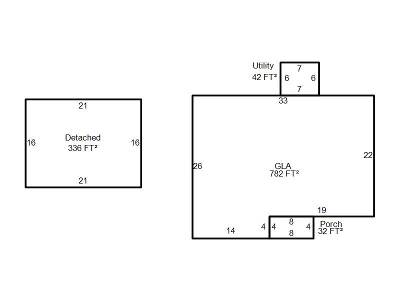
| Bldg # | Vacant/Improved Land | Bldg Description | Year Built | SqFt | # Stories | |
|
1 |
Improved |
Ranch 1 Story |
1947 |
782 |
1 Stories |
|