|
|
|
| Larry Stein Oklahoma County Assessor (405) 713-1200 - Public Access System |
|
|
|
|
|
|
| Real Property Display - Screen Produced 4/4/2026 11:22:56 AM | ||||
|---|---|---|---|---|
| Account: R130647365 | Type: Residential | Location: |
1445 NW 99TH ST |
|
| Building Name/Occupant: |
|
OKLAHOMA CITY |
||
| Owner Name 1: | 10 SQUARE LLC |
Parcel PIN#: |
3714-13-064-7365 |
|
| Owner Name 2: | 1/4 section #: |
3714 |
||
| Owner Name 3: | Parent Acct: |
|
||
| Billing Address: | 8801 N WESTERN AVE | Tax District: |
|
|
| City, State, Zip | OKLAHOMA CITY, OK 73114-2408 | School System: |
Oklahoma City #89 |
|
|
Country: (If noted) |
Land Size: |
0.1607 Acres |
||
|
Land Value: 18,200 |
|
|||
|
Sect 29-T13N-R3W Qtr SE |
ALTAVUE ADDITION
Block
023
Lot
000
|
|||
| Full Legal Description: ALTAVUE ADDITION 023 000 LOTS 29 & 30 |
| Photo & Sketch (if available) | Comp Sales (ordered by relevancy) |
|
||||||||||||||||||
|
||||||||||||||||||||
| Value History (*The County Treasurer 405-713-1300 posts & collects actual tax amounts. Contact information HERE) | |||||||||||||
|---|---|---|---|---|---|---|---|---|---|---|---|---|---|
| Year | Market Value | Taxable Mkt Value | Gross Assessed | Exemption | Net Assessed | Millage | Est. Tax | Tax Savings | |||||
|
2026 |
114,500 |
87,773 |
9,654 |
0 |
9,654 |
122.90 |
$1,187 |
$361 |
|||||
|
2025 |
113,000 |
83,594 |
9,194 |
0 |
9,194 |
122.90 |
$1,130 |
$398 |
|||||
|
2024 |
111,500 |
79,614 |
8,757 |
0 |
8,757 |
123.89 |
$1,085 |
$435 |
|||||
|
2023 |
106,500 |
75,823 |
8,340 |
0 |
8,340 |
122.82 |
$1,024 |
$414 |
|||||
|
2022 |
82,000 |
72,213 |
7,943 |
0 |
7,943 |
117.63 |
$934 |
$127 |
|||||
| Property Account Status/Adjustments/Exemptions | ||
|---|---|---|
| Account # | Exemption Description | Amount |
|
R130647365 |
5% Capped Account |
0 |
| Property Deed Transaction History (Recorded in the County Clerk's Office) | ||||||||||
|---|---|---|---|---|---|---|---|---|---|---|
| Date | Type | Book | Page | Price | Grantor | Grantee | ||||
|
5/26/2010 |
|
Deeds |
$0 |
ELDER ROBERT |
10 SQUARE LLC |
|||||
|
4/29/2010 |
|
Hmstd Off & |
$0 |
ELDER ROBERT |
10 SQUARE LLC |
|||||
|
7/22/2004 |
|
Deeds |
$17,000 |
RAK PROPERTIES INC |
ELDER ROBERT L |
|||||
|
7/16/2004 |
|
Other |
$0 |
KALHOEFER ROGER D TRS KALHOEFER JOHN W |
RAK PROPERTIES INC |
|||||
|
11/22/1991 |
|
Historical |
$0 |
KALHOEFER F H |
KALHOEFER ROGER D TRS |
|||||
| Last Mailed Notice of Value (N.O.V.) Information/History | ||||||||
|---|---|---|---|---|---|---|---|---|
| Year | Date | Market Value | Taxable Market Value | Gross Assessed | Exemption | Net Assessed | ||
|
2026 |
02/23/2026 |
114,500 |
87,773 |
9,654 |
0 |
9,654 |
||
|
2025 |
02/14/2025 |
113,000 |
83,594 |
9,194 |
0 |
9,194 |
||
|
2024 |
02/13/2024 |
111,500 |
79,614 |
8,757 |
0 |
8,757 |
||
|
2023 |
02/14/2023 |
106,500 |
75,823 |
8,340 |
0 |
8,340 |
||
|
2022 |
03/15/2022 |
82,000 |
72,213 |
7,943 |
0 |
7,943 |
||
| Property Building Permit History | |||||||||||
|---|---|---|---|---|---|---|---|---|---|---|---|
| Issued | Permit # | Provided by | Bldg # | Description | Est Construction Cost | Status | |||||
| No Building Permit records returned. | |||||||||||
| Click button on building number to access detailed information: | ||||||
|---|---|---|---|---|---|---|
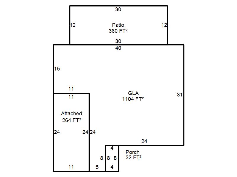
| Bldg # | Vacant/Improved Land | Bldg Description | Year Built | SqFt | # Stories | |
|
1 |
Improved |
Ranch 1 Story |
1961 |
1,104 |
1 Stories |
|