|
|
|
| Larry Stein Oklahoma County Assessor (405) 713-1200 - Public Access System |
|
|
|
|
|
|
| Real Property Display - Screen Produced 4/3/2026 11:57:22 PM | ||||
|---|---|---|---|---|
| Account: R144663940 | Type: Residential | Location: |
5517 NW 112TH ST |
|
| Building Name/Occupant: |
|
OKLAHOMA CITY |
||
| Owner Name 1: | ROSE ROCK ASSETS LLC |
Parcel PIN#: |
3887-14-466-3940 |
|
| Owner Name 2: | 1/4 section #: |
3887 |
||
| Owner Name 3: | Parent Acct: |
|
||
| Billing Address: | 2704 CLERMONT PL | Tax District: |
|
|
| City, State, Zip | OKLAHOMA CITY, OK 73116 | School System: |
Putnam City #1 |
|
|
Country: (If noted) |
UNITED STATES |
Land Size: |
0.2083 Acres |
|
|
Land Value: 39,930 |
|
|||
|
Sect 22-T13N-R4W Qtr SW |
BLUFF CREEK
Block
010
Lot
025
|
|||
| Full Legal Description: BLUFF CREEK 010 025 |
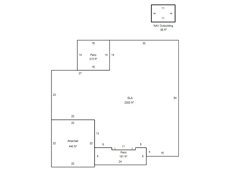
| Photo & Sketch (if available) | Comp Sales (ordered by relevancy) |
|
||||||||||||||||||
|
||||||||||||||||||||
| Value History (*The County Treasurer 405-713-1300 posts & collects actual tax amounts. Contact information HERE) | |||||||||||||
|---|---|---|---|---|---|---|---|---|---|---|---|---|---|
| Year | Market Value | Taxable Mkt Value | Gross Assessed | Exemption | Net Assessed | Millage | Est. Tax | Tax Savings | |||||
|
2026 |
299,000 |
299,000 |
32,890 |
0 |
32,890 |
123.17 |
$4,051 |
$0 |
|||||
|
2025 |
292,000 |
285,932 |
31,451 |
0 |
31,451 |
123.17 |
$3,874 |
$82 |
|||||
|
2024 |
286,500 |
272,317 |
29,954 |
0 |
29,954 |
122.30 |
$3,663 |
$191 |
|||||
|
2023 |
274,500 |
259,350 |
28,528 |
0 |
28,528 |
121.91 |
$3,478 |
$203 |
|||||
|
2022 |
247,000 |
247,000 |
27,170 |
0 |
27,170 |
123.41 |
$3,353 |
$0 |
|||||
| Property Account Status/Adjustments/Exemptions | ||
|---|---|---|
| Account # | Exemption Description | Amount |
|
R144663940 |
5% Capped Account |
0 |
| Property Deed Transaction History (Recorded in the County Clerk's Office) | |||||||
|---|---|---|---|---|---|---|---|
| Date | Type | Book | Page | Price | Grantor | Grantee | |
|
12/30/2021 |
|
Deeds |
$150,000 |
BLASIUS PAUL |
ROSE ROCK ASSETS LLC |
||
|
7/30/2007 |
|
Hmstd Off & |
$0 |
BLASIUS ROGER ANDRE DINH LECHAU THI |
BLASIUS PAUL |
||
|
12/31/1990 |
|
Historical |
$87,000 |
AUSTIN G JANE |
BLASIUS ROGER ANDRE |
||
|
3/1/1988 |
|
Historical |
$0 |
SANDERSON MICHIEL KENT |
AUSTIN G JANE |
||
|
10/1/1979 |
|
Historical |
$0 |
|
SANDERSON MICHIEL KENT |
||
| Last Mailed Notice of Value (N.O.V.) Information/History | ||||||||
|---|---|---|---|---|---|---|---|---|
| Year | Date | Market Value | Taxable Market Value | Gross Assessed | Exemption | Net Assessed | ||
|
2026 |
02/23/2026 |
299,000 |
299,000 |
32,890 |
0 |
32,890 |
||
|
2025 |
02/14/2025 |
292,000 |
285,932 |
31,451 |
0 |
31,451 |
||
|
2024 |
02/13/2024 |
286,500 |
272,317 |
29,954 |
0 |
29,954 |
||
|
2023 |
02/14/2023 |
274,500 |
259,350 |
28,528 |
0 |
28,528 |
||
|
2022 |
03/15/2022 |
247,000 |
247,000 |
27,170 |
0 |
27,170 |
||
| Property Building Permit History | ||||||
|---|---|---|---|---|---|---|
| Issued | Permit # | Provided by | Bldg # | Description | Est Construction Cost | Status |
|
10/10/2014 |
10466962 |
OKLAHOMA CITY |
1 |
Fire Remodel |
60,000 |
Inactive |
| Click button on building number to access detailed information: | ||||||
|---|---|---|---|---|---|---|
| Bldg # | Vacant/Improved Land | Bldg Description | Year Built | SqFt | # Stories | |
|
1 |
Improved |
Ranch 1 Story |
1975 |
2,383 |
1 Stories |
|