|
|
|
| Larry Stein Oklahoma County Assessor (405) 713-1200 - Public Access System |
|
|
|
|
|
|
| Real Property Display - Screen Produced 4/3/2026 10:07:38 PM | ||||
|---|---|---|---|---|
| Account: R144663830 | Type: Residential | Location: |
11309 BLUFF CREEK DR |
|
| Building Name/Occupant: |
|
OKLAHOMA CITY |
||
| Owner Name 1: | NUGENT MARKUS S |
Parcel PIN#: |
3887-14-466-3830 |
|
| Owner Name 2: | URIBE ODALIS | 1/4 section #: |
3887 |
|
| Owner Name 3: | Parent Acct: |
|
||
| Billing Address: | 11309 BLUFF CREEK DR | Tax District: |
|
|
| City, State, Zip | OKLAHOMA CITY, OK 73162-3724 | School System: |
Putnam City #1 |
|
|
Country: (If noted) |
Land Size: |
0.1686 Acres |
||
|
Land Value: 32,318 |
|
|||
|
Sect 22-T13N-R4W Qtr SW |
BLUFF CREEK
Block
010
Lot
014
|
|||
| Full Legal Description: BLUFF CREEK 010 014 |
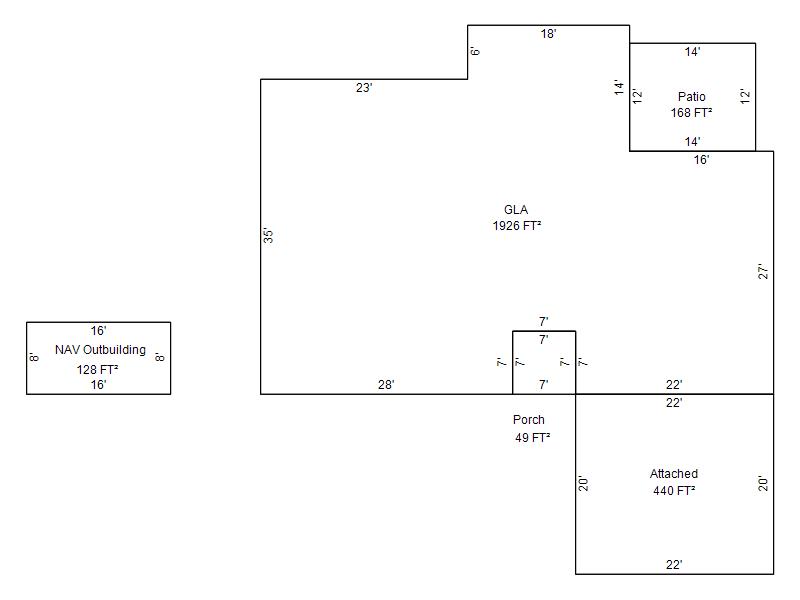
| Photo & Sketch (if available) | Comp Sales (ordered by relevancy) |
|
||||||||||||||||||
|
||||||||||||||||||||
| Value History (*The County Treasurer 405-713-1300 posts & collects actual tax amounts. Contact information HERE) | |||||||||||||
|---|---|---|---|---|---|---|---|---|---|---|---|---|---|
| Year | Market Value | Taxable Mkt Value | Gross Assessed | Exemption | Net Assessed | Millage | Est. Tax | Tax Savings | |||||
|
2026 |
266,000 |
266,000 |
29,260 |
0 |
29,260 |
123.17 |
$3,604 |
$0 |
|||||
|
2025 |
260,500 |
254,097 |
27,949 |
0 |
27,949 |
123.17 |
$3,443 |
$87 |
|||||
|
2024 |
253,500 |
241,998 |
26,619 |
0 |
26,619 |
122.30 |
$3,256 |
$155 |
|||||
|
2023 |
243,000 |
230,475 |
25,352 |
0 |
25,352 |
121.91 |
$3,091 |
$168 |
|||||
|
2022 |
219,500 |
219,500 |
24,145 |
0 |
24,145 |
123.41 |
$2,980 |
$0 |
|||||
| Property Account Status/Adjustments/Exemptions | ||||||
|---|---|---|---|---|---|---|
| Account # | Exemption Description | Amount | ||||
| No adjustment/exemption records returned. | ||||||
| Property Deed Transaction History (Recorded in the County Clerk's Office) | |||||||
|---|---|---|---|---|---|---|---|
| Date | Type | Book | Page | Price | Grantor | Grantee | |
|
4/23/2025 |
|
Deeds |
$265,000 |
RUTHERFORD CONNOR |
NUGENT MARKUS S |
||
|
6/9/2021 |
|
Deeds |
$220,000 |
NEWJACK PROPERTIES LLC |
RUTHERFORD CONNOR |
||
|
10/22/2020 |
|
Deeds |
$146,500 |
LANGFORD WILLIAM A & VICTORIA |
NEWJACK PROPERTIES LLC |
||
|
4/19/1988 |
|
Historical |
$66,000 |
MCKAY ALAN T & SHARON ANN |
LANGFORD WILLIAM A & VICTORIA |
||
|
10/1/1983 |
|
Historical |
$0 |
|
MCKAY ALAN T & SHARON ANN |
||
| Last Mailed Notice of Value (N.O.V.) Information/History | ||||||||
|---|---|---|---|---|---|---|---|---|
| Year | Date | Market Value | Taxable Market Value | Gross Assessed | Exemption | Net Assessed | ||
|
2026 |
02/23/2026 |
266,000 |
266,000 |
29,260 |
0 |
29,260 |
||
|
2025 |
02/14/2025 |
260,500 |
254,097 |
27,949 |
0 |
27,949 |
||
|
2024 |
02/13/2024 |
253,500 |
241,998 |
26,619 |
0 |
26,619 |
||
|
2023 |
02/14/2023 |
243,000 |
230,475 |
25,352 |
0 |
25,352 |
||
|
2022 |
03/15/2022 |
219,500 |
219,500 |
24,145 |
0 |
24,145 |
||
| Property Building Permit History | |||||||||||
|---|---|---|---|---|---|---|---|---|---|---|---|
| Issued | Permit # | Provided by | Bldg # | Description | Est Construction Cost | Status | |||||
| No Building Permit records returned. | |||||||||||
| Click button on building number to access detailed information: | ||||||
|---|---|---|---|---|---|---|
| Bldg # | Vacant/Improved Land | Bldg Description | Year Built | SqFt | # Stories | |
|
1 |
Improved |
Ranch 1 Story |
1975 |
1,926 |
1 Stories |
|