|
|
|
| Larry Stein Oklahoma County Assessor (405) 713-1200 - Public Access System |
|
|
|
|
|
|
| Real Property Display - Screen Produced 4/3/2026 10:08:55 PM | ||||
|---|---|---|---|---|
| Account: R145634220 | Type: Residential | Location: |
5708 NW 110TH ST |
|
| Building Name/Occupant: |
|
OKLAHOMA CITY |
||
| Owner Name 1: | UNDERKOFFLER ANDREW R |
Parcel PIN#: |
3887-14-563-4220 |
|
| Owner Name 2: | UNDERKOFFLER THEODORA G | 1/4 section #: |
3887 |
|
| Owner Name 3: | Parent Acct: |
|
||
| Billing Address: | 5708 NW 110TH ST | Tax District: |
|
|
| City, State, Zip | OKLAHOMA CITY, OK 73162 | School System: |
Putnam City #1 |
|
|
Country: (If noted) |
Land Size: |
0.1910 Acres |
||
|
Land Value: 36,617 |
|
|||
|
Sect 22-T13N-R4W Qtr SW |
BLUFF CREEK SEC 3
Block
017
Lot
003
|
|||
| Full Legal Description: BLUFF CREEK SEC 3 017 003 |
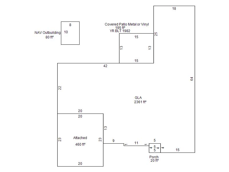
| Photo & Sketch (if available) | Comp Sales (ordered by relevancy) |
|
||||||||||||||||||
|
||||||||||||||||||||
| Value History (*The County Treasurer 405-713-1300 posts & collects actual tax amounts. Contact information HERE) | |||||||||||||
|---|---|---|---|---|---|---|---|---|---|---|---|---|---|
| Year | Market Value | Taxable Mkt Value | Gross Assessed | Exemption | Net Assessed | Millage | Est. Tax | Tax Savings | |||||
|
2026 |
306,500 |
276,874 |
30,456 |
1,000 |
29,456 |
123.17 |
$3,628 |
$525 |
|||||
|
2025 |
301,500 |
268,810 |
29,568 |
1,000 |
28,568 |
123.17 |
$3,519 |
$566 |
|||||
|
2024 |
295,000 |
260,981 |
28,707 |
1,000 |
27,707 |
122.30 |
$3,389 |
$580 |
|||||
|
2023 |
281,000 |
253,380 |
27,871 |
1,000 |
26,871 |
121.91 |
$3,276 |
$492 |
|||||
|
2022 |
246,000 |
246,000 |
27,060 |
1,000 |
26,060 |
123.41 |
$3,216 |
$123 |
|||||
| Property Account Status/Adjustments/Exemptions | ||
|---|---|---|
| Account # | Exemption Description | Amount |
|
R145634220 |
3% Cap Homestead |
0 |
|
R145634220 |
Homestead |
1,000 |
| Property Deed Transaction History (Recorded in the County Clerk's Office) | ||||||||||
|---|---|---|---|---|---|---|---|---|---|---|
| Date | Type | Book | Page | Price | Grantor | Grantee | ||||
|
3/10/2021 |
|
Deeds |
$240,000 |
MINER BRIAN E |
UNDERKOFFLER ANDREW R |
|||||
|
10/6/2017 |
|
Deeds |
$205,000 |
MCCORD AMY |
MINER BRIAN E |
|||||
|
4/3/2017 |
|
Deeds |
$127,500 |
US BANK NATIONAL ASSOCIATION |
MCCORD AMY |
|||||
|
2/9/2017 |
|
Hmstd Off & |
$0 |
CATER CLAUDIA K |
US BANK NATIONAL ASSOCIATION |
|||||
|
12/14/2010 |
|
Deeds |
$160,000 |
KREI BARBARA N & EDWARD A TRS KREI BARBARA N TRUST |
CATER CLAUDIA K |
|||||
| Last Mailed Notice of Value (N.O.V.) Information/History | ||||||||
|---|---|---|---|---|---|---|---|---|
| Year | Date | Market Value | Taxable Market Value | Gross Assessed | Exemption | Net Assessed | ||
|
2026 |
02/23/2026 |
306,500 |
276,874 |
30,456 |
1,000 |
29,456 |
||
|
2025 |
02/14/2025 |
301,500 |
268,810 |
29,568 |
1,000 |
28,568 |
||
|
2024 |
02/13/2024 |
295,000 |
260,981 |
28,707 |
1,000 |
27,707 |
||
|
2023 |
02/14/2023 |
281,000 |
253,380 |
27,871 |
1,000 |
26,871 |
||
|
2022 |
03/15/2022 |
246,000 |
246,000 |
27,060 |
0 |
27,060 |
||
| Property Building Permit History | |||||||||||
|---|---|---|---|---|---|---|---|---|---|---|---|
| Issued | Permit # | Provided by | Bldg # | Description | Est Construction Cost | Status | |||||
| No Building Permit records returned. | |||||||||||
| Click button on building number to access detailed information: | ||||||
|---|---|---|---|---|---|---|
| Bldg # | Vacant/Improved Land | Bldg Description | Year Built | SqFt | # Stories | |
|
1 |
Improved |
Ranch 1 Story |
1977 |
2,361 |
1 Stories |
|