|
|
|
| Larry Stein Oklahoma County Assessor (405) 713-1200 - Public Access System |
|
|
|
|
|
|
| Real Property Display - Screen Produced 4/4/2026 10:36:38 PM | ||||
|---|---|---|---|---|
| Account: R103831045 | Type: Residential | Location: |
10904 WILLOW GROVE RD |
|
| Building Name/Occupant: |
|
OKLAHOMA CITY |
||
| Owner Name 1: | WADE GARNETT A & PAULA B |
Parcel PIN#: |
3894-10-383-1045 |
|
| Owner Name 2: | 1/4 section #: |
3894 |
||
| Owner Name 3: | Parent Acct: |
|
||
| Billing Address: | 10904 WILLOW GROVE RD | Tax District: |
|
|
| City, State, Zip | OKLAHOMA CITY, OK 73120-5115 | School System: |
Oklahoma City #89 |
|
|
Country: (If noted) |
Land Size: |
0.2314 Acres |
||
|
Land Value: 61,992 |
|
|||
|
Sect 24-T13N-R4W Qtr SE |
QUAIL CREEK SEC 12
Block
104
Lot
010
|
|||
| Full Legal Description: QUAIL CREEK SEC 12 104 010 |
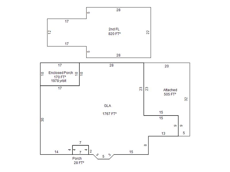
| Photo & Sketch (if available) | Comp Sales (ordered by relevancy) |
|
||||||||||||||||||
|
||||||||||||||||||||
| Value History (*The County Treasurer 405-713-1300 posts & collects actual tax amounts. Contact information HERE) | |||||||||||||
|---|---|---|---|---|---|---|---|---|---|---|---|---|---|
| Year | Market Value | Taxable Mkt Value | Gross Assessed | Exemption | Net Assessed | Millage | Est. Tax | Tax Savings | |||||
|
2026 |
427,000 |
279,220 |
30,713 |
1,000 |
29,713 |
122.90 |
$3,652 |
$2,121 |
|||||
|
2025 |
417,500 |
271,088 |
29,819 |
1,000 |
28,819 |
122.90 |
$3,542 |
$2,102 |
|||||
|
2024 |
397,000 |
263,193 |
28,951 |
1,000 |
27,951 |
123.89 |
$3,463 |
$1,947 |
|||||
|
2023 |
378,000 |
255,528 |
28,107 |
1,000 |
27,107 |
122.82 |
$3,329 |
$1,777 |
|||||
|
2022 |
326,500 |
248,086 |
27,288 |
1,000 |
26,288 |
117.63 |
$3,092 |
$1,132 |
|||||
| Property Account Status/Adjustments/Exemptions | ||
|---|---|---|
| Account # | Exemption Description | Amount |
|
R103831045 |
3% Cap Homestead |
0 |
|
R103831045 |
Homestead |
1,000 |
| Property Deed Transaction History (Recorded in the County Clerk's Office) | |||||||
|---|---|---|---|---|---|---|---|
| Date | Type | Book | Page | Price | Grantor | Grantee | |
|
4/1/1997 |
|
Historical |
$102,000 |
NATIONSBANC MORTGAGE CORP |
WADE GARNETT A & PAULA B |
||
|
1/17/1997 |
|
Historical |
$0 |
WEBSTER J KIRK & KATHERINE L |
NATIONSBANC MORTGAGE CORP |
||
|
5/1/1986 |
|
Historical |
$0 |
|
WEBSTER J KIRK & KATHERINE L |
||
| Last Mailed Notice of Value (N.O.V.) Information/History | ||||||||
|---|---|---|---|---|---|---|---|---|
| Year | Date | Market Value | Taxable Market Value | Gross Assessed | Exemption | Net Assessed | ||
|
2026 |
02/23/2026 |
427,000 |
279,220 |
30,713 |
1,000 |
29,713 |
||
|
2025 |
02/14/2025 |
417,500 |
271,088 |
29,819 |
1,000 |
28,819 |
||
|
2024 |
02/13/2024 |
397,000 |
263,193 |
28,951 |
1,000 |
27,951 |
||
|
2023 |
02/14/2023 |
378,000 |
255,528 |
28,107 |
1,000 |
27,107 |
||
|
2022 |
03/15/2022 |
326,500 |
248,086 |
27,288 |
1,000 |
26,288 |
||
| Property Building Permit History | ||||||
|---|---|---|---|---|---|---|
| Issued | Permit # | Provided by | Bldg # | Description | Est Construction Cost | Status |
|
7/20/2007 |
10340927 |
OKLAHOMA CITY |
1 |
Swimming Pool |
0 |
Inactive |
| Click button on building number to access detailed information: | ||||||
|---|---|---|---|---|---|---|
| Bldg # | Vacant/Improved Land | Bldg Description | Year Built | SqFt | # Stories | |
|
1 |
Improved |
1½ Story Fin |
1971 |
2,587 |
1.5 Stories |
|