|
|
|
| Larry Stein Oklahoma County Assessor (405) 713-1200 - Public Access System |
|
|
|
|
|
|
| Real Property Display - Screen Produced 4/1/2026 8:55:54 PM | ||||
|---|---|---|---|---|
| Account: R178952375 | Type: Residential | Location: |
3117 GOSHEN DR |
|
| Building Name/Occupant: |
|
VILLAGE |
||
| Owner Name 1: | BROOKS STEPHEN C & KATHY J |
Parcel PIN#: |
3898-17-895-2375 |
|
| Owner Name 2: | 1/4 section #: |
3898 |
||
| Owner Name 3: | Parent Acct: |
|
||
| Billing Address: | 3117 GOSHEN DR | Tax District: |
|
|
| City, State, Zip | OKLAHOMA CITY, OK 73120-2207 | School System: |
Oklahoma City #89 |
|
|
Country: (If noted) |
Land Size: |
0.3337 Acres |
||
|
Land Value: 63,232 |
|
|||
|
Sect 25-T13N-R4W Qtr SE |
BURKE NORTHRIDGE MANOR
Block
007
Lot
013
|
|||
| Full Legal Description: BURKE NORTHRIDGE MANOR 007 013 |
| Photo & Sketch (if available) | Comp Sales (ordered by relevancy) |
|
||||||||||||||||||
|
||||||||||||||||||||
| Value History (*The County Treasurer 405-713-1300 posts & collects actual tax amounts. Contact information HERE) | |||||||||||||
|---|---|---|---|---|---|---|---|---|---|---|---|---|---|
| Year | Market Value | Taxable Mkt Value | Gross Assessed | Exemption | Net Assessed | Millage | Est. Tax | Tax Savings | |||||
|
2026 |
335,500 |
253,983 |
27,937 |
1,000 |
26,937 |
122.45 |
$3,299 |
$1,220 |
|||||
|
2025 |
331,500 |
246,586 |
27,124 |
1,000 |
26,124 |
122.45 |
$3,199 |
$1,266 |
|||||
|
2024 |
324,500 |
239,404 |
26,334 |
1,000 |
25,334 |
124.97 |
$3,166 |
$1,295 |
|||||
|
2023 |
314,500 |
232,432 |
25,566 |
1,000 |
24,566 |
120.11 |
$2,951 |
$1,204 |
|||||
|
2022 |
278,500 |
225,663 |
24,821 |
1,000 |
23,821 |
115.25 |
$2,746 |
$785 |
|||||
| Property Account Status/Adjustments/Exemptions | ||
|---|---|---|
| Account # | Exemption Description | Amount |
|
R178952375 |
3% Cap Homestead |
0 |
|
R178952375 |
Homestead |
1,000 |
| Property Deed Transaction History (Recorded in the County Clerk's Office) | |||||||
|---|---|---|---|---|---|---|---|
| Date | Type | Book | Page | Price | Grantor | Grantee | |
|
9/6/2002 |
|
Deeds |
$138,500 |
TELFORD DARREN R & CHERYL |
BROOKS STEPHEN C & KATHY J |
||
|
4/15/1997 |
|
Historical |
$112,000 |
BROWN TRAVIS L & BEVERLY E |
TELFORD DARREN R & CHERYL |
||
|
11/6/1995 |
|
Historical |
$101,000 |
KINNEAR KENNETH K & CLETA M |
BROWN TRAVIS L & BEVERLY E |
||
|
7/1/1978 |
|
Historical |
$0 |
|
KINNEAR KENNETH K & CLETA M |
||
| Last Mailed Notice of Value (N.O.V.) Information/History | ||||||||
|---|---|---|---|---|---|---|---|---|
| Year | Date | Market Value | Taxable Market Value | Gross Assessed | Exemption | Net Assessed | ||
|
2026 |
02/23/2026 |
335,500 |
253,983 |
27,937 |
1,000 |
26,937 |
||
|
2025 |
02/14/2025 |
331,500 |
246,586 |
27,124 |
1,000 |
26,124 |
||
|
2024 |
02/13/2024 |
324,500 |
239,404 |
26,334 |
1,000 |
25,334 |
||
|
2023 |
02/14/2023 |
314,500 |
232,432 |
25,566 |
1,000 |
24,566 |
||
|
2022 |
03/15/2022 |
278,500 |
225,663 |
24,821 |
1,000 |
23,821 |
||
| Property Building Permit History | |||||||||||
|---|---|---|---|---|---|---|---|---|---|---|---|
| Issued | Permit # | Provided by | Bldg # | Description | Est Construction Cost | Status | |||||
| No Building Permit records returned. | |||||||||||
| Click button on building number to access detailed information: | ||||||
|---|---|---|---|---|---|---|
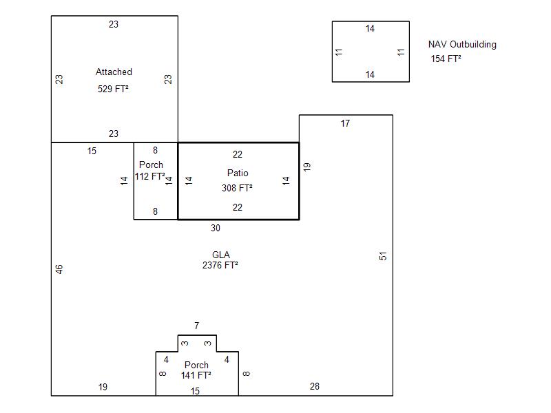
| Bldg # | Vacant/Improved Land | Bldg Description | Year Built | SqFt | # Stories | |
|
1 |
Improved |
Ranch 1 Story |
1964 |
2,376 |
1 Stories |
|