|
|
|
| Larry Stein Oklahoma County Assessor (405) 713-1200 - Public Access System |
|
|
|
|
|
|
| Real Property Display - Screen Produced 4/5/2026 2:32:45 AM | ||||
|---|---|---|---|---|
| Account: R178954985 | Type: Residential | Location: |
9400 LAKESHORE DR |
|
| Building Name/Occupant: |
|
VILLAGE |
||
| Owner Name 1: | LAKESHORE DRIVE INVESTMENTS LLC |
Parcel PIN#: |
3898-17-895-4985 |
|
| Owner Name 2: | 1/4 section #: |
3898 |
||
| Owner Name 3: | Parent Acct: |
|
||
| Billing Address: | 5400 WARD RD V 170 | Tax District: |
|
|
| City, State, Zip | ARVADA, CO 80002 | School System: |
Oklahoma City #89 |
|
|
Country: (If noted) |
Land Size: |
0.1997 Acres |
||
|
Land Value: 37,845 |
|
|||
|
Sect 25-T13N-R4W Qtr SE |
BURKE NORTHRIDGE MANOR
Block
015
Lot
011
|
|||
| Full Legal Description: BURKE NORTHRIDGE MANOR 015 011 |
| Photo & Sketch (if available) | Comp Sales (ordered by relevancy) |
|
||||||||||||||||||
|
||||||||||||||||||||
| Value History (*The County Treasurer 405-713-1300 posts & collects actual tax amounts. Contact information HERE) | |||||||||||||
|---|---|---|---|---|---|---|---|---|---|---|---|---|---|
| Year | Market Value | Taxable Mkt Value | Gross Assessed | Exemption | Net Assessed | Millage | Est. Tax | Tax Savings | |||||
|
2026 |
229,500 |
229,500 |
25,245 |
0 |
25,245 |
122.45 |
$3,091 |
$0 |
|||||
|
2025 |
228,000 |
228,000 |
25,080 |
0 |
25,080 |
122.45 |
$3,071 |
$0 |
|||||
|
2024 |
227,000 |
226,800 |
24,948 |
0 |
24,948 |
124.97 |
$3,118 |
$3 |
|||||
|
2023 |
216,000 |
216,000 |
23,760 |
0 |
23,760 |
120.11 |
$2,854 |
$0 |
|||||
|
2022 |
242,500 |
242,500 |
26,675 |
0 |
26,675 |
115.25 |
$3,074 |
$0 |
|||||
| Property Account Status/Adjustments/Exemptions | ||
|---|---|---|
| Account # | Exemption Description | Amount |
|
R178954985 |
5% Capped Account |
0 |
| Property Deed Transaction History (Recorded in the County Clerk's Office) | ||||||||||
|---|---|---|---|---|---|---|---|---|---|---|
| Date | Type | Book | Page | Price | Grantor | Grantee | ||||
|
1/15/2022 |
|
Hmstd Off & |
$0 |
LISS JOSHUA B |
LAKESHORE DRIVE INVESTMENTS LLC |
|||||
|
6/25/2021 |
|
Deeds |
$245,000 |
REI NATION LLC |
LISS JOSHUA B |
|||||
|
4/5/2021 |
|
Deeds |
$131,000 |
MITCHELL ELLA R |
OKLAHOME INVESTORS LLC |
|||||
|
4/5/2021 |
|
Deeds |
$167,000 |
OKLAHOME INVESTORS LLC |
REI NATION LLC |
|||||
|
12/4/1995 |
|
Historical |
$75,000 |
ROEDERER PAUL D |
MITCHELL ELLA R |
|||||
| Last Mailed Notice of Value (N.O.V.) Information/History | ||||||||
|---|---|---|---|---|---|---|---|---|
| Year | Date | Market Value | Taxable Market Value | Gross Assessed | Exemption | Net Assessed | ||
|
2026 |
02/23/2026 |
229,500 |
229,500 |
25,245 |
0 |
25,245 |
||
|
2025 |
02/14/2025 |
228,000 |
228,000 |
25,080 |
0 |
25,080 |
||
|
2024 |
02/13/2024 |
227,000 |
226,800 |
24,948 |
0 |
24,948 |
||
|
2022 |
03/15/2022 |
242,500 |
242,500 |
26,675 |
0 |
26,675 |
||
|
2021 |
03/19/2021 |
162,500 |
152,981 |
16,827 |
1,000 |
15,827 |
||
| Property Building Permit History | |||||||||||
|---|---|---|---|---|---|---|---|---|---|---|---|
| Issued | Permit # | Provided by | Bldg # | Description | Est Construction Cost | Status | |||||
| No Building Permit records returned. | |||||||||||
| Click button on building number to access detailed information: | ||||||
|---|---|---|---|---|---|---|
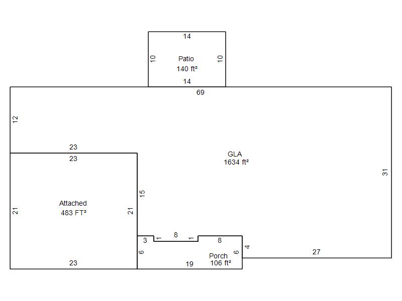
| Bldg # | Vacant/Improved Land | Bldg Description | Year Built | SqFt | # Stories | |
|
1 |
Improved |
Ranch 1 Story |
1963 |
1,634 |
1 Stories |
|