|
|
|
| Larry Stein Oklahoma County Assessor (405) 713-1200 - Public Access System |
|
|
|
|
|
|
| Real Property Display - Screen Produced 4/4/2026 11:41:00 AM | ||||
|---|---|---|---|---|
| Account: R141621240 | Type: Residential | Location: |
106 N TRAIL RIDGE RD |
|
| Building Name/Occupant: |
|
EDMOND |
||
| Owner Name 1: | SESSA MICHAEL P & MARY ELLEN TRS |
Parcel PIN#: |
4710-14-162-1240 |
|
| Owner Name 2: | SESSA LIV TRUST | 1/4 section #: |
4710 |
|
| Owner Name 3: | Parent Acct: |
|
||
| Billing Address: | 106 N TRAIL RIDGE RD | Tax District: |
|
|
| City, State, Zip | EDMOND, OK 73012 | School System: |
Edmond #12 |
|
|
Country: (If noted) |
Land Size: |
0.2996 Acres |
||
|
Land Value: 45,675 |
|
|||
|
Sect 28-T14N-R3W Qtr SE |
THE TRAILS
Block
004
Lot
005
|
|||
| Full Legal Description: THE TRAILS 004 005 |
| Photo & Sketch (if available) | Comp Sales (ordered by relevancy) |
|
||||||||||||||||||
|
||||||||||||||||||||
| Value History (*The County Treasurer 405-713-1300 posts & collects actual tax amounts. Contact information HERE) | |||||||||||||
|---|---|---|---|---|---|---|---|---|---|---|---|---|---|
| Year | Market Value | Taxable Mkt Value | Gross Assessed | Exemption | Net Assessed | Millage | Est. Tax | Tax Savings | |||||
|
2026 |
335,000 |
264,116 |
29,052 |
1,000 |
28,052 |
105.16 |
$2,950 |
$925 |
|||||
|
2025 |
337,500 |
256,424 |
28,206 |
1,000 |
27,206 |
105.16 |
$2,861 |
$1,043 |
|||||
|
2024 |
325,000 |
248,956 |
27,384 |
1,000 |
26,384 |
105.03 |
$2,771 |
$984 |
|||||
|
2023 |
312,500 |
241,705 |
26,587 |
1,000 |
25,587 |
104.24 |
$2,667 |
$916 |
|||||
|
2022 |
270,000 |
234,666 |
25,811 |
1,000 |
24,811 |
104.64 |
$2,596 |
$511 |
|||||
| Property Account Status/Adjustments/Exemptions | ||
|---|---|---|
| Account # | Exemption Description | Amount |
|
R141621240 |
3% Cap Homestead |
0 |
|
R141621240 |
Homestead |
1,000 |
| Property Deed Transaction History (Recorded in the County Clerk's Office) | |||||||
|---|---|---|---|---|---|---|---|
| Date | Type | Book | Page | Price | Grantor | Grantee | |
|
3/4/2022 |
|
Deeds |
$0 |
SESSA MICHAEL P & MARY TRS |
SESSA MICHAEL P & MARY ELLEN TRS |
||
|
9/14/1998 |
|
Historical |
$0 |
SESSA MICHAEL P & M E |
SESSA MICHAEL P & MARY TRS |
||
|
11/11/1911 |
|
Historical |
$0 |
|
SESSA MICHAEL P & M E |
||
| Last Mailed Notice of Value (N.O.V.) Information/History | ||||||||
|---|---|---|---|---|---|---|---|---|
| Year | Date | Market Value | Taxable Market Value | Gross Assessed | Exemption | Net Assessed | ||
|
2026 |
02/06/2026 |
335,000 |
264,116 |
29,052 |
1,000 |
28,052 |
||
|
2025 |
01/31/2025 |
337,500 |
256,424 |
28,206 |
1,000 |
27,206 |
||
|
2024 |
01/22/2024 |
325,000 |
248,956 |
27,384 |
1,000 |
26,384 |
||
|
2023 |
01/23/2023 |
312,500 |
241,705 |
26,587 |
1,000 |
25,587 |
||
|
2022 |
02/22/2022 |
270,000 |
234,666 |
25,811 |
1,000 |
24,811 |
||
| Property Building Permit History | |||||||||||
|---|---|---|---|---|---|---|---|---|---|---|---|
| Issued | Permit # | Provided by | Bldg # | Description | Est Construction Cost | Status | |||||
| No Building Permit records returned. | |||||||||||
| Click button on building number to access detailed information: | ||||||
|---|---|---|---|---|---|---|
| Bldg # | Vacant/Improved Land | Bldg Description | Year Built | SqFt | # Stories | |
|
1 |
Improved |
Ranch 1 Story |
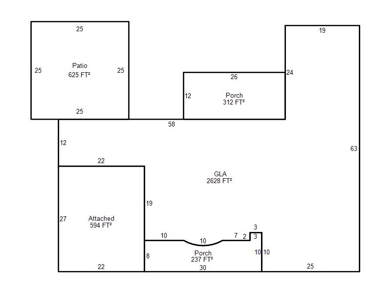
1974 |
2,628 |
1 Stories |
|