|
|
|
| Larry Stein Oklahoma County Assessor (405) 713-1200 - Public Access System |
|
|
|
|
|
|
| Real Property Display - Screen Produced 4/4/2026 11:39:54 AM | ||||
|---|---|---|---|---|
| Account: R141621310 | Type: Residential | Location: |
16 S TRAIL RIDGE RD |
|
| Building Name/Occupant: |
|
EDMOND |
||
| Owner Name 1: | ROGSTAD ALAN E & NANCY L |
Parcel PIN#: |
4710-14-162-1310 |
|
| Owner Name 2: | 1/4 section #: |
4710 |
||
| Owner Name 3: | Parent Acct: |
|
||
| Billing Address: | 16 S TRAIL RIDGE RD | Tax District: |
|
|
| City, State, Zip | EDMOND, OK 73012-4538 | School System: |
Edmond #12 |
|
|
Country: (If noted) |
Land Size: |
0.3122 Acres |
||
|
Land Value: 47,600 |
|
|||
|
Sect 28-T14N-R3W Qtr SE |
THE TRAILS
Block
005
Lot
004
|
|||
| Full Legal Description: THE TRAILS 005 004 |
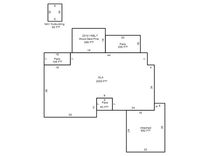
| Photo & Sketch (if available) | Comp Sales (ordered by relevancy) |
|
||||||||||||||||||
|
||||||||||||||||||||
| Value History (*The County Treasurer 405-713-1300 posts & collects actual tax amounts. Contact information HERE) | |||||||||||||
|---|---|---|---|---|---|---|---|---|---|---|---|---|---|
| Year | Market Value | Taxable Mkt Value | Gross Assessed | Exemption | Net Assessed | Millage | Est. Tax | Tax Savings | |||||
|
2026 |
266,000 |
217,248 |
23,897 |
1,000 |
22,897 |
105.16 |
$2,408 |
$669 |
|||||
|
2025 |
267,500 |
210,921 |
23,200 |
1,000 |
22,200 |
105.16 |
$2,335 |
$760 |
|||||
|
2024 |
261,000 |
204,778 |
22,525 |
1,000 |
21,525 |
105.03 |
$2,261 |
$755 |
|||||
|
2023 |
253,000 |
198,814 |
21,868 |
1,000 |
20,868 |
104.24 |
$2,175 |
$726 |
|||||
|
2022 |
222,500 |
193,024 |
21,232 |
1,000 |
20,232 |
104.64 |
$2,117 |
$444 |
|||||
| Property Account Status/Adjustments/Exemptions | ||
|---|---|---|
| Account # | Exemption Description | Amount |
|
R141621310 |
3% Cap Homestead |
0 |
|
R141621310 |
Homestead |
1,000 |
| Property Deed Transaction History (Recorded in the County Clerk's Office) | |||||||
|---|---|---|---|---|---|---|---|
| Date | Type | Book | Page | Price | Grantor | Grantee | |
|
10/1/1990 |
|
Historical |
$90,000 |
BISHOP WANDA J |
ROGSTAD ALAN E & NANCY L |
||
|
4/1/1983 |
|
Historical |
$0 |
|
BISHOP WANDA J |
||
| Last Mailed Notice of Value (N.O.V.) Information/History | ||||||||
|---|---|---|---|---|---|---|---|---|
| Year | Date | Market Value | Taxable Market Value | Gross Assessed | Exemption | Net Assessed | ||
|
2026 |
02/06/2026 |
266,000 |
217,248 |
23,897 |
1,000 |
22,897 |
||
|
2025 |
01/31/2025 |
267,500 |
210,921 |
23,200 |
1,000 |
22,200 |
||
|
2024 |
01/22/2024 |
261,000 |
204,778 |
22,525 |
1,000 |
21,525 |
||
|
2023 |
01/23/2023 |
253,000 |
198,814 |
21,868 |
1,000 |
20,868 |
||
|
2022 |
02/22/2022 |
222,500 |
193,024 |
21,231 |
1,000 |
20,231 |
||
| Property Building Permit History | |||||||||||
|---|---|---|---|---|---|---|---|---|---|---|---|
| Issued | Permit # | Provided by | Bldg # | Description | Est Construction Cost | Status | |||||
| No Building Permit records returned. | |||||||||||
| Click button on building number to access detailed information: | ||||||
|---|---|---|---|---|---|---|
| Bldg # | Vacant/Improved Land | Bldg Description | Year Built | SqFt | # Stories | |
|
1 |
Improved |
Ranch 1 Story |
1976 |
2,003 |
1 Stories |
|