|
|
|
| Larry Stein Oklahoma County Assessor (405) 713-1200 - Public Access System |
|
|
|
|
|
|
| Real Property Display - Screen Produced 3/13/2026 12:53:03 AM | ||||
|---|---|---|---|---|
| Account: R196681575 | Type: Residential | Location: |
10817 NE 16TH ST |
|
| Building Name/Occupant: |
|
NICOMA PARK |
||
| Owner Name 1: | MCCLAIN ANTHONY PAUL & LISA D |
Parcel PIN#: |
2317-19-668-1575 |
|
| Owner Name 2: | 1/4 section #: |
2317 |
||
| Owner Name 3: | Parent Acct: |
|
||
| Billing Address: | 10817 NE 16TH ST | Tax District: |
|
|
| City, State, Zip | OKLAHOMA CITY, OK 73130-2105 | School System: |
Choctaw #4 |
|
|
Country: (If noted) |
Land Size: |
0.4253 Acres |
||
|
Land Value: 23,156 |
|
|||
|
Sect 30-T12N-R1W Qtr NE |
WESTMINSTER 2ND ADDITION
Block
003
Lot
011
|
|||
| Full Legal Description: WESTMINSTER 2ND ADDITION 003 011 |
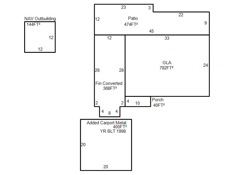
| Photo & Sketch (if available) | Comp Sales (ordered by relevancy) |
|
||||||||||||||||||
|
||||||||||||||||||||
| Value History (*The County Treasurer 405-713-1300 posts & collects actual tax amounts. Contact information HERE) | |||||||||||||
|---|---|---|---|---|---|---|---|---|---|---|---|---|---|
| Year | Market Value | Taxable Mkt Value | Gross Assessed | Exemption | Net Assessed | Millage | Est. Tax | Tax Savings | |||||
|
2025 |
159,500 |
65,613 |
7,216 |
0 |
7,216 |
117.21 |
$846 |
$1,210 |
|||||
|
2024 |
144,500 |
62,489 |
6,873 |
1,000 |
5,873 |
116.35 |
$683 |
$1,166 |
|||||
|
2023 |
136,500 |
62,489 |
6,873 |
1,000 |
5,873 |
117.10 |
$688 |
$1,070 |
|||||
|
2022 |
128,000 |
62,489 |
6,873 |
1,000 |
5,873 |
115.17 |
$676 |
$945 |
|||||
|
2021 |
114,500 |
62,489 |
6,873 |
1,000 |
5,873 |
115.06 |
$676 |
$773 |
|||||
| Property Account Status/Adjustments/Exemptions | ||||||
|---|---|---|---|---|---|---|
| Account # | Exemption Description | Amount | ||||
| No adjustment/exemption records returned. | ||||||
| Property Deed Transaction History (Recorded in the County Clerk's Office) | |||||||
|---|---|---|---|---|---|---|---|
| Date | Type | Book | Page | Price | Grantor | Grantee | |
|
12/2/2025 |
|
Deeds |
$125,000 |
ENRIGHT DEBORAH DIANNE |
MCCLAIN ANTHONY PAUL & LISA D |
||
|
10/10/2024 |
|
Hmstd Off & |
$0 |
CHEEK WANDA J |
ENRIGHT DEBORAH DIANNE |
||
|
4/12/2010 |
|
Deeds |
$0 |
CHEEK KENNETH R & WANDA J |
CHEEK WANDA J |
||
|
7/1/1978 |
|
Historical |
$0 |
|
CHEEK KENNETH R & WANDA J |
||
| Last Mailed Notice of Value (N.O.V.) Information/History | ||||||||
|---|---|---|---|---|---|---|---|---|
| Year | Date | Market Value | Taxable Market Value | Gross Assessed | Exemption | Net Assessed | ||
|
2026 |
02/06/2026 |
122,500 |
122,500 |
13,475 |
0 |
13,475 |
||
|
2025 |
01/31/2025 |
159,500 |
65,613 |
7,216 |
0 |
7,216 |
||
|
2024 |
01/22/2024 |
144,500 |
62,489 |
6,873 |
1,000 |
5,873 |
||
|
2023 |
01/23/2023 |
136,500 |
62,489 |
6,873 |
1,000 |
5,873 |
||
|
2022 |
02/22/2022 |
128,000 |
62,489 |
6,873 |
1,000 |
5,873 |
||
| Property Building Permit History | |||||||||||
|---|---|---|---|---|---|---|---|---|---|---|---|
| Issued | Permit # | Provided by | Bldg # | Description | Est Construction Cost | Status | |||||
| No Building Permit records returned. | |||||||||||
| Click button on building number to access detailed information: | ||||||
|---|---|---|---|---|---|---|
| Bldg # | Vacant/Improved Land | Bldg Description | Year Built | SqFt | # Stories | |
|
1 |
Improved |
Ranch 1 Story |
1962 |
792 |
1 Stories |
|