|
|
|
| Larry Stein Oklahoma County Assessor (405) 713-1200 - Public Access System |
|
|
|
|
|
|
| Real Property Display - Screen Produced 4/1/2026 7:20:08 AM | ||||
|---|---|---|---|---|
| Account: R120421780 | Type: Residential | Location: |
10104 ISAAC DR |
|
| Building Name/Occupant: |
|
MIDWEST CITY |
||
| Owner Name 1: | DVADA LLC |
Parcel PIN#: |
2319-12-042-1780 |
|
| Owner Name 2: | 1/4 section #: |
2319 |
||
| Owner Name 3: | Parent Acct: |
|
||
| Billing Address: | 6608 N WESTERN AVE, Unit 1538 | Tax District: |
|
|
| City, State, Zip | OKLAHOMA CITY, OK 73116 | School System: |
Oklahoma City #89 |
|
|
Country: (If noted) |
UNITED STATES |
Land Size: |
0.1398 Acres |
|
|
Land Value: 14,616 |
|
|||
|
Sect 30-T12N-R1W Qtr SW |
POST OAK TO MIDWEST CITY
Block
003
Lot
010
|
|||
| Full Legal Description: POST OAK TO MIDWEST CITY 003 010 |
| Photo & Sketch (if available) | Comp Sales (ordered by relevancy) |
|
||||||||||||||||||
|
||||||||||||||||||||
| Value History (*The County Treasurer 405-713-1300 posts & collects actual tax amounts. Contact information HERE) | |||||||||||||
|---|---|---|---|---|---|---|---|---|---|---|---|---|---|
| Year | Market Value | Taxable Mkt Value | Gross Assessed | Exemption | Net Assessed | Millage | Est. Tax | Tax Savings | |||||
|
2026 |
132,500 |
124,582 |
13,703 |
0 |
13,703 |
114.34 |
$1,567 |
$100 |
|||||
|
2025 |
122,500 |
118,650 |
13,051 |
0 |
13,051 |
114.34 |
$1,492 |
$48 |
|||||
|
2024 |
113,000 |
113,000 |
12,430 |
0 |
12,430 |
116.11 |
$1,443 |
$0 |
|||||
|
2023 |
93,500 |
69,933 |
7,692 |
1,000 |
6,692 |
115.66 |
$774 |
$415 |
|||||
|
2022 |
85,000 |
67,897 |
7,468 |
1,000 |
6,468 |
110.02 |
$712 |
$317 |
|||||
| Property Account Status/Adjustments/Exemptions | ||
|---|---|---|
| Account # | Exemption Description | Amount |
|
R120421780 |
5% Capped Account |
0 |
| Property Deed Transaction History (Recorded in the County Clerk's Office) | |||||||
|---|---|---|---|---|---|---|---|
| Date | Type | Book | Page | Price | Grantor | Grantee | |
|
10/19/2023 |
|
Deeds |
$110,000 |
BYRD RAYMONE D & MELISSA K |
DVADA LLC |
||
|
10/7/1988 |
|
Historical |
$31,000 |
ADMR OF VETERANS AFFAIRS |
BYRD RAYMONE D & MELISSA K |
||
|
1/29/1988 |
|
Historical |
$0 |
SOISSON RICHARD P & LINDA F |
ADMR OF VETERANS AFFAIRS |
||
|
3/1/1983 |
|
Historical |
$0 |
|
SOISSON RICHARD P & LINDA F |
||
| Last Mailed Notice of Value (N.O.V.) Information/History | ||||||||
|---|---|---|---|---|---|---|---|---|
| Year | Date | Market Value | Taxable Market Value | Gross Assessed | Exemption | Net Assessed | ||
|
2026 |
03/30/2026 |
132,500 |
124,582 |
13,703 |
0 |
13,703 |
||
|
2025 |
01/31/2025 |
122,500 |
118,650 |
13,051 |
0 |
13,051 |
||
|
2024 |
01/22/2024 |
113,000 |
113,000 |
12,430 |
0 |
12,430 |
||
|
2023 |
01/23/2023 |
93,500 |
69,933 |
7,692 |
1,000 |
6,692 |
||
|
2022 |
02/22/2022 |
85,000 |
67,897 |
7,468 |
1,000 |
6,468 |
||
| Property Building Permit History | |||||||||||
|---|---|---|---|---|---|---|---|---|---|---|---|
| Issued | Permit # | Provided by | Bldg # | Description | Est Construction Cost | Status | |||||
| No Building Permit records returned. | |||||||||||
| Click button on building number to access detailed information: | ||||||
|---|---|---|---|---|---|---|
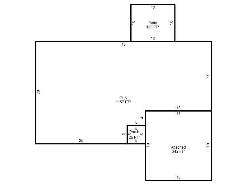
| Bldg # | Vacant/Improved Land | Bldg Description | Year Built | SqFt | # Stories | |
|
1 |
Improved |
Ranch 1 Story |
1983 |
1,157 |
1 Stories |
|