|
|
|
| Larry Stein Oklahoma County Assessor (405) 713-1200 - Public Access System |
|
|
|
|
|
|
| Real Property Display - Screen Produced 3/21/2026 6:48:34 PM | ||||
|---|---|---|---|---|
| Account: R191611550 | Type: Residential | Location: |
2020 N POST RD |
|
| Building Name/Occupant: |
|
NICOMA PARK |
||
| Owner Name 1: | HUMPHREY THOMAS JOSEPH |
Parcel PIN#: |
2320-19-161-1550 |
|
| Owner Name 2: | 1/4 section #: |
2320 |
||
| Owner Name 3: | Parent Acct: |
|
||
| Billing Address: | 2020 N POST RD | Tax District: |
|
|
| City, State, Zip | OKLAHOMA CITY, OK 73141-4212 | School System: |
Oklahoma City #89 |
|
|
Country: (If noted) |
Land Size: |
0.6500 Acres |
||
|
Land Value: 13,442 |
|
|||
|
Sect 30-T12N-R1W Qtr NW |
FITCH SUB ADDITION
Block
000
Lot
015
|
|||
| Full Legal Description: FITCH SUB ADDITION 000 015 W 1/2 |
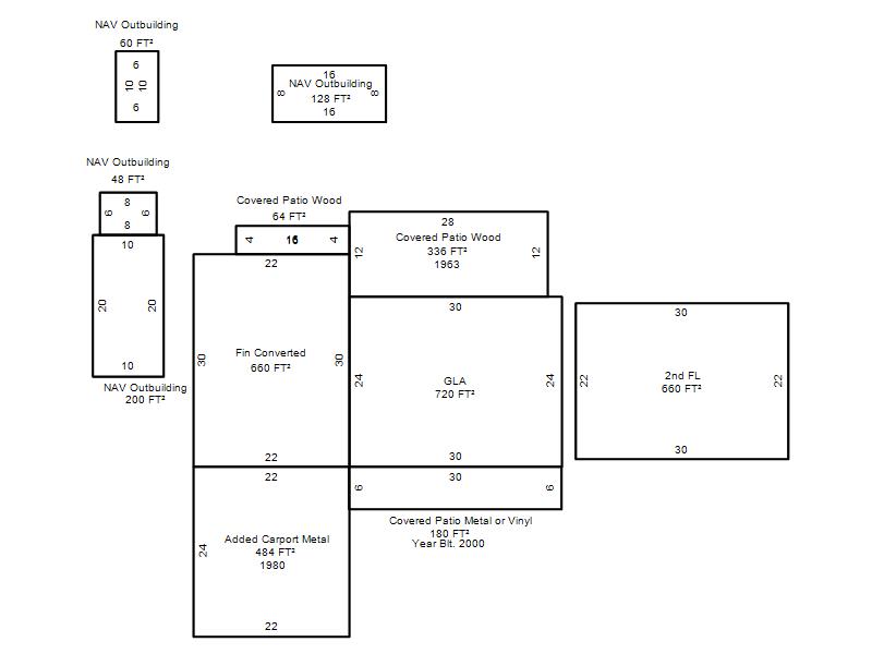
| Photo & Sketch (if available) | Comp Sales (ordered by relevancy) |
|
||||||||||||||||||
|
||||||||||||||||||||
| Value History (*The County Treasurer 405-713-1300 posts & collects actual tax amounts. Contact information HERE) | |||||||||||||
|---|---|---|---|---|---|---|---|---|---|---|---|---|---|
| Year | Market Value | Taxable Mkt Value | Gross Assessed | Exemption | Net Assessed | Millage | Est. Tax | Tax Savings | |||||
|
2025 |
197,000 |
180,600 |
19,866 |
0 |
19,866 |
107.74 |
$2,140 |
$194 |
|||||
|
2024 |
172,000 |
172,000 |
18,920 |
0 |
18,920 |
108.96 |
$2,062 |
$0 |
|||||
|
2023 |
152,000 |
121,550 |
13,369 |
0 |
13,369 |
108.04 |
$1,445 |
$362 |
|||||
|
2022 |
140,000 |
115,762 |
12,733 |
0 |
12,733 |
102.17 |
$1,301 |
$272 |
|||||
|
2021 |
113,500 |
110,250 |
12,127 |
0 |
12,127 |
102.97 |
$1,249 |
$37 |
|||||
| Property Account Status/Adjustments/Exemptions | ||
|---|---|---|
| Account # | Exemption Description | Amount |
|
R191611550 |
5% Capped Account |
0 |
| Property Deed Transaction History (Recorded in the County Clerk's Office) | ||||||||||
|---|---|---|---|---|---|---|---|---|---|---|
| Date | Type | Book | Page | Price | Grantor | Grantee | ||||
|
7/24/2023 |
|
Deeds |
$175,000 |
HATFIELD GRAYSON G II & AMANDA J |
HUMPHREY THOMAS JOSEPH |
|||||
|
4/14/2015 |
|
Deeds |
$99,500 |
LUNDY CALEB K & LINDSIE R |
HATFIELD GRAYSON G II & AMANDA J |
|||||
|
2/17/2012 |
|
Deeds |
$40,000 |
SECRETARY OF VETERANS AFFAIRS |
LUNDY CALEB K & LINDSIE R |
|||||
|
6/1/2011 |
|
Other |
$0 |
PITTMAN JOE DAVID II |
SECRETARY OF VETERANS AFFAIRS |
|||||
|
2/27/2007 |
|
Deeds |
$73,000 |
RAMON RAMIRO |
PITTMAN JOE DAVID II |
|||||
| Last Mailed Notice of Value (N.O.V.) Information/History | ||||||||
|---|---|---|---|---|---|---|---|---|
| Year | Date | Market Value | Taxable Market Value | Gross Assessed | Exemption | Net Assessed | ||
|
2026 |
02/06/2026 |
195,000 |
189,630 |
20,859 |
0 |
20,859 |
||
|
2025 |
01/31/2025 |
197,000 |
180,600 |
19,866 |
0 |
19,866 |
||
|
2024 |
01/22/2024 |
172,000 |
172,000 |
18,920 |
0 |
18,920 |
||
|
2023 |
01/23/2023 |
152,000 |
121,550 |
13,369 |
0 |
13,369 |
||
|
2022 |
02/22/2022 |
140,000 |
115,762 |
12,733 |
0 |
12,733 |
||
| Property Building Permit History | |||||||||||
|---|---|---|---|---|---|---|---|---|---|---|---|
| Issued | Permit # | Provided by | Bldg # | Description | Est Construction Cost | Status | |||||
| No Building Permit records returned. | |||||||||||
| Click button on building number to access detailed information: | ||||||
|---|---|---|---|---|---|---|
| Bldg # | Vacant/Improved Land | Bldg Description | Year Built | SqFt | # Stories | |
|
1 |
Improved |
2 Story |
1959 |
1,380 |
2 Stories |
|