|
|
|
| Larry Stein Oklahoma County Assessor (405) 713-1200 - Public Access System |
|
|
|
|
|
|
| Real Property Display - Screen Produced 3/21/2026 4:57:28 PM | ||||
|---|---|---|---|---|
| Account: R191611950 | Type: Residential | Location: |
1916 N POST RD |
|
| Building Name/Occupant: |
|
NICOMA PARK |
||
| Owner Name 1: | SOONER HOME OPTIONS LLC |
Parcel PIN#: |
2320-19-161-1950 |
|
| Owner Name 2: | 1/4 section #: |
2320 |
||
| Owner Name 3: | Parent Acct: |
|
||
| Billing Address: | PO BOX 50660 | Tax District: |
|
|
| City, State, Zip | MIDWEST CITY, OK 73140 | School System: |
Oklahoma City #89 |
|
|
Country: (If noted) |
Land Size: |
0.6500 Acres |
||
|
Land Value: 13,442 |
|
|||
|
Sect 30-T12N-R1W Qtr NW |
FITCH SUB ADDITION
Block
000
Lot
019
|
|||
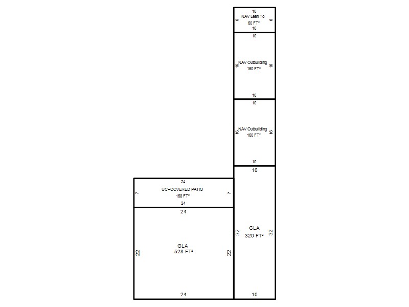
| Full Legal Description: FITCH SUB ADDITION 000 019 W 1/2 |
| Photo & Sketch (if available) | Comp Sales (ordered by relevancy) |
|
||||||||||||||||||
|
||||||||||||||||||||
| Value History (*The County Treasurer 405-713-1300 posts & collects actual tax amounts. Contact information HERE) | |||||||||||||
|---|---|---|---|---|---|---|---|---|---|---|---|---|---|
| Year | Market Value | Taxable Mkt Value | Gross Assessed | Exemption | Net Assessed | Millage | Est. Tax | Tax Savings | |||||
|
2025 |
80,500 |
69,300 |
7,623 |
0 |
7,623 |
107.74 |
$821 |
$133 |
|||||
|
2024 |
66,000 |
66,000 |
7,260 |
0 |
7,260 |
108.96 |
$791 |
$0 |
|||||
|
2023 |
71,000 |
71,000 |
7,810 |
0 |
7,810 |
108.04 |
$844 |
$0 |
|||||
|
2022 |
48,500 |
48,500 |
5,335 |
0 |
5,335 |
102.17 |
$545 |
$0 |
|||||
|
2021 |
47,500 |
47,250 |
5,197 |
0 |
5,197 |
102.97 |
$535 |
$3 |
|||||
| Property Account Status/Adjustments/Exemptions | ||
|---|---|---|
| Account # | Exemption Description | Amount |
|
R191611950 |
5% Capped Account |
0 |
| Property Deed Transaction History (Recorded in the County Clerk's Office) | ||||||||||
|---|---|---|---|---|---|---|---|---|---|---|
| Date | Type | Book | Page | Price | Grantor | Grantee | ||||
|
10/6/2022 |
|
Deeds |
$70,000 |
CURRY JOSEPH COOK |
SOONER HOME OPTIONS LLC |
|||||
|
3/26/2021 |
|
Deeds |
$47,000 |
DUARTE JORGE L |
CURRY JOSEPH COOK |
|||||
|
10/10/2019 |
|
Deeds |
$30,000 |
EGIRLS LLC |
DUARTE JORGE L |
|||||
|
7/17/2013 |
|
Hmstd Off & |
$0 |
PRICE JANET SUE ETAL |
EGIRLS LLC |
|||||
|
6/27/2013 |
|
Hmstd Off & |
$0 |
BURNETT ETHEL A TRS |
PRICE JANET SUE VOTAW JUANITA ANN |
|||||
| Last Mailed Notice of Value (N.O.V.) Information/History | ||||||||
|---|---|---|---|---|---|---|---|---|
| Year | Date | Market Value | Taxable Market Value | Gross Assessed | Exemption | Net Assessed | ||
|
2025 |
01/31/2025 |
80,500 |
69,300 |
7,623 |
0 |
7,623 |
||
|
2023 |
01/23/2023 |
71,000 |
71,000 |
7,810 |
0 |
7,810 |
||
|
2022 |
02/22/2022 |
48,500 |
48,500 |
5,335 |
0 |
5,335 |
||
|
2021 |
02/24/2021 |
47,500 |
47,250 |
5,197 |
0 |
5,197 |
||
|
2020 |
02/21/2020 |
45,000 |
45,000 |
4,950 |
0 |
4,950 |
||
| Property Building Permit History | |||||||||||
|---|---|---|---|---|---|---|---|---|---|---|---|
| Issued | Permit # | Provided by | Bldg # | Description | Est Construction Cost | Status | |||||
| No Building Permit records returned. | |||||||||||
| Click button on building number to access detailed information: | ||||||
|---|---|---|---|---|---|---|
| Bldg # | Vacant/Improved Land | Bldg Description | Year Built | SqFt | # Stories | |
|
1 |
Improved |
Ranch 1 Story |
1940 |
848 |
1 Stories |
|