|
|
|
| Larry Stein Oklahoma County Assessor (405) 713-1200 - Public Access System |
|
|
|
|
|
|
| Real Property Display - Screen Produced 3/19/2026 1:05:05 AM | ||||
|---|---|---|---|---|
| Account: R146318500 | Type: Residential | Location: |
3603 S HIWASSEE RD |
|
| Building Name/Occupant: |
|
OKLAHOMA CITY |
||
| Owner Name 1: | LANDERS SAMUEL JAY |
Parcel PIN#: |
1261-14-631-8500 |
|
| Owner Name 2: | LANDERS BETTY JEAN | 1/4 section #: |
1261 |
|
| Owner Name 3: | Parent Acct: |
|
||
| Billing Address: | 3603 S HIWASSEE RD | Tax District: |
|
|
| City, State, Zip | CHOCTAW, OK 73020 | School System: |
Choctaw #4 |
|
|
Country: (If noted) |
UNITED STATES |
Land Size: |
2.5000 Acres |
|
|
Land Value: 16,250 |
|
|||
|
Sect 16-T11N-R1W Qtr NE |
HANS RASMUSSEN TRACT
Block
000
Lot
000
|
|||
| Full Legal Description: HANS RASMUSSEN TRACT 000 000 E 1/2 OF W 1/2 OF TR 7 |
| Photo & Sketch (if available) | Comp Sales (ordered by relevancy) |
|
||||||||||||||||||
|
||||||||||||||||||||
| Value History (*The County Treasurer 405-713-1300 posts & collects actual tax amounts. Contact information HERE) | |||||||||||||
|---|---|---|---|---|---|---|---|---|---|---|---|---|---|
| Year | Market Value | Taxable Mkt Value | Gross Assessed | Exemption | Net Assessed | Millage | Est. Tax | Tax Savings | |||||
|
2025 |
252,000 |
252,000 |
27,720 |
1,000 |
26,720 |
132.37 |
$3,537 |
$132 |
|||||
|
2024 |
247,000 |
247,000 |
27,170 |
0 |
27,170 |
131.28 |
$3,567 |
$0 |
|||||
|
2023 |
158,500 |
110,775 |
12,185 |
0 |
12,185 |
131.88 |
$1,607 |
$692 |
|||||
|
2022 |
105,500 |
105,500 |
11,605 |
0 |
11,605 |
130.63 |
$1,516 |
$0 |
|||||
|
2021 |
105,500 |
105,500 |
11,605 |
0 |
11,605 |
129.79 |
$1,506 |
$0 |
|||||
| Property Account Status/Adjustments/Exemptions | ||
|---|---|---|
| Account # | Exemption Description | Amount |
|
R146318500 |
3% Cap Homestead |
0 |
|
R146318500 |
Homestead |
1,000 |
| Property Deed Transaction History (Recorded in the County Clerk's Office) | ||||||||||
|---|---|---|---|---|---|---|---|---|---|---|
| Date | Type | Book | Page | Price | Grantor | Grantee | ||||
|
9/13/2023 |
|
Deeds |
$260,000 |
GILLEY KEVIN R & SHERYL A |
LANDERS SAMUEL JAY |
|||||
|
6/29/2017 |
|
Deeds |
$100,000 |
HEART OF GOD MINISTRIES |
GILLEY KEVIN R & SHERYL A |
|||||
|
3/24/2005 |
|
Deeds |
$108,500 |
PAYTON BRIAN D & LAYLA D |
HEART OF GOD MINISTRIES |
|||||
|
7/25/2002 |
|
Deeds |
$74,000 |
DOWNEY PAULA R |
PAYTON BRIAN D & LAYLA D |
|||||
|
4/30/1997 |
|
Historical |
$68,000 |
HUGGINS CLINT D |
DOWNEY PAULA R |
|||||
| Last Mailed Notice of Value (N.O.V.) Information/History | ||||||
|---|---|---|---|---|---|---|
| Year | Date | Market Value | Taxable Market Value | Gross Assessed | Exemption | Net Assessed |
|
2025 |
01/31/2025 |
252,000 |
252,000 |
27,720 |
1,000 |
26,720 |
|
2024 |
01/22/2024 |
247,000 |
247,000 |
27,170 |
0 |
27,170 |
|
2023 |
01/23/2023 |
158,500 |
110,775 |
12,185 |
0 |
12,185 |
|
2018 |
04/09/2018 |
105,500 |
105,500 |
11,606 |
0 |
11,606 |
| Property Building Permit History | |||||||||||
|---|---|---|---|---|---|---|---|---|---|---|---|
| Issued | Permit # | Provided by | Bldg # | Description | Est Construction Cost | Status | |||||
| No Building Permit records returned. | |||||||||||
| Click button on building number to access detailed information: | ||||||
|---|---|---|---|---|---|---|
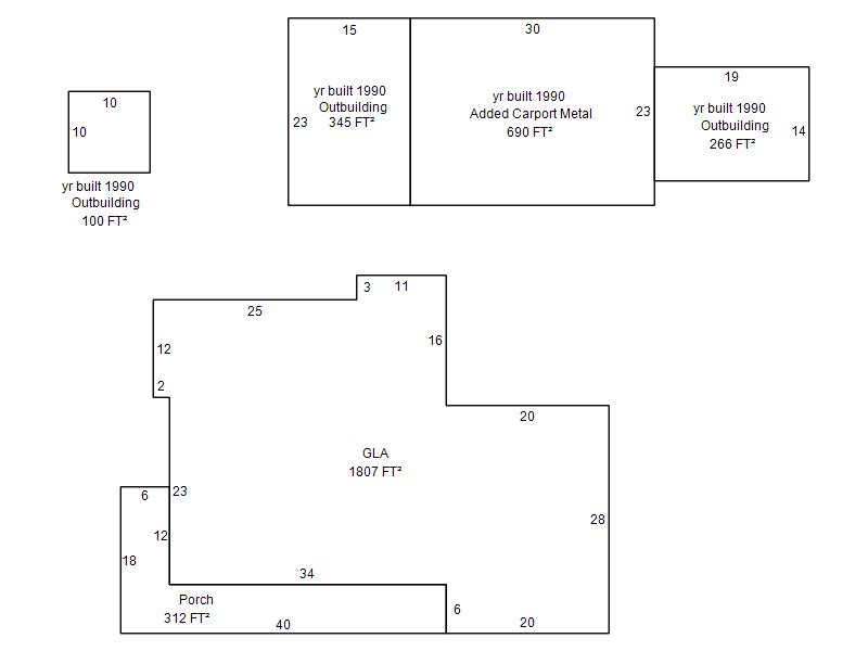
| Bldg # | Vacant/Improved Land | Bldg Description | Year Built | SqFt | # Stories | |
|
1 |
Improved |
Ranch 1 Story |
1953 |
1,807 |
1 Stories |
|