|
|
|
| Larry Stein Oklahoma County Assessor (405) 713-1200 - Public Access System |
|
|
|
|
|
|
| Real Property Display - Screen Produced 3/20/2026 5:46:27 AM | ||||
|---|---|---|---|---|
| Account: R197921115 | Type: Residential | Location: |
11379 KERWIN LN |
|
| Building Name/Occupant: |
|
CHOCTAW |
||
| Owner Name 1: | BITTER KAYLA |
Parcel PIN#: |
2328-19-792-1115 |
|
| Owner Name 2: | SMITH WILLIAM DEAN | 1/4 section #: |
2328 |
|
| Owner Name 3: | Parent Acct: |
|
||
| Billing Address: | 11379 KERWIN LN | Tax District: |
|
|
| City, State, Zip | CHOCTAW, OK 73020-7709 | School System: |
Choctaw #4 |
|
|
Country: (If noted) |
Land Size: |
0.3100 Acres |
||
|
Land Value: 17,050 |
|
|||
|
Sect 32-T12N-R1W Qtr NW |
LADEN ACRES 2ND
Block
001
Lot
002
|
|||
| Full Legal Description: LADEN ACRES 2ND 001 002 |
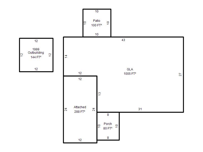
| Photo & Sketch (if available) | Comp Sales (ordered by relevancy) |
|
||||||||||||||||||
|
||||||||||||||||||||
| Value History (*The County Treasurer 405-713-1300 posts & collects actual tax amounts. Contact information HERE) | |||||||||||||
|---|---|---|---|---|---|---|---|---|---|---|---|---|---|
| Year | Market Value | Taxable Mkt Value | Gross Assessed | Exemption | Net Assessed | Millage | Est. Tax | Tax Savings | |||||
|
2025 |
177,500 |
112,867 |
12,415 |
0 |
12,415 |
117.21 |
$1,455 |
$833 |
|||||
|
2024 |
171,000 |
107,493 |
11,824 |
0 |
11,824 |
116.35 |
$1,376 |
$813 |
|||||
|
2023 |
157,000 |
102,375 |
11,261 |
0 |
11,261 |
118.06 |
$1,330 |
$709 |
|||||
|
2022 |
97,500 |
97,500 |
10,725 |
0 |
10,725 |
116.14 |
$1,246 |
$0 |
|||||
|
2021 |
97,500 |
97,500 |
10,725 |
0 |
10,725 |
116.17 |
$1,246 |
$0 |
|||||
| Property Account Status/Adjustments/Exemptions | ||||||
|---|---|---|---|---|---|---|
| Account # | Exemption Description | Amount | ||||
| No adjustment/exemption records returned. | ||||||
| Property Deed Transaction History (Recorded in the County Clerk's Office) | ||||||||||
|---|---|---|---|---|---|---|---|---|---|---|
| Date | Type | Book | Page | Price | Grantor | Grantee | ||||
|
7/8/2025 |
|
Deeds |
$160,000 |
TESZLEWICZ MINDY |
BITTER KAYLA |
|||||
|
5/28/2019 |
|
Deeds |
$97,000 |
GOODWIN CODY DON & SAMANTHA MARIE |
TESZLEWICZ MINDY |
|||||
|
4/24/2015 |
|
Deeds |
$84,000 |
LOFTON TERETTA |
GOODWIN CODY DON & SAMANTHA MARIE |
|||||
|
11/29/2011 |
|
Deeds |
$80,000 |
SCHULTZ BERNARD |
LOFTON TERETTA |
|||||
|
3/4/2005 |
|
Deeds |
$70,000 |
ANDERSON JOHN RAYMOND |
SCHULTZ BERNARD |
|||||
| Last Mailed Notice of Value (N.O.V.) Information/History | ||||||||
|---|---|---|---|---|---|---|---|---|
| Year | Date | Market Value | Taxable Market Value | Gross Assessed | Exemption | Net Assessed | ||
|
2026 |
02/06/2026 |
171,500 |
171,500 |
18,865 |
0 |
18,865 |
||
|
2025 |
01/31/2025 |
177,500 |
112,867 |
12,415 |
0 |
12,415 |
||
|
2024 |
01/22/2024 |
171,000 |
107,493 |
11,824 |
0 |
11,824 |
||
|
2023 |
01/23/2023 |
157,000 |
102,375 |
11,261 |
0 |
11,261 |
||
|
2020 |
02/21/2020 |
97,500 |
97,500 |
10,725 |
0 |
10,725 |
||
| Property Building Permit History | ||||||
|---|---|---|---|---|---|---|
| Issued | Permit # | Provided by | Bldg # | Description | Est Construction Cost | Status |
|
6/24/1998 |
10263695 |
CHOCTAW |
1 |
Storage Buil |
1,200 |
Inactive |
| Click button on building number to access detailed information: | ||||||
|---|---|---|---|---|---|---|
| Bldg # | Vacant/Improved Land | Bldg Description | Year Built | SqFt | # Stories | |
|
1 |
Improved |
Ranch 1 Story |
1977 |
1,005 |
1 Stories |
|