|
|
|
| Larry Stein Oklahoma County Assessor (405) 713-1200 - Public Access System |
|
|
|
|
|
|
| Real Property Display - Screen Produced 3/18/2026 3:02:23 PM | ||||
|---|---|---|---|---|
| Account: R194892450 | Type: Residential | Location: |
730 JOLLIE DR |
|
| Building Name/Occupant: |
|
CHOCTAW |
||
| Owner Name 1: | YATES RACHEL & DANIAL |
Parcel PIN#: |
2332-19-489-2450 |
|
| Owner Name 2: | 1/4 section #: |
2332 |
||
| Owner Name 3: | Parent Acct: |
|
||
| Billing Address: | 730 JOLLIE DR | Tax District: |
|
|
| City, State, Zip | CHOCTAW, OK 73020-7637 | School System: |
Choctaw #4 |
|
|
Country: (If noted) |
Land Size: |
7.8000 Acres |
||
|
Land Value: 49,974 |
|
|||
|
Sect 33-T12N-R1W Qtr NW |
UNPLTD PT SEC 33 12N 1W
Block
000
Lot
000
|
|||
| Full Legal Description: UNPLTD PT OF NW4 SEC 33 12N 1W BEG 1320FT S OF NE/C OF NW4 TH S264FT TH W TO 30FT E OF CENTER LINE OF NW4 TH N264FT TH E TO E LINE OF NW4 |
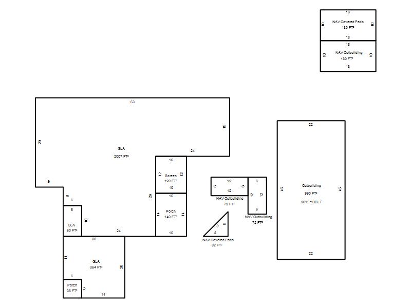
| Photo & Sketch (if available) | Comp Sales (ordered by relevancy) |
|
||||||||||||||||||
|
||||||||||||||||||||
| Value History (*The County Treasurer 405-713-1300 posts & collects actual tax amounts. Contact information HERE) | |||||||||||||
|---|---|---|---|---|---|---|---|---|---|---|---|---|---|
| Year | Market Value | Taxable Mkt Value | Gross Assessed | Exemption | Net Assessed | Millage | Est. Tax | Tax Savings | |||||
|
2025 |
347,500 |
347,500 |
38,225 |
0 |
38,225 |
117.21 |
$4,480 |
$0 |
|||||
|
2024 |
262,500 |
249,375 |
27,431 |
0 |
27,431 |
116.35 |
$3,192 |
$168 |
|||||
|
2023 |
237,500 |
237,500 |
26,125 |
0 |
26,125 |
118.06 |
$3,084 |
$0 |
|||||
|
2022 |
245,500 |
245,500 |
27,005 |
0 |
27,005 |
116.14 |
$3,136 |
$0 |
|||||
|
2021 |
187,000 |
178,705 |
19,657 |
1,000 |
18,657 |
116.17 |
$2,167 |
$222 |
|||||
| Property Account Status/Adjustments/Exemptions | ||
|---|---|---|
| Account # | Exemption Description | Amount |
|
R194892450 |
5% Capped Account |
0 |
| Property Deed Transaction History (Recorded in the County Clerk's Office) | |||||||
|---|---|---|---|---|---|---|---|
| Date | Type | Book | Page | Price | Grantor | Grantee | |
|
5/15/2024 |
|
Deeds |
$406,000 |
HARRIS JASON |
YATES RACHEL & DANIAL |
||
|
6/9/2021 |
|
Deeds |
$250,000 |
YELL KEVIN |
HARRIS JASON |
||
|
2/10/2012 |
|
Deeds |
$167,500 |
VASSEUR GARETH V & RUTH A |
YELL KEVIN |
||
|
11/11/1911 |
|
Historical |
$0 |
|
VASSEUR GARETH V & RUTH A |
||
| Last Mailed Notice of Value (N.O.V.) Information/History | ||||||||
|---|---|---|---|---|---|---|---|---|
| Year | Date | Market Value | Taxable Market Value | Gross Assessed | Exemption | Net Assessed | ||
|
2026 |
02/06/2026 |
369,500 |
364,875 |
40,136 |
0 |
40,136 |
||
|
2025 |
01/31/2025 |
347,500 |
347,500 |
38,225 |
0 |
38,225 |
||
|
2024 |
01/22/2024 |
262,500 |
249,375 |
27,431 |
0 |
27,431 |
||
|
2023 |
01/23/2023 |
237,500 |
237,500 |
26,125 |
0 |
26,125 |
||
|
2022 |
02/22/2022 |
245,500 |
245,500 |
27,005 |
0 |
27,005 |
||
| Property Building Permit History | ||||||
|---|---|---|---|---|---|---|
| Issued | Permit # | Provided by | Bldg # | Description | Est Construction Cost | Status |
|
9/12/2014 |
10465465 |
CHOCTAW |
1 |
Storage Buil |
15,000 |
Inactive |
| Click button on building number to access detailed information: | ||||||
|---|---|---|---|---|---|---|
| Bldg # | Vacant/Improved Land | Bldg Description | Year Built | SqFt | # Stories | |
|
1 |
Improved |
Ranch 1 Story |
1962 |
2,431 |
1 Stories |
|