|
|
|
| Larry Stein Oklahoma County Assessor (405) 713-1200 - Public Access System |
|
|
|
|
|
|
| Real Property Display - Screen Produced 3/18/2026 7:46:58 PM | ||||
|---|---|---|---|---|
| Account: R197881440 | Type: Residential | Location: |
13801 NE 9TH ST |
|
| Building Name/Occupant: |
|
CHOCTAW |
||
| Owner Name 1: | SHUMWAY KYLEE NOEL |
Parcel PIN#: |
2333-19-788-1440 |
|
| Owner Name 2: | 1/4 section #: |
2333 |
||
| Owner Name 3: | Parent Acct: |
|
||
| Billing Address: | 13801 NE 9TH ST | Tax District: |
|
|
| City, State, Zip | CHOCTAW, OK 73020-7628 | School System: |
Choctaw #4 |
|
|
Country: (If noted) |
Land Size: |
0.4424 Acres |
||
|
Land Value: 30,835 |
|
|||
|
Sect 34-T12N-R1W Qtr NE |
GILLESPIE ESTATES
Block
002
Lot
014
|
|||
| Full Legal Description: GILLESPIE ESTATES 002 014 |
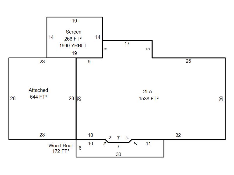
| Photo & Sketch (if available) | Comp Sales (ordered by relevancy) |
|
||||||||||||||||||
|
||||||||||||||||||||
| Value History (*The County Treasurer 405-713-1300 posts & collects actual tax amounts. Contact information HERE) | |||||||||||||
|---|---|---|---|---|---|---|---|---|---|---|---|---|---|
| Year | Market Value | Taxable Mkt Value | Gross Assessed | Exemption | Net Assessed | Millage | Est. Tax | Tax Savings | |||||
|
2025 |
195,500 |
140,787 |
15,486 |
0 |
15,486 |
117.21 |
$1,815 |
$705 |
|||||
|
2024 |
190,500 |
134,083 |
14,748 |
0 |
14,748 |
116.35 |
$1,716 |
$722 |
|||||
|
2023 |
174,000 |
127,699 |
14,046 |
0 |
14,046 |
118.06 |
$1,658 |
$601 |
|||||
|
2022 |
161,500 |
121,619 |
13,378 |
0 |
13,378 |
116.14 |
$1,554 |
$509 |
|||||
|
2021 |
139,000 |
115,828 |
12,740 |
0 |
12,740 |
116.17 |
$1,480 |
$296 |
|||||
| Property Account Status/Adjustments/Exemptions | ||||||
|---|---|---|---|---|---|---|
| Account # | Exemption Description | Amount | ||||
| No adjustment/exemption records returned. | ||||||
| Property Deed Transaction History (Recorded in the County Clerk's Office) | ||||||||||
|---|---|---|---|---|---|---|---|---|---|---|
| Date | Type | Book | Page | Price | Grantor | Grantee | ||||
|
8/25/2025 |
|
Deeds |
$255,000 |
TUFF HOLDINGS LLC |
SHUMWAY KYLEE NOEL |
|||||
|
2/28/2025 |
|
Hmstd Off & |
$0 |
WILKINSON THOMAS WILBUR TRS |
CURRIE BENJAMIN |
|||||
|
2/28/2025 |
|
Deeds |
$141,000 |
CURRIE BENJAMIN |
TUFF HOLDINGS LLC |
|||||
|
2/11/2025 |
|
Hmstd Off & |
$0 |
WILKINSON WILLIAM CLARENCE |
WILKINSON WILLIAM JR |
|||||
|
1/29/2025 |
|
Hmstd Off & |
$0 |
WILKINSON WILLIAM JR |
WILKINSON THOMAS WILBUR TRS |
|||||
| Last Mailed Notice of Value (N.O.V.) Information/History | ||||||||
|---|---|---|---|---|---|---|---|---|
| Year | Date | Market Value | Taxable Market Value | Gross Assessed | Exemption | Net Assessed | ||
|
2026 |
02/06/2026 |
238,500 |
238,500 |
26,235 |
0 |
26,235 |
||
|
2025 |
01/31/2025 |
195,500 |
140,787 |
15,486 |
0 |
15,486 |
||
|
2025 |
03/28/2025 |
195,500 |
140,787 |
15,486 |
0 |
15,486 |
||
|
2024 |
01/22/2024 |
190,500 |
134,083 |
14,748 |
0 |
14,748 |
||
|
2023 |
01/23/2023 |
174,000 |
127,699 |
14,046 |
0 |
14,046 |
||
| Property Building Permit History | |||||||||||
|---|---|---|---|---|---|---|---|---|---|---|---|
| Issued | Permit # | Provided by | Bldg # | Description | Est Construction Cost | Status | |||||
| No Building Permit records returned. | |||||||||||
| Click button on building number to access detailed information: | ||||||
|---|---|---|---|---|---|---|
| Bldg # | Vacant/Improved Land | Bldg Description | Year Built | SqFt | # Stories | |
|
1 |
Improved |
Ranch 1 Story |
1968 |
1,538 |
1 Stories |
|