|
|
|
| Larry Stein Oklahoma County Assessor (405) 713-1200 - Public Access System |
|
|
|
|
|
|
| Real Property Display - Screen Produced 4/2/2026 9:18:21 AM | ||||
|---|---|---|---|---|
| Account: R122482410 | Type: Residential | Location: |
2712 PAXTON PL |
|
| Building Name/Occupant: |
|
SPENCER |
||
| Owner Name 1: | GADDIS KIANA N |
Parcel PIN#: |
2490-12-248-2410 |
|
| Owner Name 2: | 1/4 section #: |
2490 |
||
| Owner Name 3: | Parent Acct: |
|
||
| Billing Address: | 2712 PAXTON PL | Tax District: |
|
|
| City, State, Zip | SPENCER, OK 73084 | School System: |
Oklahoma City #89 |
|
|
Country: (If noted) |
UNITED STATES |
Land Size: |
0.1515 Acres |
|
|
Land Value: 26,400 |
|
|||
|
Sect 23-T12N-R2W Qtr SE |
BENTREE COUNTRY PLACE
Block
008
Lot
010
|
|||
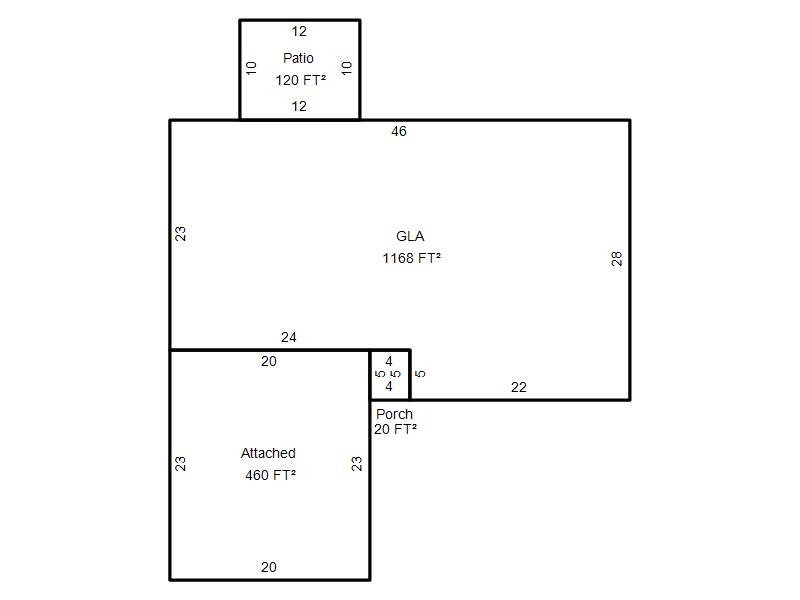
| Full Legal Description: BENTREE COUNTRY PLACE 008 010 |
| Photo & Sketch (if available) | Comp Sales (ordered by relevancy) |
|
||||||||||||||||||
|
||||||||||||||||||||
| Value History (*The County Treasurer 405-713-1300 posts & collects actual tax amounts. Contact information HERE) | |||||||||||||
|---|---|---|---|---|---|---|---|---|---|---|---|---|---|
| Year | Market Value | Taxable Mkt Value | Gross Assessed | Exemption | Net Assessed | Millage | Est. Tax | Tax Savings | |||||
|
2026 |
166,500 |
166,500 |
18,315 |
1,000 |
17,315 |
107.74 |
$1,866 |
$108 |
|||||
|
2025 |
155,000 |
103,418 |
11,375 |
0 |
11,375 |
107.74 |
$1,226 |
$611 |
|||||
|
2024 |
152,500 |
98,494 |
10,833 |
0 |
10,833 |
108.96 |
$1,181 |
$647 |
|||||
|
2023 |
144,000 |
93,804 |
10,318 |
0 |
10,318 |
108.04 |
$1,115 |
$597 |
|||||
|
2022 |
125,500 |
89,338 |
9,825 |
0 |
9,825 |
102.17 |
$1,004 |
$406 |
|||||
| Property Account Status/Adjustments/Exemptions | ||
|---|---|---|
| Account # | Exemption Description | Amount |
|
R122482410 |
Homestead |
1,000 |
| Property Deed Transaction History (Recorded in the County Clerk's Office) | ||||||||||
|---|---|---|---|---|---|---|---|---|---|---|
| Date | Type | Book | Page | Price | Grantor | Grantee | ||||
|
5/26/2025 |
|
Deeds |
$175,000 |
SHESHACK HOMES INC LLC |
GADDIS KIANA N |
|||||
|
1/29/2025 |
|
Deeds |
$68,000 |
DUVALL KINDY D |
SHESHACK HOMES INC LLC |
|||||
|
1/6/2025 |
|
Hmstd Off & |
$0 |
PERKINS RICHARD KEITH JR |
DUVALL KINDY D |
|||||
|
11/11/2014 |
|
Deeds |
$0 |
FREEMAN ROGER D & CYD MARIE |
FREEMAN ROGER D |
|||||
|
11/11/2014 |
|
Other |
$0 |
FREEMAN ROGER D |
PERKINS RICHARD KEITH JR |
|||||
| Last Mailed Notice of Value (N.O.V.) Information/History | ||||||||
|---|---|---|---|---|---|---|---|---|
| Year | Date | Market Value | Taxable Market Value | Gross Assessed | Exemption | Net Assessed | ||
|
2026 |
02/23/2026 |
166,500 |
166,500 |
18,315 |
1,000 |
17,315 |
||
|
2025 |
02/14/2025 |
155,000 |
103,418 |
11,375 |
0 |
11,375 |
||
|
2025 |
03/28/2025 |
155,000 |
103,418 |
11,375 |
0 |
11,375 |
||
|
2024 |
02/13/2024 |
152,500 |
98,494 |
10,833 |
0 |
10,833 |
||
|
2023 |
02/14/2023 |
144,000 |
93,804 |
10,318 |
0 |
10,318 |
||
| Property Building Permit History | |||||||||||
|---|---|---|---|---|---|---|---|---|---|---|---|
| Issued | Permit # | Provided by | Bldg # | Description | Est Construction Cost | Status | |||||
| No Building Permit records returned. | |||||||||||
| Click button on building number to access detailed information: | ||||||
|---|---|---|---|---|---|---|
| Bldg # | Vacant/Improved Land | Bldg Description | Year Built | SqFt | # Stories | |
|
1 |
Improved |
Ranch 1 Story |
1984 |
1,168 |
1 Stories |
|