|
|
|
| Larry Stein Oklahoma County Assessor (405) 713-1200 - Public Access System |
|
|
|
|
|
|
| Real Property Display - Screen Produced 4/1/2026 2:45:56 AM | ||||
|---|---|---|---|---|
| Account: R154762115 | Type: Residential | Location: |
1413 N CHRISTINE DR |
|
| Building Name/Occupant: |
|
MIDWEST CITY |
||
| Owner Name 1: | RODRIGUEZ JOSE & CASSANDRA |
Parcel PIN#: |
2498-15-476-2115 |
|
| Owner Name 2: | 1/4 section #: |
2498 |
||
| Owner Name 3: | Parent Acct: |
|
||
| Billing Address: | 1413 N CHRISTINE | Tax District: |
|
|
| City, State, Zip | MIDWEST CITY, OK 73130 | School System: |
Oklahoma City #89 |
|
|
Country: (If noted) |
Land Size: |
0.1398 Acres |
||
|
Land Value: 15,834 |
|
|||
|
Sect 25-T12N-R2W Qtr SE |
MCGREGOR HEIGHTS
Block
004
Lot
022
|
|||
| Full Legal Description: MCGREGOR HEIGHTS 004 022 |
| Photo & Sketch (if available) | Comp Sales (ordered by relevancy) |
|
||||||||||||||||||
|
||||||||||||||||||||
| Value History (*The County Treasurer 405-713-1300 posts & collects actual tax amounts. Contact information HERE) | |||||||||||||
|---|---|---|---|---|---|---|---|---|---|---|---|---|---|
| Year | Market Value | Taxable Mkt Value | Gross Assessed | Exemption | Net Assessed | Millage | Est. Tax | Tax Savings | |||||
|
2026 |
158,500 |
158,500 |
17,435 |
0 |
17,435 |
114.34 |
$1,994 |
$0 |
|||||
|
2025 |
158,500 |
158,500 |
17,435 |
0 |
17,435 |
114.34 |
$1,994 |
$0 |
|||||
|
2024 |
157,500 |
157,500 |
17,325 |
0 |
17,325 |
116.11 |
$2,012 |
$0 |
|||||
|
2023 |
166,000 |
166,000 |
18,260 |
0 |
18,260 |
115.66 |
$2,112 |
$0 |
|||||
|
2022 |
95,000 |
61,898 |
6,807 |
0 |
6,807 |
110.02 |
$749 |
$401 |
|||||
| Property Account Status/Adjustments/Exemptions | ||
|---|---|---|
| Account # | Exemption Description | Amount |
|
R154762115 |
5% Capped Account |
0 |
| Property Deed Transaction History (Recorded in the County Clerk's Office) | ||||||||||
|---|---|---|---|---|---|---|---|---|---|---|
| Date | Type | Book | Page | Price | Grantor | Grantee | ||||
|
5/24/2022 |
|
Deeds |
$165,000 |
LE TRAM |
RODRIGUEZ JOSE & CASSANDRA |
|||||
|
2/6/2013 |
|
Deeds |
$31,000 |
CITIMORTGAGE INC |
LE TRAM |
|||||
|
10/9/2012 |
|
Hmstd Off & |
$0 |
WOLVERTON IMA E TRS WOLVERTON IMA E REV LIV TRUST |
CITIMORTGAGE INC |
|||||
|
12/13/2006 |
|
Deeds |
$0 |
WOLVERTON IMA ELAINE |
WOLVERTON IMA E TRS WOLVERTON IMA E REV LIV TRUST |
|||||
|
1/26/1994 |
|
Historical |
$0 |
WOLVERTON IRVING K JR & I E |
WOLVERTON IMA ELAINE |
|||||
| Last Mailed Notice of Value (N.O.V.) Information/History | ||||||||
|---|---|---|---|---|---|---|---|---|
| Year | Date | Market Value | Taxable Market Value | Gross Assessed | Exemption | Net Assessed | ||
|
2025 |
02/14/2025 |
158,500 |
158,500 |
17,435 |
0 |
17,435 |
||
|
2023 |
02/14/2023 |
166,000 |
166,000 |
18,260 |
0 |
18,260 |
||
|
2022 |
03/15/2022 |
95,000 |
61,898 |
6,807 |
0 |
6,807 |
||
|
2021 |
03/19/2021 |
71,000 |
58,951 |
6,484 |
0 |
6,484 |
||
|
2020 |
03/10/2020 |
61,500 |
56,144 |
6,175 |
0 |
6,175 |
||
| Property Building Permit History | |||||||||||
|---|---|---|---|---|---|---|---|---|---|---|---|
| Issued | Permit # | Provided by | Bldg # | Description | Est Construction Cost | Status | |||||
| No Building Permit records returned. | |||||||||||
| Click button on building number to access detailed information: | ||||||
|---|---|---|---|---|---|---|
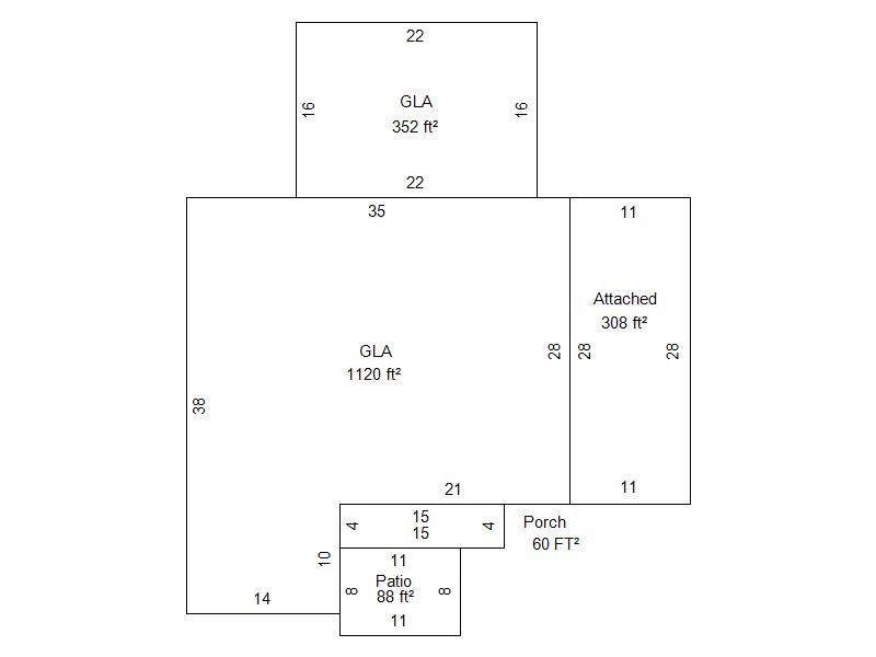
| Bldg # | Vacant/Improved Land | Bldg Description | Year Built | SqFt | # Stories | |
|
1 |
Improved |
Ranch 1 Story |
1970 |
1,472 |
1 Stories |
|