|
|
|
| Larry Stein Oklahoma County Assessor (405) 713-1200 - Public Access System |
|
|
|
|
|
|
| Real Property Display - Screen Produced 4/4/2026 12:18:17 AM | ||||
|---|---|---|---|---|
| Account: R154751485 | Type: Residential | Location: |
9317 NE 12TH ST |
|
| Building Name/Occupant: |
|
MIDWEST CITY |
||
| Owner Name 1: | AVILEE SERVICES LLC |
Parcel PIN#: |
2499-15-475-1485 |
|
| Owner Name 2: | 1/4 section #: |
2499 |
||
| Owner Name 3: | Parent Acct: |
|
||
| Billing Address: | 2445 W I 44 SERVICE RD, Unit C | Tax District: |
|
|
| City, State, Zip | OKLAHOMA CITY, OK 73112-8894 | School System: |
Oklahoma City #89 |
|
|
Country: (If noted) |
Land Size: |
0.2531 Acres |
||
|
Land Value: 14,333 |
|
|||
|
Sect 25-T12N-R2W Qtr SW |
ASHFORD HGTS ADD
Block
003
Lot
019
|
|||
| Full Legal Description: ASHFORD HGTS ADD 003 019 |
| Photo & Sketch (if available) | Comp Sales (ordered by relevancy) |
|
||||||||||||||||||
|
||||||||||||||||||||
| Value History (*The County Treasurer 405-713-1300 posts & collects actual tax amounts. Contact information HERE) | |||||||||||||
|---|---|---|---|---|---|---|---|---|---|---|---|---|---|
| Year | Market Value | Taxable Mkt Value | Gross Assessed | Exemption | Net Assessed | Millage | Est. Tax | Tax Savings | |||||
|
2026 |
124,000 |
111,352 |
12,248 |
0 |
12,248 |
114.34 |
$1,401 |
$159 |
|||||
|
2025 |
128,500 |
106,050 |
11,665 |
0 |
11,665 |
114.34 |
$1,334 |
$282 |
|||||
|
2024 |
101,000 |
101,000 |
11,110 |
0 |
11,110 |
116.11 |
$1,290 |
$0 |
|||||
|
2023 |
108,500 |
92,400 |
10,164 |
0 |
10,164 |
115.66 |
$1,176 |
$205 |
|||||
|
2022 |
88,000 |
88,000 |
9,680 |
0 |
9,680 |
110.02 |
$1,065 |
$0 |
|||||
| Property Account Status/Adjustments/Exemptions | ||
|---|---|---|
| Account # | Exemption Description | Amount |
|
R154751485 |
5% Capped Account |
0 |
| Property Deed Transaction History (Recorded in the County Clerk's Office) | ||||||||||
|---|---|---|---|---|---|---|---|---|---|---|
| Date | Type | Book | Page | Price | Grantor | Grantee | ||||
|
5/10/2023 |
|
Deeds |
$91,000 |
MVP FLIP LLC |
AVILEE SERVICES LLC |
|||||
|
5/7/2021 |
|
Deeds |
$86,000 |
JONES DARLA & GARY |
MVP FLIP LLC |
|||||
|
7/31/2018 |
|
Hmstd Off & |
$0 |
CHA HER IA |
KREI INC |
|||||
|
7/31/2018 |
|
Deeds |
$57,000 |
KREI INC |
JONES DARLA & GARY |
|||||
|
10/8/2009 |
|
Hmstd Off & |
$0 |
IA CHA HER |
KREI INC |
|||||
| Last Mailed Notice of Value (N.O.V.) Information/History | ||||||||
|---|---|---|---|---|---|---|---|---|
| Year | Date | Market Value | Taxable Market Value | Gross Assessed | Exemption | Net Assessed | ||
|
2026 |
02/23/2026 |
124,000 |
111,352 |
12,248 |
0 |
12,248 |
||
|
2025 |
02/14/2025 |
128,500 |
106,050 |
11,665 |
0 |
11,665 |
||
|
2024 |
02/13/2024 |
101,000 |
101,000 |
11,110 |
0 |
11,110 |
||
|
2023 |
02/14/2023 |
108,500 |
92,400 |
10,164 |
0 |
10,164 |
||
|
2022 |
03/15/2022 |
88,000 |
88,000 |
9,680 |
0 |
9,680 |
||
| Property Building Permit History | |||||||||||
|---|---|---|---|---|---|---|---|---|---|---|---|
| Issued | Permit # | Provided by | Bldg # | Description | Est Construction Cost | Status | |||||
| No Building Permit records returned. | |||||||||||
| Click button on building number to access detailed information: | ||||||
|---|---|---|---|---|---|---|
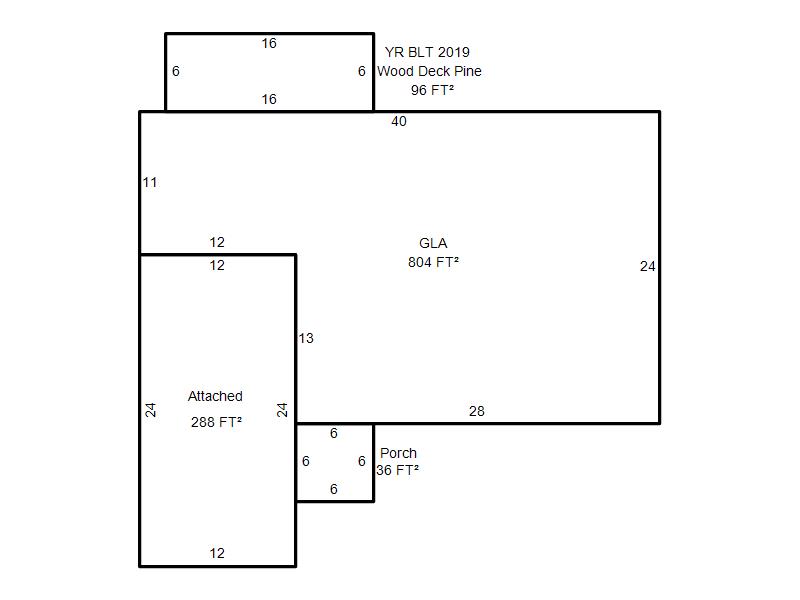
| Bldg # | Vacant/Improved Land | Bldg Description | Year Built | SqFt | # Stories | |
|
1 |
Improved |
Ranch 1 Story |
1955 |
804 |
1 Stories |
|