|
|
|
| Larry Stein Oklahoma County Assessor (405) 713-1200 - Public Access System |
|
|
|
|
|
|
| Real Property Display - Screen Produced 4/4/2026 5:23:37 AM | ||||
|---|---|---|---|---|
| Account: R154771555 | Type: Residential | Location: |
1433 ALAN LN |
|
| Building Name/Occupant: |
|
MIDWEST CITY |
||
| Owner Name 1: | SOUTHWEST VISIONARY INVESTMENTS LLC |
Parcel PIN#: |
2499-15-477-1555 |
|
| Owner Name 2: | 1/4 section #: |
2499 |
||
| Owner Name 3: | Parent Acct: |
|
||
| Billing Address: | 7809 SUNSET BLVD | Tax District: |
|
|
| City, State, Zip | ROWLETT, TX 75088 | School System: |
Oklahoma City #89 |
|
|
Country: (If noted) |
Land Size: |
0.1653 Acres |
||
|
Land Value: 17,280 |
|
|||
|
Sect 25-T12N-R2W Qtr SW |
OAKWOOD MANOR
Block
003
Lot
033
|
|||
| Full Legal Description: OAKWOOD MANOR 003 033 |
| Photo & Sketch (if available) | Comp Sales (ordered by relevancy) |
|
||||||||||||||||||
|
||||||||||||||||||||
| Value History (*The County Treasurer 405-713-1300 posts & collects actual tax amounts. Contact information HERE) | |||||||||||||
|---|---|---|---|---|---|---|---|---|---|---|---|---|---|
| Year | Market Value | Taxable Mkt Value | Gross Assessed | Exemption | Net Assessed | Millage | Est. Tax | Tax Savings | |||||
|
2026 |
113,500 |
96,967 |
10,665 |
0 |
10,665 |
114.34 |
$1,220 |
$208 |
|||||
|
2025 |
111,000 |
92,350 |
10,158 |
0 |
10,158 |
114.34 |
$1,162 |
$235 |
|||||
|
2024 |
87,000 |
87,000 |
9,570 |
0 |
9,570 |
116.11 |
$1,111 |
$0 |
|||||
|
2023 |
88,000 |
88,000 |
9,680 |
0 |
9,680 |
115.66 |
$1,120 |
$0 |
|||||
|
2022 |
85,500 |
55,477 |
6,101 |
0 |
6,101 |
110.02 |
$671 |
$363 |
|||||
| Property Account Status/Adjustments/Exemptions | ||
|---|---|---|
| Account # | Exemption Description | Amount |
|
R154771555 |
5% Capped Account |
0 |
| Property Deed Transaction History (Recorded in the County Clerk's Office) | ||||||||||
|---|---|---|---|---|---|---|---|---|---|---|
| Date | Type | Book | Page | Price | Grantor | Grantee | ||||
|
12/9/2022 |
|
Deeds |
$78,000 |
QUICK REAL ESTATE SOLUTIONS LLC |
LEGACY INVESTMENT HOLDINGS LLC |
|||||
|
12/9/2022 |
|
Deeds |
$86,500 |
LEGACY INVESTMENT HOLDINGS LLC |
SOUTHWEST VISIONARY INVESTMENTS LLC |
|||||
|
12/2/2022 |
|
Deeds |
$48,000 |
MCGEE JENNIFER |
QUICK REAL ESTATE SOLUTIONS LLC |
|||||
|
11/7/2018 |
|
Hmstd Off & |
$0 |
BOUFKIRK TARIK & JENNIFER |
MCGEE JENNIFER |
|||||
|
4/8/2010 |
|
Deeds |
$55,500 |
BARNETT BRADFORD L & PATRICIA |
BOUFKIRK TARIK & JENNIFER |
|||||
| Last Mailed Notice of Value (N.O.V.) Information/History | ||||||||
|---|---|---|---|---|---|---|---|---|
| Year | Date | Market Value | Taxable Market Value | Gross Assessed | Exemption | Net Assessed | ||
|
2026 |
02/23/2026 |
113,500 |
96,967 |
10,665 |
0 |
10,665 |
||
|
2025 |
03/28/2025 |
111,000 |
92,350 |
10,158 |
0 |
10,158 |
||
|
2023 |
02/14/2023 |
88,000 |
88,000 |
9,680 |
0 |
9,680 |
||
|
2022 |
03/15/2022 |
85,500 |
55,477 |
6,101 |
0 |
6,101 |
||
|
2021 |
03/19/2021 |
63,000 |
52,836 |
5,811 |
0 |
5,811 |
||
| Property Building Permit History | |||||||||||
|---|---|---|---|---|---|---|---|---|---|---|---|
| Issued | Permit # | Provided by | Bldg # | Description | Est Construction Cost | Status | |||||
| No Building Permit records returned. | |||||||||||
| Click button on building number to access detailed information: | ||||||
|---|---|---|---|---|---|---|
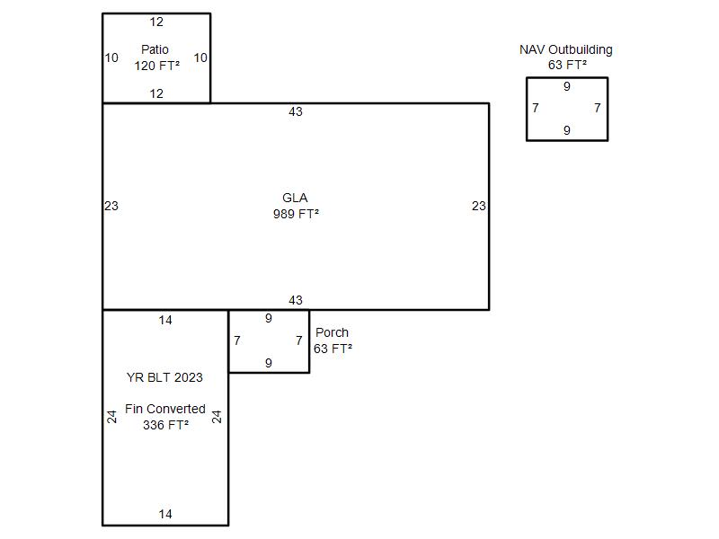
| Bldg # | Vacant/Improved Land | Bldg Description | Year Built | SqFt | # Stories | |
|
1 |
Improved |
Ranch 1 Story |
1969 |
989 |
1 Stories |
|