|
|
|
| Larry Stein Oklahoma County Assessor (405) 713-1200 - Public Access System |
|
|
|
|
|
|
| Real Property Display - Screen Produced 4/8/2026 6:53:47 AM | ||||
|---|---|---|---|---|
| Account: R154400150 | Type: Residential | Location: |
2006 N SAINT LUKE AVE |
|
| Building Name/Occupant: |
|
MIDWEST CITY |
||
| Owner Name 1: | SERNA SALOMON SOTO |
Parcel PIN#: |
2500-15-440-0150 |
|
| Owner Name 2: | RODRIGUEZ ROSA URBIETA | 1/4 section #: |
2500 |
|
| Owner Name 3: | Parent Acct: |
|
||
| Billing Address: | 2006 N SAINT LUKE AVE | Tax District: |
|
|
| City, State, Zip | OKLAHOMA CITY, OK 73141-3033 | School System: |
Oklahoma City #89 |
|
|
Country: (If noted) |
Land Size: |
1.4400 Acres |
||
|
Land Value: 28,800 |
|
|||
|
Sect 25-T12N-R2W Qtr NW |
KANALYS 2ND NE 23RD ST
Block
001
Lot
000
|
|||
| Full Legal Description: KANALYS 2ND NE 23RD ST 001 000 LOTS 14 THRU 16 |
| Photo & Sketch (if available) | Comp Sales (ordered by relevancy) |
|
||||||||||||||||||
|
||||||||||||||||||||
| Value History (*The County Treasurer 405-713-1300 posts & collects actual tax amounts. Contact information HERE) | |||||||||||||
|---|---|---|---|---|---|---|---|---|---|---|---|---|---|
| Year | Market Value | Taxable Mkt Value | Gross Assessed | Exemption | Net Assessed | Millage | Est. Tax | Tax Savings | |||||
|
2026 |
155,000 |
132,300 |
14,553 |
0 |
14,553 |
114.34 |
$1,664 |
$286 |
|||||
|
2025 |
143,500 |
126,000 |
13,860 |
0 |
13,860 |
114.34 |
$1,585 |
$220 |
|||||
|
2024 |
120,000 |
120,000 |
13,200 |
0 |
13,200 |
116.11 |
$1,533 |
$0 |
|||||
|
2023 |
131,000 |
131,000 |
14,410 |
0 |
14,410 |
115.66 |
$1,667 |
$0 |
|||||
|
2022 |
86,500 |
74,448 |
8,187 |
0 |
8,187 |
110.02 |
$901 |
$146 |
|||||
| Property Account Status/Adjustments/Exemptions | ||
|---|---|---|
| Account # | Exemption Description | Amount |
|
R154400150 |
5% Capped Account |
0 |
| Property Deed Transaction History (Recorded in the County Clerk's Office) | ||||||||||
|---|---|---|---|---|---|---|---|---|---|---|
| Date | Type | Book | Page | Price | Grantor | Grantee | ||||
|
4/11/2023 |
|
Deeds |
$137,000 |
RSDI LP |
SERNA SALOMON SOTO |
|||||
|
11/4/2022 |
|
Deeds |
$80,000 |
POWERS JIMMY |
RSDI LP |
|||||
|
8/8/2018 |
|
Deeds |
$0 |
POWERS ANNA DARLENE |
POWERS JIMMY |
|||||
|
11/26/2013 |
|
Deeds |
$0 |
POWERS ANNA DARLENE POWERS JIMMY |
POWERS ANNA DARLENE |
|||||
|
7/7/1995 |
|
Historical |
$0 |
POWERS ANNA DARLENE |
POWERS ANNA DARLENE |
|||||
| Last Mailed Notice of Value (N.O.V.) Information/History | ||||||||
|---|---|---|---|---|---|---|---|---|
| Year | Date | Market Value | Taxable Market Value | Gross Assessed | Exemption | Net Assessed | ||
|
2026 |
02/23/2026 |
155,000 |
132,300 |
14,553 |
0 |
14,553 |
||
|
2025 |
02/14/2025 |
143,500 |
126,000 |
13,860 |
0 |
13,860 |
||
|
2023 |
02/14/2023 |
131,000 |
131,000 |
14,410 |
0 |
14,410 |
||
|
2022 |
03/15/2022 |
86,500 |
74,448 |
8,187 |
0 |
8,187 |
||
|
2021 |
03/19/2021 |
71,500 |
70,903 |
7,799 |
0 |
7,799 |
||
| Property Building Permit History | |||||||||||
|---|---|---|---|---|---|---|---|---|---|---|---|
| Issued | Permit # | Provided by | Bldg # | Description | Est Construction Cost | Status | |||||
| No Building Permit records returned. | |||||||||||
| Click button on building number to access detailed information: | ||||||
|---|---|---|---|---|---|---|
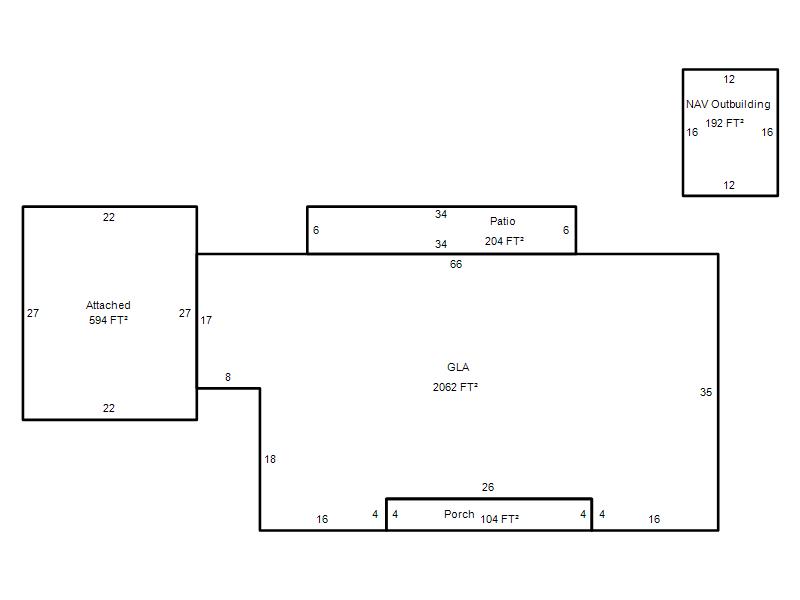
| Bldg # | Vacant/Improved Land | Bldg Description | Year Built | SqFt | # Stories | |
|
1 |
Improved |
Ranch 1 Story |
1951 |
2,062 |
1 Stories |
|