|
|
|
| Larry Stein Oklahoma County Assessor (405) 713-1200 - Public Access System |
|
|
|
|
|
|
| Real Property Display - Screen Produced 4/2/2026 4:16:01 PM | ||||
|---|---|---|---|---|
| Account: R146272150 | Type: Residential | Location: |
1901 N CHERRY AVE |
|
| Building Name/Occupant: |
|
OKLAHOMA CITY |
||
| Owner Name 1: | TRACTION RENTALS LLC |
Parcel PIN#: |
2516-14-627-2150 |
|
| Owner Name 2: | 1/4 section #: |
2516 |
||
| Owner Name 3: | Parent Acct: |
|
||
| Billing Address: | 5030 N MAY AVE, Unit 460 | Tax District: |
|
|
| City, State, Zip | OKLAHOMA CITY, OK 73112-6010 | School System: |
Oklahoma City #89 |
|
|
Country: (If noted) |
Land Size: |
0.1722 Acres |
||
|
Land Value: 12,375 |
|
|||
|
Sect 29-T12N-R2W Qtr NW |
DAYS GARDEN ADDITION
Block
007
Lot
027
|
|||
| Full Legal Description: DAYS GARDEN ADDITION 007 027 |
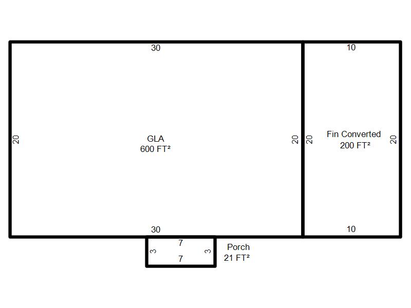
| Photo & Sketch (if available) | Comp Sales (ordered by relevancy) |
|
||||||||||||||||||
|
||||||||||||||||||||
| Value History (*The County Treasurer 405-713-1300 posts & collects actual tax amounts. Contact information HERE) | |||||||||||||
|---|---|---|---|---|---|---|---|---|---|---|---|---|---|
| Year | Market Value | Taxable Mkt Value | Gross Assessed | Exemption | Net Assessed | Millage | Est. Tax | Tax Savings | |||||
|
2026 |
52,500 |
52,500 |
5,775 |
0 |
5,775 |
122.90 |
$710 |
$0 |
|||||
|
2025 |
51,500 |
23,448 |
2,578 |
0 |
2,578 |
122.90 |
$317 |
$379 |
|||||
|
2024 |
50,000 |
22,332 |
2,455 |
0 |
2,455 |
123.89 |
$304 |
$377 |
|||||
|
2023 |
45,500 |
21,269 |
2,339 |
0 |
2,339 |
122.82 |
$287 |
$327 |
|||||
|
2022 |
43,500 |
20,257 |
2,228 |
0 |
2,228 |
117.63 |
$262 |
$301 |
|||||
| Property Account Status/Adjustments/Exemptions | ||||||
|---|---|---|---|---|---|---|
| Account # | Exemption Description | Amount | ||||
| No adjustment/exemption records returned. | ||||||
| Property Deed Transaction History (Recorded in the County Clerk's Office) | ||||||||||
|---|---|---|---|---|---|---|---|---|---|---|
| Date | Type | Book | Page | Price | Grantor | Grantee | ||||
|
12/5/2025 |
|
Deeds |
$40,000 |
BEVAN PATRICIA |
TRACTION RENTALS LLC |
|||||
|
6/21/2012 |
|
Deeds |
$0 |
DIVORCE DECREE |
BEVAN PATRICIA |
|||||
|
4/28/2011 |
|
Deeds |
$9,000 |
FEDERAL NATIONAL MORTGAGE ASSOCIATION |
BEVAN PATRICIA |
|||||
|
11/16/2009 |
|
Hmstd Off & |
$0 |
JAMES WINSTON |
FEDERAL NATIONAL MORTGAGE ASSOCIATION |
|||||
|
8/11/2007 |
|
Hmstd Off & |
$0 |
JAMES PROPERTIES LLC |
JAMES WINSTON |
|||||
| Last Mailed Notice of Value (N.O.V.) Information/History | ||||||||
|---|---|---|---|---|---|---|---|---|
| Year | Date | Market Value | Taxable Market Value | Gross Assessed | Exemption | Net Assessed | ||
|
2026 |
02/23/2026 |
52,500 |
52,500 |
5,775 |
0 |
5,775 |
||
|
2025 |
02/14/2025 |
51,500 |
23,448 |
2,578 |
0 |
2,578 |
||
|
2024 |
02/13/2024 |
50,000 |
22,332 |
2,455 |
0 |
2,455 |
||
|
2023 |
02/14/2023 |
45,500 |
21,269 |
2,339 |
0 |
2,339 |
||
|
2022 |
03/15/2022 |
43,500 |
20,257 |
2,228 |
0 |
2,228 |
||
| Property Building Permit History | |||||||||||
|---|---|---|---|---|---|---|---|---|---|---|---|
| Issued | Permit # | Provided by | Bldg # | Description | Est Construction Cost | Status | |||||
| No Building Permit records returned. | |||||||||||
| Click button on building number to access detailed information: | ||||||
|---|---|---|---|---|---|---|
| Bldg # | Vacant/Improved Land | Bldg Description | Year Built | SqFt | # Stories | |
|
1 |
Improved |
Ranch 1 Story |
1951 |
600 |
1 Stories |
|