|
|
|
| Larry Stein Oklahoma County Assessor (405) 713-1200 - Public Access System |
|
|
|
|
|
|
| Real Property Display - Screen Produced 3/18/2026 11:51:12 AM | ||||
|---|---|---|---|---|
| Account: R020101925 | Type: Residential | Location: |
3016 NE 16TH ST |
|
| Building Name/Occupant: |
|
OKLAHOMA CITY |
||
| Owner Name 1: | BOYLAND MATTHEW JR & CLARA |
Parcel PIN#: |
2519-02-010-1925 |
|
| Owner Name 2: | 1/4 section #: |
2519 |
||
| Owner Name 3: | Parent Acct: |
|
||
| Billing Address: | 3016 NE 16TH ST | Tax District: |
|
|
| City, State, Zip | OKLAHOMA CITY, OK 73117-6006 | School System: |
Oklahoma City #89 |
|
|
Country: (If noted) |
Land Size: |
0.1768 Acres |
||
|
Land Value: 12,705 |
|
|||
|
Sect 30-T12N-R2W Qtr SW |
GARDEN OAKS
Block
007
Lot
012
|
|||
| Full Legal Description: GARDEN OAKS 007 012 |
| Photo & Sketch (if available) | Comp Sales (ordered by relevancy) |
|
||||||||||||||||||
|
||||||||||||||||||||
| Value History (*The County Treasurer 405-713-1300 posts & collects actual tax amounts. Contact information HERE) | |||||||||||||
|---|---|---|---|---|---|---|---|---|---|---|---|---|---|
| Year | Market Value | Taxable Mkt Value | Gross Assessed | Exemption | Net Assessed | Millage | Est. Tax | Tax Savings | |||||
|
2025 |
104,500 |
104,500 |
11,495 |
2,000 |
9,495 |
122.90 |
$1,167 |
$246 |
|||||
|
2024 |
87,500 |
87,500 |
9,625 |
0 |
9,625 |
123.89 |
$1,192 |
$0 |
|||||
|
2023 |
55,500 |
30,819 |
3,389 |
0 |
3,389 |
122.82 |
$416 |
$333 |
|||||
|
2022 |
46,500 |
29,352 |
3,227 |
0 |
3,227 |
117.63 |
$380 |
$222 |
|||||
|
2021 |
37,500 |
27,955 |
3,074 |
0 |
3,074 |
117.70 |
$362 |
$124 |
|||||
| Property Account Status/Adjustments/Exemptions | ||
|---|---|---|
| Account # | Exemption Description | Amount |
|
R020101925 |
3% Cap Homestead |
0 |
|
R020101925 |
Freeze Senior Valuation |
0 |
|
R020101925 |
Homestead |
1,000 |
|
R020101925 |
Senior Additional Homestead |
1,000 |
| Property Deed Transaction History (Recorded in the County Clerk's Office) | ||||||||||
|---|---|---|---|---|---|---|---|---|---|---|
| Date | Type | Book | Page | Price | Grantor | Grantee | ||||
|
1/26/2024 |
|
Deeds |
$130,000 |
DIAMOND HANDS HOLDINGS LLC |
BOYLAND MATTHEW JR & CLARA |
|||||
|
6/9/2023 |
|
Deeds |
$90,000 |
WINDHAM MICHELLE |
DIAMOND HANDS HOLDINGS LLC |
|||||
|
6/1/2012 |
|
Deeds |
$15,000 |
RAK PROPERTIES INC |
WINDHAM MICHELLE |
|||||
|
1/19/2012 |
|
Deeds |
$6,500 |
BROILES JAMES L JR & ETHEL B CO TRS BROILES JAMES L JR & ETH |
RAK PROPERTIES INC |
|||||
|
3/19/2010 |
|
Deeds |
$0 |
BROILES ETHEL B |
BROILES JAMES L JR & ETHEL B CO TRS BROILES JAMES L JR & ETH |
|||||
| Last Mailed Notice of Value (N.O.V.) Information/History | ||||||||
|---|---|---|---|---|---|---|---|---|
| Year | Date | Market Value | Taxable Market Value | Gross Assessed | Exemption | Net Assessed | ||
|
2026 |
02/23/2026 |
111,000 |
104,500 |
11,495 |
2,000 |
9,495 |
||
|
2025 |
02/14/2025 |
104,500 |
104,500 |
11,495 |
2,000 |
9,495 |
||
|
2024 |
02/13/2024 |
87,500 |
87,500 |
9,625 |
0 |
9,625 |
||
|
2023 |
02/14/2023 |
55,500 |
30,819 |
3,389 |
0 |
3,389 |
||
|
2022 |
03/15/2022 |
46,500 |
29,352 |
3,227 |
0 |
3,227 |
||
| Property Building Permit History | |||||||||||
|---|---|---|---|---|---|---|---|---|---|---|---|
| Issued | Permit # | Provided by | Bldg # | Description | Est Construction Cost | Status | |||||
| No Building Permit records returned. | |||||||||||
| Click button on building number to access detailed information: | ||||||
|---|---|---|---|---|---|---|
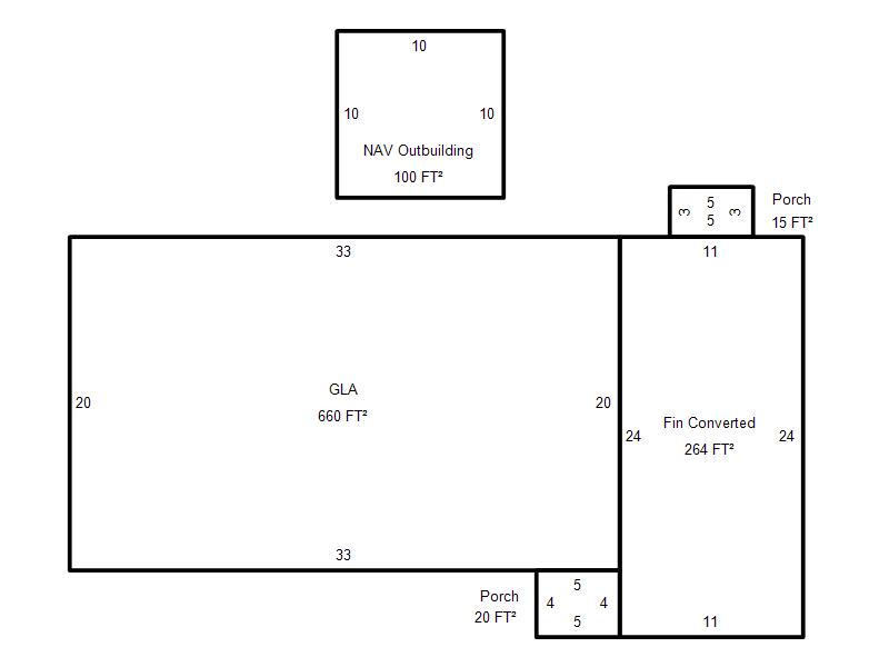
| Bldg # | Vacant/Improved Land | Bldg Description | Year Built | SqFt | # Stories | |
|
1 |
Improved |
Ranch 1 Story |
1953 |
660 |
1 Stories |
|