|
|
|
| Larry Stein Oklahoma County Assessor (405) 713-1200 - Public Access System |
|
|
|
|
|
|
| Real Property Display - Screen Produced 3/18/2026 4:49:41 PM | ||||
|---|---|---|---|---|
| Account: R020102345 | Type: Residential | Location: |
3121 NE 15TH ST |
|
| Building Name/Occupant: |
|
OKLAHOMA CITY |
||
| Owner Name 1: | 1776 PROPERTIES LLC |
Parcel PIN#: |
2519-02-010-2345 |
|
| Owner Name 2: | 1/4 section #: |
2519 |
||
| Owner Name 3: | Parent Acct: |
|
||
| Billing Address: | PO BOX 566 | Tax District: |
|
|
| City, State, Zip | PIEDMONT, OK 73078 | School System: |
Oklahoma City #89 |
|
|
Country: (If noted) |
Land Size: |
0.1452 Acres |
||
|
Land Value: 10,436 |
|
|||
|
Sect 30-T12N-R2W Qtr SW |
GARDEN OAKS
Block
008
Lot
022
|
|||
| Full Legal Description: GARDEN OAKS 008 022 |
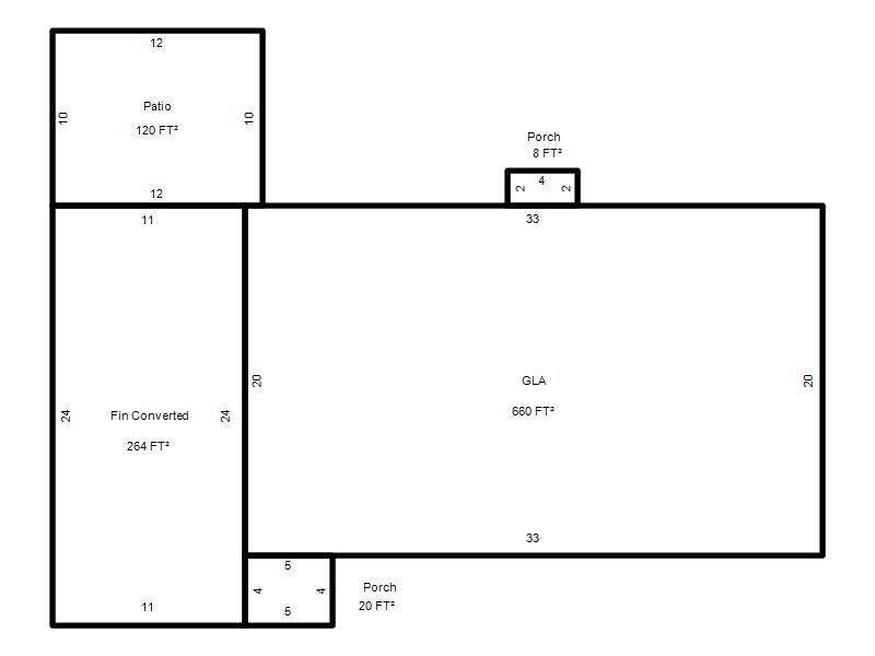
| Photo & Sketch (if available) | Comp Sales (ordered by relevancy) |
|
||||||||||||||||||
|
||||||||||||||||||||
| Value History (*The County Treasurer 405-713-1300 posts & collects actual tax amounts. Contact information HERE) | |||||||||||||
|---|---|---|---|---|---|---|---|---|---|---|---|---|---|
| Year | Market Value | Taxable Mkt Value | Gross Assessed | Exemption | Net Assessed | Millage | Est. Tax | Tax Savings | |||||
|
2025 |
60,500 |
54,600 |
6,006 |
0 |
6,006 |
122.90 |
$738 |
$80 |
|||||
|
2024 |
52,000 |
52,000 |
5,720 |
0 |
5,720 |
123.89 |
$709 |
$0 |
|||||
|
2023 |
52,500 |
52,500 |
5,775 |
0 |
5,775 |
122.82 |
$709 |
$0 |
|||||
|
2022 |
40,500 |
20,396 |
2,242 |
0 |
2,242 |
117.63 |
$264 |
$260 |
|||||
|
2021 |
33,000 |
19,425 |
2,136 |
0 |
2,136 |
117.70 |
$251 |
$176 |
|||||
| Property Account Status/Adjustments/Exemptions | ||
|---|---|---|
| Account # | Exemption Description | Amount |
|
R020102345 |
5% Capped Account |
0 |
| Property Deed Transaction History (Recorded in the County Clerk's Office) | ||||||||||
|---|---|---|---|---|---|---|---|---|---|---|
| Date | Type | Book | Page | Price | Grantor | Grantee | ||||
|
7/7/2022 |
|
Deeds |
$51,500 |
LANSFORD CLINTON |
1776 PROPERTIES LLC |
|||||
|
6/20/2018 |
|
Deeds |
$0 |
EDWARDS LOYCE N |
EDWARDS LOYCE N |
|||||
|
6/20/2018 |
|
Deeds |
$18,000 |
EDWARDS LOYCE N |
LANSFORD CLINTON |
|||||
|
2/24/2017 |
|
Deeds |
$0 |
EDWARDS ARCHIE L & LOYCE N |
EDWARDS LOYCE N |
|||||
|
2/24/2017 |
|
Deeds |
$0 |
EDWARDS LOYCE N |
EDWARDS LOYCE N |
|||||
| Last Mailed Notice of Value (N.O.V.) Information/History | ||||||||
|---|---|---|---|---|---|---|---|---|
| Year | Date | Market Value | Taxable Market Value | Gross Assessed | Exemption | Net Assessed | ||
|
2026 |
02/23/2026 |
62,000 |
57,330 |
6,306 |
0 |
6,306 |
||
|
2025 |
02/14/2025 |
60,500 |
54,600 |
6,006 |
0 |
6,006 |
||
|
2023 |
02/14/2023 |
52,500 |
52,500 |
5,775 |
0 |
5,775 |
||
|
2022 |
03/15/2022 |
40,500 |
20,396 |
2,242 |
0 |
2,242 |
||
|
2021 |
03/19/2021 |
33,000 |
19,425 |
2,136 |
0 |
2,136 |
||
| Property Building Permit History | |||||||||||
|---|---|---|---|---|---|---|---|---|---|---|---|
| Issued | Permit # | Provided by | Bldg # | Description | Est Construction Cost | Status | |||||
| No Building Permit records returned. | |||||||||||
| Click button on building number to access detailed information: | ||||||
|---|---|---|---|---|---|---|
| Bldg # | Vacant/Improved Land | Bldg Description | Year Built | SqFt | # Stories | |
|
1 |
Improved |
Ranch 1 Story |
1953 |
660 |
1 Stories |
|