|
|
|
| Larry Stein Oklahoma County Assessor (405) 713-1200 - Public Access System |
|
|
|
|
|
|
| Real Property Display - Screen Produced 3/18/2026 11:51:12 AM | ||||
|---|---|---|---|---|
| Account: R020103765 | Type: Residential | Location: |
3213 NE 14TH ST |
|
| Building Name/Occupant: |
|
OKLAHOMA CITY |
||
| Owner Name 1: | SFR3 050 LLC |
Parcel PIN#: |
2519-02-010-3765 |
|
| Owner Name 2: | 1/4 section #: |
2519 |
||
| Owner Name 3: | Parent Acct: |
|
||
| Billing Address: | 2261 MARKET ST, Unit 22263 | Tax District: |
|
|
| City, State, Zip | SAN FRANCISCO, CA 94114 | School System: |
Oklahoma City #89 |
|
|
Country: (If noted) |
UNITED STATES |
Land Size: |
0.1503 Acres |
|
|
Land Value: 10,799 |
|
|||
|
Sect 30-T12N-R2W Qtr SW |
GARDEN OAKS
Block
013
Lot
025
|
|||
| Full Legal Description: GARDEN OAKS 013 025 |
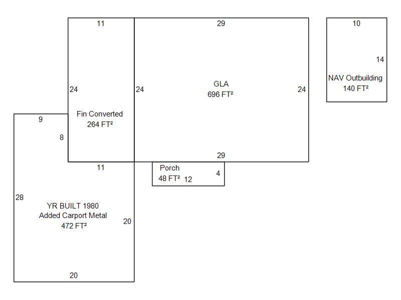
| Photo & Sketch (if available) | Comp Sales (ordered by relevancy) |
|
||||||||||||||||||
|
||||||||||||||||||||
| Value History (*The County Treasurer 405-713-1300 posts & collects actual tax amounts. Contact information HERE) | |||||||||||||
|---|---|---|---|---|---|---|---|---|---|---|---|---|---|
| Year | Market Value | Taxable Mkt Value | Gross Assessed | Exemption | Net Assessed | Millage | Est. Tax | Tax Savings | |||||
|
2025 |
66,000 |
56,227 |
6,184 |
0 |
6,184 |
122.90 |
$760 |
$132 |
|||||
|
2024 |
57,000 |
53,550 |
5,890 |
0 |
5,890 |
123.89 |
$730 |
$47 |
|||||
|
2023 |
51,000 |
51,000 |
5,610 |
0 |
5,610 |
122.82 |
$689 |
$0 |
|||||
|
2022 |
43,000 |
17,935 |
1,971 |
0 |
1,971 |
117.63 |
$232 |
$324 |
|||||
|
2021 |
34,000 |
17,081 |
1,878 |
0 |
1,878 |
117.70 |
$221 |
$219 |
|||||
| Property Account Status/Adjustments/Exemptions | ||
|---|---|---|
| Account # | Exemption Description | Amount |
|
R020103765 |
5% Capped Account |
0 |
| Property Deed Transaction History (Recorded in the County Clerk's Office) | |||||||
|---|---|---|---|---|---|---|---|
| Date | Type | Book | Page | Price | Grantor | Grantee | |
|
5/4/2022 |
|
Deeds |
$45,000 |
WATSON DESIREE Z |
OGLE PROPERTY SOLUTIONS LLC |
||
|
5/2/2022 |
|
Deeds |
$50,000 |
OGLE PROPERTY SOLUTIONS LLC |
SFR3 050 LLC |
||
|
3/11/2020 |
|
Deeds |
$0 |
BROWN NATHANIEL L & CLARA D |
BROWN CLARA D |
||
|
3/11/2020 |
|
Hmstd Off & |
$0 |
BROWN CLARA D |
WATSON DESIREE Z |
||
|
11/11/1911 |
|
Historical |
$0 |
|
BROWN NATHANIEL L & CLARA D |
||
| Last Mailed Notice of Value (N.O.V.) Information/History | ||||||||
|---|---|---|---|---|---|---|---|---|
| Year | Date | Market Value | Taxable Market Value | Gross Assessed | Exemption | Net Assessed | ||
|
2026 |
02/23/2026 |
66,000 |
59,038 |
6,493 |
0 |
6,493 |
||
|
2025 |
02/14/2025 |
66,000 |
56,227 |
6,184 |
0 |
6,184 |
||
|
2024 |
02/13/2024 |
57,000 |
53,550 |
5,890 |
0 |
5,890 |
||
|
2023 |
02/14/2023 |
51,000 |
51,000 |
5,610 |
0 |
5,610 |
||
|
2022 |
03/15/2022 |
43,000 |
17,935 |
1,971 |
0 |
1,971 |
||
| Property Building Permit History | |||||||||||
|---|---|---|---|---|---|---|---|---|---|---|---|
| Issued | Permit # | Provided by | Bldg # | Description | Est Construction Cost | Status | |||||
| No Building Permit records returned. | |||||||||||
| Click button on building number to access detailed information: | ||||||
|---|---|---|---|---|---|---|
| Bldg # | Vacant/Improved Land | Bldg Description | Year Built | SqFt | # Stories | |
|
1 |
Improved |
Ranch 1 Story |
1954 |
696 |
1 Stories |
|