|
|
|
| Larry Stein Oklahoma County Assessor (405) 713-1200 - Public Access System |
|
|
|
|
|
|
| Real Property Display - Screen Produced 3/21/2026 7:30:05 AM | ||||
|---|---|---|---|---|
| Account: R144152430 | Type: Residential | Location: |
12200 SE 44TH ST |
|
| Building Name/Occupant: |
|
OKLAHOMA CITY |
||
| Owner Name 1: | SPARKS RHONDA A |
Parcel PIN#: |
1284-14-415-2430 |
|
| Owner Name 2: | FETTERS NICOLE | 1/4 section #: |
1284 |
|
| Owner Name 3: | Parent Acct: |
|
||
| Billing Address: | 12200 SE 44TH ST | Tax District: |
|
|
| City, State, Zip | CHOCTAW, OK 73020-6142 | School System: |
Mid-Del #52 |
|
|
Country: (If noted) |
Land Size: |
5.7100 Acres |
||
|
Land Value: 133,062 |
|
|||
|
Sect 21-T11N-R1W Qtr NW |
UNPLTD PT SEC 21 11N 1W
Block
000
Lot
000
|
|||
| Full Legal Description: UNPLTD PT SEC 21 11N 1W 000 000 PT NW4 SEC 21 11N 1W BEG 946.50FT E NW/C NW4 TH E250FT S994.87FT W250FT N994.84FT TO BEG CONT 5.71ACRS MORE OR LESS AKATR 5 |
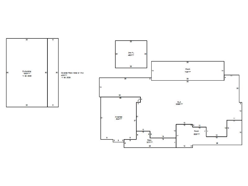
| Photo & Sketch (if available) | Comp Sales (ordered by relevancy) |
|
||||||||||||||||||
|
||||||||||||||||||||
| Value History (*The County Treasurer 405-713-1300 posts & collects actual tax amounts. Contact information HERE) | |||||||||||||
|---|---|---|---|---|---|---|---|---|---|---|---|---|---|
| Year | Market Value | Taxable Mkt Value | Gross Assessed | Exemption | Net Assessed | Millage | Est. Tax | Tax Savings | |||||
|
2025 |
729,000 |
729,000 |
80,190 |
0 |
80,190 |
126.46 |
$10,141 |
$0 |
|||||
|
2024 |
703,000 |
703,000 |
77,330 |
0 |
77,330 |
128.51 |
$9,938 |
$0 |
|||||
|
2023 |
714,000 |
714,000 |
78,540 |
0 |
78,540 |
122.94 |
$9,656 |
$0 |
|||||
|
2022 |
120,000 |
120,000 |
13,200 |
0 |
13,200 |
122.11 |
$1,612 |
$0 |
|||||
|
2021 |
120,000 |
120,000 |
13,200 |
0 |
13,200 |
124.74 |
$1,647 |
$0 |
|||||
| Property Account Status/Adjustments/Exemptions | ||
|---|---|---|
| Account # | Exemption Description | Amount |
|
R144152430 |
5% Capped Account |
0 |
| Property Deed Transaction History (Recorded in the County Clerk's Office) | ||||||||||
|---|---|---|---|---|---|---|---|---|---|---|
| Date | Type | Book | Page | Price | Grantor | Grantee | ||||
|
3/29/2024 |
|
Deeds |
$710,000 |
REED RANDY W & ANGELA M |
SPARKS RHONDA A |
|||||
|
4/6/2020 |
|
Deeds |
$120,000 |
WHO DAT LLC |
REED RANDY W & ANGELA M |
|||||
|
10/27/2019 |
|
Deeds |
$32,500 |
HOLMAN ECHO & GREGORY |
WHO DAT LLC |
|||||
|
10/25/2019 |
|
Deeds |
$32,500 |
LADEHOFF SYERRA |
WHO DAT LLC |
|||||
|
12/5/2018 |
|
Hmstd Off & |
$0 |
CASSIDY GERALD E |
HOLMAN ECHO |
|||||
| Last Mailed Notice of Value (N.O.V.) Information/History | ||||||||
|---|---|---|---|---|---|---|---|---|
| Year | Date | Market Value | Taxable Market Value | Gross Assessed | Exemption | Net Assessed | ||
|
2025 |
01/31/2025 |
729,000 |
729,000 |
80,190 |
0 |
80,190 |
||
|
2023 |
03/02/2023 |
714,000 |
714,000 |
78,540 |
0 |
78,540 |
||
|
2021 |
02/24/2021 |
120,000 |
120,000 |
13,200 |
0 |
13,200 |
||
|
2020 |
02/21/2020 |
68,115 |
68,115 |
7,492 |
0 |
7,492 |
||
|
2020 |
04/24/2020 |
68,115 |
68,115 |
7,492 |
0 |
7,492 |
||
| Property Building Permit History | ||||||
|---|---|---|---|---|---|---|
| Issued | Permit # | Provided by | Bldg # | Description | Est Construction Cost | Status |
|
9/15/2020 |
BLDR-2020-04093 |
|
|
Main Dwellin |
390,000 |
Inactive |
| Click button on building number to access detailed information: | ||||||
|---|---|---|---|---|---|---|
| Bldg # | Vacant/Improved Land | Bldg Description | Year Built | SqFt | # Stories | |
|
1 |
Improved |
1½ Story Fin |
2020 |
3,686 |
1.5 Stories |
|