|
|
|
| Larry Stein Oklahoma County Assessor (405) 713-1200 - Public Access System |
|
|
|
|
|
|
| Real Property Display - Screen Produced 3/18/2026 4:48:13 PM | ||||
|---|---|---|---|---|
| Account: R020104475 | Type: Residential | Location: |
3121 NE 13TH ST |
|
| Building Name/Occupant: |
|
OKLAHOMA CITY |
||
| Owner Name 1: | EQUITY INTERNATIONAL LLC |
Parcel PIN#: |
2519-02-010-4475 |
|
| Owner Name 2: | 1/4 section #: |
2519 |
||
| Owner Name 3: | Parent Acct: |
|
||
| Billing Address: | 3121 NE 13TH ST | Tax District: |
|
|
| City, State, Zip | OKLAHOMA CITY, OK 73117-6266 | School System: |
Oklahoma City #89 |
|
|
Country: (If noted) |
Land Size: |
0.1448 Acres |
||
|
Land Value: 10,407 |
|
|||
|
Sect 30-T12N-R2W Qtr SW |
GARDEN OAKS
Block
016
Lot
018
|
|||
| Full Legal Description: GARDEN OAKS 016 018 |
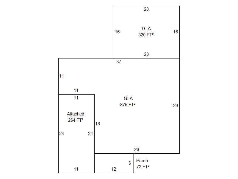
| Photo & Sketch (if available) | Comp Sales (ordered by relevancy) |
|
||||||||||||||||||
|
||||||||||||||||||||
| Value History (*The County Treasurer 405-713-1300 posts & collects actual tax amounts. Contact information HERE) | |||||||||||||
|---|---|---|---|---|---|---|---|---|---|---|---|---|---|
| Year | Market Value | Taxable Mkt Value | Gross Assessed | Exemption | Net Assessed | Millage | Est. Tax | Tax Savings | |||||
|
2025 |
94,000 |
94,000 |
10,340 |
0 |
10,340 |
122.90 |
$1,271 |
$0 |
|||||
|
2024 |
81,000 |
36,179 |
3,979 |
0 |
3,979 |
123.89 |
$493 |
$611 |
|||||
|
2023 |
73,500 |
34,457 |
3,789 |
0 |
3,789 |
122.82 |
$466 |
$527 |
|||||
|
2022 |
61,500 |
32,817 |
3,608 |
0 |
3,608 |
117.63 |
$425 |
$371 |
|||||
|
2021 |
50,000 |
31,255 |
3,437 |
0 |
3,437 |
117.70 |
$405 |
$243 |
|||||
| Property Account Status/Adjustments/Exemptions | ||
|---|---|---|
| Account # | Exemption Description | Amount |
|
R020104475 |
5% Capped Account |
0 |
| Property Deed Transaction History (Recorded in the County Clerk's Office) | |||||||
|---|---|---|---|---|---|---|---|
| Date | Type | Book | Page | Price | Grantor | Grantee | |
|
7/3/2024 |
|
Deeds |
$87,000 |
ONEBODY PROPERTIES LLC |
EQUITY INTERNATIONAL LLC |
||
|
5/24/2016 |
|
Deeds |
$26,000 |
VAN INVESTMENTS LLC |
ONEBODY PROPERTIES LLC |
||
|
5/5/2014 |
|
Deeds |
$23,000 |
TEC PROPERTIES LLC |
VAN INVESTMENTS LLC |
||
|
2/27/2007 |
|
Deeds |
$23,000 |
DEAN A J & MARZEE |
TEC PROPERTIES LLC |
||
|
11/11/1911 |
|
Historical |
$0 |
|
DEAN A J & MARZEE |
||
| Last Mailed Notice of Value (N.O.V.) Information/History | ||||||||
|---|---|---|---|---|---|---|---|---|
| Year | Date | Market Value | Taxable Market Value | Gross Assessed | Exemption | Net Assessed | ||
|
2025 |
02/14/2025 |
94,000 |
94,000 |
10,340 |
0 |
10,340 |
||
|
2024 |
02/13/2024 |
81,000 |
36,179 |
3,979 |
0 |
3,979 |
||
|
2023 |
02/14/2023 |
73,500 |
34,457 |
3,789 |
0 |
3,789 |
||
|
2022 |
03/15/2022 |
61,500 |
32,817 |
3,608 |
0 |
3,608 |
||
|
2021 |
03/19/2021 |
50,000 |
31,255 |
3,438 |
0 |
3,438 |
||
| Property Building Permit History | |||||||||||
|---|---|---|---|---|---|---|---|---|---|---|---|
| Issued | Permit # | Provided by | Bldg # | Description | Est Construction Cost | Status | |||||
| No Building Permit records returned. | |||||||||||
| Click button on building number to access detailed information: | ||||||
|---|---|---|---|---|---|---|
| Bldg # | Vacant/Improved Land | Bldg Description | Year Built | SqFt | # Stories | |
|
1 |
Improved |
Ranch 1 Story |
1954 |
1,195 |
1 Stories |
|