|
|
|
| Larry Stein Oklahoma County Assessor (405) 713-1200 - Public Access System |
|
|
|
|
|
|
| Real Property Display - Screen Produced 3/12/2026 11:22:35 AM | ||||
|---|---|---|---|---|
| Account: R168522530 | Type: Residential | Location: |
4801 S HENNEY RD |
|
| Building Name/Occupant: |
|
OKLAHOMA CITY |
||
| Owner Name 1: | REALE STEVEN |
Parcel PIN#: |
1285-16-852-2530 |
|
| Owner Name 2: | 1/4 section #: |
1285 |
||
| Owner Name 3: | Parent Acct: |
1285-16-852-2500 |
||
| Billing Address: | 4801 S HENNEY RD | Tax District: |
|
|
| City, State, Zip | CHOCTAW, OK 73020 | School System: |
Choctaw #4 |
|
|
Country: (If noted) |
UNITED STATES |
Land Size: |
5.0000 Acres |
|
|
Land Value: 67,000 |
|
|||
|
Sect 22-T11N-R1W Qtr NE |
CASS TOWNSHIP
Block
000
Lot
000
|
|||
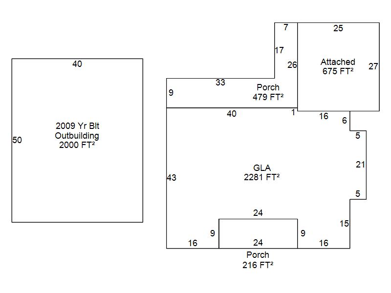
| Full Legal Description: CASS TOWNSHIP 000 000 PT OF NE4 SEC 22 11N 1W BEG 1097.03FT S OF NE/C NE4 TH S219.35FT W993FT N219.35FT E993FT TO BEG CONT 5ACRS MORE OR LESS |
| Photo & Sketch (if available) | Comp Sales (ordered by relevancy) |
|
||||||||||||||||||
|
||||||||||||||||||||
| Value History (*The County Treasurer 405-713-1300 posts & collects actual tax amounts. Contact information HERE) | |||||||||||||
|---|---|---|---|---|---|---|---|---|---|---|---|---|---|
| Year | Market Value | Taxable Mkt Value | Gross Assessed | Exemption | Net Assessed | Millage | Est. Tax | Tax Savings | |||||
|
2025 |
492,500 |
492,500 |
54,175 |
0 |
54,175 |
132.37 |
$7,171 |
$0 |
|||||
|
2024 |
496,500 |
496,500 |
54,615 |
0 |
54,615 |
131.28 |
$7,170 |
$0 |
|||||
|
2023 |
456,500 |
335,466 |
36,900 |
1,000 |
35,900 |
131.88 |
$4,735 |
$1,888 |
|||||
|
2022 |
393,500 |
325,696 |
35,826 |
1,000 |
34,826 |
130.63 |
$4,549 |
$1,105 |
|||||
|
2021 |
344,500 |
316,210 |
34,783 |
1,000 |
33,783 |
129.79 |
$4,385 |
$534 |
|||||
| Property Account Status/Adjustments/Exemptions | ||
|---|---|---|
| Account # | Exemption Description | Amount |
|
R168522530 |
Homestead |
1,000 |
|
R168522530 |
3% Cap Homestead |
0 |
| Property Deed Transaction History (Recorded in the County Clerk's Office) | ||||||||||
|---|---|---|---|---|---|---|---|---|---|---|
| Date | Type | Book | Page | Price | Grantor | Grantee | ||||
|
10/27/2023 |
|
Deeds |
$482,000 |
ALLEN GREGORY P & KATHY R |
REALE STEVEN |
|||||
|
4/29/2013 |
|
Deeds |
$305,500 |
TAYLOR ROBERT T & CRYSTAL |
ALLEN GREGORY P & KATHY R |
|||||
|
9/28/2007 |
|
Deeds |
$241,000 |
LACHANCE QUALITY HOMES LLC |
TAYLOR ROBERT T & CRYSTAL |
|||||
|
3/16/2007 |
|
Hmstd Off & |
$0 |
TAYLOR ROBERT T & CRYSTAL |
LACHANCE QUALITY HOMES LLC |
|||||
|
4/7/2006 |
|
Deeds |
$49,500 |
CLABES BRANDON & SANDRA |
TAYLOR ROBERT T & CRYSTAL |
|||||
| Last Mailed Notice of Value (N.O.V.) Information/History | ||||||||
|---|---|---|---|---|---|---|---|---|
| Year | Date | Market Value | Taxable Market Value | Gross Assessed | Exemption | Net Assessed | ||
|
2024 |
01/22/2024 |
496,500 |
496,500 |
54,615 |
0 |
54,615 |
||
|
2023 |
01/23/2023 |
456,500 |
335,466 |
36,900 |
1,000 |
35,900 |
||
|
2022 |
02/22/2022 |
393,500 |
325,696 |
35,826 |
1,000 |
34,826 |
||
|
2021 |
02/24/2021 |
344,500 |
316,210 |
34,783 |
1,000 |
33,783 |
||
|
2020 |
02/21/2020 |
307,000 |
307,000 |
33,770 |
1,000 |
32,770 |
||
| Property Building Permit History | ||||||
|---|---|---|---|---|---|---|
| Issued | Permit # | Provided by | Bldg # | Description | Est Construction Cost | Status |
|
6/24/2009 |
10383963 |
OKLAHOMA CITY |
1 |
Storage Buil |
25,000 |
Inactive |
|
3/27/2007 |
10335268 |
OKLAHOMA CITY |
1 |
Main Dwellin |
200,000 |
Inactive |
| Click button on building number to access detailed information: | ||||||
|---|---|---|---|---|---|---|
| Bldg # | Vacant/Improved Land | Bldg Description | Year Built | SqFt | # Stories | |
|
1 |
Improved |
Ranch 1 Story |
2007 |
2,281 |
1 Stories |
|