|
|
|
| Larry Stein Oklahoma County Assessor (405) 713-1200 - Public Access System |
|
|
|
|
|
|
| Real Property Display - Screen Produced 3/18/2026 6:53:45 AM | ||||
|---|---|---|---|---|
| Account: R131635375 | Type: Residential | Location: |
3057 NE 16TH ST |
|
| Building Name/Occupant: |
|
OKLAHOMA CITY |
||
| Owner Name 1: | 59TH STREET LLC |
Parcel PIN#: |
2520-13-163-5375 |
|
| Owner Name 2: | 1/4 section #: |
2520 |
||
| Owner Name 3: | Parent Acct: |
|
||
| Billing Address: | 1302 WAUGH DR, Unit 831 | Tax District: |
|
|
| City, State, Zip | HOUSTON, TX 77019 | School System: |
Oklahoma City #89 |
|
|
Country: (If noted) |
Land Size: |
0.1722 Acres |
||
|
Land Value: 11,250 |
|
|||
|
Sect 30-T12N-R2W Qtr NW |
DYKINS HEIGHTS ADDITION
Block
008
Lot
000
|
|||
| Full Legal Description: DYKINS HEIGHTS ADDITION 008 000 LOTS 35 & 36 |
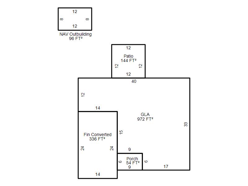
| Photo & Sketch (if available) | Comp Sales (ordered by relevancy) |
|
||||||||||||||||||
|
||||||||||||||||||||
| Value History (*The County Treasurer 405-713-1300 posts & collects actual tax amounts. Contact information HERE) | |||||||||||||
|---|---|---|---|---|---|---|---|---|---|---|---|---|---|
| Year | Market Value | Taxable Mkt Value | Gross Assessed | Exemption | Net Assessed | Millage | Est. Tax | Tax Savings | |||||
|
2025 |
117,000 |
94,815 |
10,429 |
0 |
10,429 |
122.90 |
$1,282 |
$300 |
|||||
|
2024 |
110,000 |
90,300 |
9,933 |
0 |
9,933 |
123.89 |
$1,231 |
$268 |
|||||
|
2023 |
86,000 |
86,000 |
9,460 |
0 |
9,460 |
122.82 |
$1,162 |
$0 |
|||||
|
2022 |
74,000 |
59,535 |
6,548 |
0 |
6,548 |
117.63 |
$770 |
$187 |
|||||
|
2021 |
58,500 |
56,700 |
6,237 |
0 |
6,237 |
117.70 |
$734 |
$23 |
|||||
| Property Account Status/Adjustments/Exemptions | ||
|---|---|---|
| Account # | Exemption Description | Amount |
|
R131635375 |
5% Capped Account |
0 |
| Property Deed Transaction History (Recorded in the County Clerk's Office) | ||||||||||
|---|---|---|---|---|---|---|---|---|---|---|
| Date | Type | Book | Page | Price | Grantor | Grantee | ||||
|
2/4/2022 |
|
Deeds |
$85,000 |
TRACTION RENTALS LLC |
59TH STREET LLC |
|||||
|
6/5/2019 |
|
Deeds |
$14,000 |
CHANDLER CARSON SUCCESSOR TRS |
TRACTION RENTALS LLC |
|||||
|
8/17/2010 |
|
Deeds |
$0 |
CHANDLER CLEO TRS CHANDLER REV LIVING TRUST |
CHANDLER CARSON SUCCESSOR TRS |
|||||
|
8/23/1997 |
|
Deeds |
$0 |
CHANDLER CLEO |
CHANDLER CLEO TRS |
|||||
|
4/15/1992 |
|
Historical |
$0 |
CHANDLER CLEO |
CHANDLER CLEO TRS |
|||||
| Last Mailed Notice of Value (N.O.V.) Information/History | ||||||||
|---|---|---|---|---|---|---|---|---|
| Year | Date | Market Value | Taxable Market Value | Gross Assessed | Exemption | Net Assessed | ||
|
2026 |
02/23/2026 |
117,500 |
99,555 |
10,950 |
0 |
10,950 |
||
|
2025 |
02/14/2025 |
117,000 |
94,815 |
10,429 |
0 |
10,429 |
||
|
2024 |
02/13/2024 |
110,000 |
90,300 |
9,933 |
0 |
9,933 |
||
|
2023 |
02/14/2023 |
86,000 |
86,000 |
9,460 |
0 |
9,460 |
||
|
2022 |
03/15/2022 |
74,000 |
59,535 |
6,548 |
0 |
6,548 |
||
| Property Building Permit History | |||||||||||
|---|---|---|---|---|---|---|---|---|---|---|---|
| Issued | Permit # | Provided by | Bldg # | Description | Est Construction Cost | Status | |||||
| No Building Permit records returned. | |||||||||||
| Click button on building number to access detailed information: | ||||||
|---|---|---|---|---|---|---|
| Bldg # | Vacant/Improved Land | Bldg Description | Year Built | SqFt | # Stories | |
|
1 |
Improved |
Ranch 1 Story |
1971 |
972 |
1 Stories |
|