|
|
|
| Larry Stein Oklahoma County Assessor (405) 713-1200 - Public Access System |
|
|
|
|
|
|
| Real Property Display - Screen Produced 3/12/2026 9:47:38 AM | ||||
|---|---|---|---|---|
| Account: R144186120 | Type: Residential | Location: |
5701 PATE DR |
|
| Building Name/Occupant: |
|
OKLAHOMA CITY |
||
| Owner Name 1: | TOBTAEN SUWAN |
Parcel PIN#: |
1290-14-418-6120 |
|
| Owner Name 2: | TOBTAEN WIJITTRA | 1/4 section #: |
1290 |
|
| Owner Name 3: | Parent Acct: |
|
||
| Billing Address: | 4367 SAIL WINDS CT NW | Tax District: |
|
|
| City, State, Zip | ACWORTH, GA 30101 | School System: |
Choctaw #4 |
|
|
Country: (If noted) |
UNITED STATES |
Land Size: |
5.0100 Acres |
|
|
Land Value: 95,958 |
|
|||
|
Sect 23-T11N-R1W Qtr SE |
UNPLTD PT SEC 23 11N 1W
Block
000
Lot
000
|
|||
| Full Legal Description: UNPLTD PT SE4 SEC 23 11N 1W BEG 1051.68FT E & 831FT N & 394.13FT W OF SW/C W 1/2 SE4 TH W656.89FT N332.62FT E656.73FT S332.62FT TO BEG CONT 5.02ACRS MORE OR LESS AKA LOT 15 MILBERT RANCHETTES UNREC |
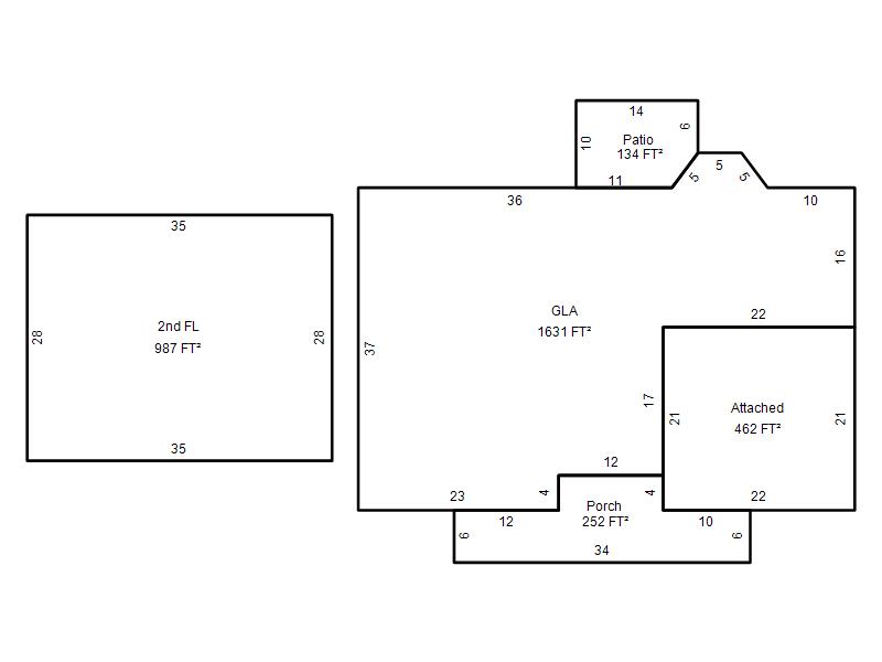
| Photo & Sketch (if available) | Comp Sales (ordered by relevancy) |
|
||||||||||||||||||
|
||||||||||||||||||||
| Value History (*The County Treasurer 405-713-1300 posts & collects actual tax amounts. Contact information HERE) | |||||||||||||
|---|---|---|---|---|---|---|---|---|---|---|---|---|---|
| Year | Market Value | Taxable Mkt Value | Gross Assessed | Exemption | Net Assessed | Millage | Est. Tax | Tax Savings | |||||
|
2025 |
424,500 |
424,500 |
46,695 |
0 |
46,695 |
132.37 |
$6,181 |
$0 |
|||||
|
2024 |
425,500 |
418,950 |
46,084 |
0 |
46,084 |
131.28 |
$6,050 |
$95 |
|||||
|
2023 |
399,000 |
399,000 |
43,890 |
0 |
43,890 |
131.88 |
$5,788 |
$0 |
|||||
|
2022 |
345,000 |
290,156 |
31,916 |
1,000 |
30,916 |
130.63 |
$4,039 |
$919 |
|||||
|
2021 |
300,500 |
281,705 |
30,987 |
1,000 |
29,987 |
129.79 |
$3,892 |
$398 |
|||||
| Property Account Status/Adjustments/Exemptions | ||
|---|---|---|
| Account # | Exemption Description | Amount |
|
R144186120 |
5% Capped Account |
0 |
| Property Deed Transaction History (Recorded in the County Clerk's Office) | ||||||||||
|---|---|---|---|---|---|---|---|---|---|---|
| Date | Type | Book | Page | Price | Grantor | Grantee | ||||
|
5/31/2022 |
|
Deeds |
$368,500 |
DAVENPORT ISAAC & ANDREA |
TOBTAEN SUWAN |
|||||
|
1/13/2016 |
|
Deeds |
$200,000 |
FEDERAL HOME LOAN MORTGAGE CORPORATION |
DAVENPORT ISAAC & ANDREA |
|||||
|
1/13/2015 |
|
Other |
$0 |
ROY RANDY M & RUTH ANN |
FEDERAL HOME LOAN MORTGAGE CORPORATION |
|||||
|
3/1/1991 |
|
Historical |
$0 |
STOREY DAVID W & DEBORAH S |
ROY RANDY M & RUTH ANN |
|||||
|
2/1/1988 |
|
Historical |
$0 |
BUCHANAN TERRY R |
STOREY DAVID W & DEBORAH S |
|||||
| Last Mailed Notice of Value (N.O.V.) Information/History | ||||||||
|---|---|---|---|---|---|---|---|---|
| Year | Date | Market Value | Taxable Market Value | Gross Assessed | Exemption | Net Assessed | ||
|
2025 |
01/31/2025 |
424,500 |
424,500 |
46,695 |
0 |
46,695 |
||
|
2024 |
01/22/2024 |
425,500 |
418,950 |
46,084 |
0 |
46,084 |
||
|
2023 |
01/23/2023 |
399,000 |
399,000 |
43,890 |
0 |
43,890 |
||
|
2022 |
02/22/2022 |
345,000 |
290,156 |
31,916 |
1,000 |
30,916 |
||
|
2021 |
02/24/2021 |
300,500 |
281,705 |
30,987 |
1,000 |
29,987 |
||
| Property Building Permit History | ||||||
|---|---|---|---|---|---|---|
| Issued | Permit # | Provided by | Bldg # | Description | Est Construction Cost | Status |
|
3/6/2019 |
|
|
1 |
Storage Buil |
5,250 |
Inactive |
| Click button on building number to access detailed information: | ||||||
|---|---|---|---|---|---|---|
| Bldg # | Vacant/Improved Land | Bldg Description | Year Built | SqFt | # Stories | |
|
1 |
Improved |
1½ Story Fin |
1997 |
2,618 |
1.5 Stories |
|