|
|
|
| Larry Stein Oklahoma County Assessor (405) 713-1200 - Public Access System |
|
|
|
|
|
|
| Real Property Display - Screen Produced 4/9/2026 7:55:43 AM | ||||
|---|---|---|---|---|
| Account: R150232140 | Type: Residential | Location: |
1220 SUNVALLEY DR |
|
| Building Name/Occupant: |
|
MIDWEST CITY |
||
| Owner Name 1: | EVERSOLE DANNY |
Parcel PIN#: |
2531-15-023-2140 |
|
| Owner Name 2: | EVERSOLE RONDA | 1/4 section #: |
2531 |
|
| Owner Name 3: | Parent Acct: |
|
||
| Billing Address: | 1220 SUNVALLEY DR | Tax District: |
|
|
| City, State, Zip | MIDWEST CITY, OK 73110 | School System: |
Mid-Del #52 |
|
|
Country: (If noted) |
Land Size: |
0.1653 Acres |
||
|
Land Value: 25,200 |
|
|||
|
Sect 33-T12N-R2W Qtr SW |
MEADOWOOD
Block
007
Lot
033
|
|||
| Full Legal Description: MEADOWOOD BLK 007 LOT 033 |
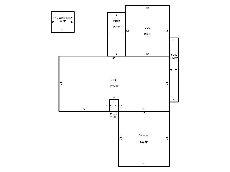
| Photo & Sketch (if available) | Comp Sales (ordered by relevancy) |
|
||||||||||||||||||
|
||||||||||||||||||||
| Value History (*The County Treasurer 405-713-1300 posts & collects actual tax amounts. Contact information HERE) | |||||||||||||
|---|---|---|---|---|---|---|---|---|---|---|---|---|---|
| Year | Market Value | Taxable Mkt Value | Gross Assessed | Exemption | Net Assessed | Millage | Est. Tax | Tax Savings | |||||
|
2026 |
190,500 |
190,500 |
20,955 |
1,000 |
19,955 |
119.58 |
$2,386 |
$120 |
|||||
|
2025 |
196,500 |
195,736 |
21,530 |
1,000 |
20,530 |
119.58 |
$2,455 |
$130 |
|||||
|
2024 |
193,000 |
190,035 |
20,903 |
1,000 |
19,903 |
122.51 |
$2,438 |
$162 |
|||||
|
2023 |
184,500 |
184,500 |
20,295 |
1,000 |
19,295 |
117.71 |
$2,271 |
$118 |
|||||
|
2022 |
165,500 |
98,764 |
10,864 |
1,000 |
9,864 |
116.64 |
$1,151 |
$973 |
|||||
| Property Account Status/Adjustments/Exemptions | ||
|---|---|---|
| Account # | Exemption Description | Amount |
|
R150232140 |
3% Cap Homestead |
0 |
|
R150232140 |
Homestead |
1,000 |
| Property Deed Transaction History (Recorded in the County Clerk's Office) | |||||||
|---|---|---|---|---|---|---|---|
| Date | Type | Book | Page | Price | Grantor | Grantee | |
|
5/6/2022 |
|
Deeds |
$173,000 |
HUNT JANET CASE |
EVERSOLE DANNY |
||
|
4/1/2022 |
|
Deeds |
$0 |
HUNT JAMES A & H JANET |
HUNT JANET CASE |
||
|
1/1/1979 |
|
Historical |
$0 |
|
HUNT JAMES A & H JANET |
||
| Last Mailed Notice of Value (N.O.V.) Information/History | ||||||||
|---|---|---|---|---|---|---|---|---|
| Year | Date | Market Value | Taxable Market Value | Gross Assessed | Exemption | Net Assessed | ||
|
2025 |
02/14/2025 |
196,500 |
195,736 |
21,530 |
1,000 |
20,530 |
||
|
2024 |
02/13/2024 |
193,000 |
190,035 |
20,903 |
1,000 |
19,903 |
||
|
2023 |
02/14/2023 |
184,500 |
184,500 |
20,295 |
1,000 |
19,295 |
||
|
2022 |
03/15/2022 |
146,500 |
98,764 |
10,864 |
1,000 |
9,864 |
||
|
2022 |
04/05/2022 |
165,500 |
98,764 |
10,864 |
1,000 |
9,864 |
||
| Property Building Permit History | |||||||||||
|---|---|---|---|---|---|---|---|---|---|---|---|
| Issued | Permit # | Provided by | Bldg # | Description | Est Construction Cost | Status | |||||
| No Building Permit records returned. | |||||||||||
| Click button on building number to access detailed information: | ||||||
|---|---|---|---|---|---|---|
| Bldg # | Vacant/Improved Land | Bldg Description | Year Built | SqFt | # Stories | |
|
1 |
Improved |
Ranch 1 Story |
1961 |
1,550 |
1 Stories |
|