|
|
|
| Larry Stein Oklahoma County Assessor (405) 713-1200 - Public Access System |
|
|
|
|
|
|
| Real Property Display - Screen Produced 4/4/2026 12:22:09 AM | ||||
|---|---|---|---|---|
| Account: R156458095 | Type: Residential | Location: |
1332 SAINT MATHEWS DR |
|
| Building Name/Occupant: |
|
MIDWEST CITY |
||
| Owner Name 1: | HAYWORTH SHIRLEY |
Parcel PIN#: |
2531-15-645-8095 |
|
| Owner Name 2: | 1/4 section #: |
2531 |
||
| Owner Name 3: | Parent Acct: |
|
||
| Billing Address: | 1332 SAINT MATHEWS DR | Tax District: |
|
|
| City, State, Zip | MIDWEST CITY, OK 73110-1414 | School System: |
Mid-Del #52 |
|
|
Country: (If noted) |
Land Size: |
0.1723 Acres |
||
|
Land Value: 35,269 |
|
|||
|
Sect 33-T12N-R2W Qtr SW |
UNPLTD PT SEC 33 12N 2W
Block
000
Lot
000
|
|||
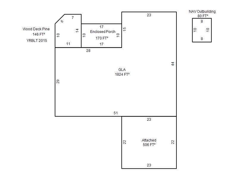
| Full Legal Description: UNPLTD PT SW4 SEC 33 12N 2W BEG SW/C OF LOT 12 BLK 6 MEADOWOOD 4TH ADD W80.34FT N91FT NE35.25FT E56FT S116FT TO BEG |
| Photo & Sketch (if available) | Comp Sales (ordered by relevancy) |
|
||||||||||||||||||
|
||||||||||||||||||||
| Value History (*The County Treasurer 405-713-1300 posts & collects actual tax amounts. Contact information HERE) | |||||||||||||
|---|---|---|---|---|---|---|---|---|---|---|---|---|---|
| Year | Market Value | Taxable Mkt Value | Gross Assessed | Exemption | Net Assessed | Millage | Est. Tax | Tax Savings | |||||
|
2026 |
223,000 |
223,000 |
24,530 |
0 |
24,530 |
119.58 |
$2,933 |
$0 |
|||||
|
2025 |
231,500 |
193,872 |
21,325 |
0 |
21,325 |
119.58 |
$2,550 |
$495 |
|||||
|
2024 |
230,500 |
184,640 |
20,310 |
0 |
20,310 |
122.51 |
$2,488 |
$618 |
|||||
|
2023 |
218,500 |
175,848 |
19,343 |
0 |
19,343 |
117.71 |
$2,277 |
$552 |
|||||
|
2022 |
190,000 |
167,475 |
18,422 |
0 |
18,422 |
116.64 |
$2,149 |
$289 |
|||||
| Property Account Status/Adjustments/Exemptions | ||||||
|---|---|---|---|---|---|---|
| Account # | Exemption Description | Amount | ||||
| No adjustment/exemption records returned. | ||||||
| Property Deed Transaction History (Recorded in the County Clerk's Office) | ||||||||||
|---|---|---|---|---|---|---|---|---|---|---|
| Date | Type | Book | Page | Price | Grantor | Grantee | ||||
|
5/2/2025 |
|
Deeds |
$216,500 |
ASBERRY JONIE RAY |
HAYWORTH SHIRLEY |
|||||
|
6/15/2020 |
|
Deeds |
$162,500 |
BAKER ANDREA M |
ASBERRY JOHNIE RAY |
|||||
|
8/31/2012 |
|
Deeds |
$118,000 |
MISCHKE CAROLYN H TRS MISCHKE CAROLYN H LIVING TRUST |
BAKER ANDREA M |
|||||
|
12/21/2005 |
|
Deeds |
$0 |
MISCHKE CAROLYN H MISCHKE AUDREY |
MISCHKE CAROLYN H TRS MISCHKE CAROLYN H LIVING TRUST |
|||||
|
1/11/1993 |
|
Historical |
$43,333 |
MEDFORD MYRTLE MAE |
MISCHKE CAROLYN H |
|||||
| Last Mailed Notice of Value (N.O.V.) Information/History | ||||||||
|---|---|---|---|---|---|---|---|---|
| Year | Date | Market Value | Taxable Market Value | Gross Assessed | Exemption | Net Assessed | ||
|
2026 |
02/23/2026 |
223,000 |
223,000 |
24,530 |
0 |
24,530 |
||
|
2025 |
02/14/2025 |
231,500 |
193,872 |
21,325 |
0 |
21,325 |
||
|
2024 |
02/13/2024 |
230,500 |
184,640 |
20,310 |
0 |
20,310 |
||
|
2023 |
02/14/2023 |
218,500 |
175,848 |
19,343 |
0 |
19,343 |
||
|
2022 |
03/15/2022 |
190,000 |
167,475 |
18,422 |
0 |
18,422 |
||
| Property Building Permit History | |||||||||||
|---|---|---|---|---|---|---|---|---|---|---|---|
| Issued | Permit # | Provided by | Bldg # | Description | Est Construction Cost | Status | |||||
| No Building Permit records returned. | |||||||||||
| Click button on building number to access detailed information: | ||||||
|---|---|---|---|---|---|---|
| Bldg # | Vacant/Improved Land | Bldg Description | Year Built | SqFt | # Stories | |
|
1 |
Improved |
Ranch 1 Story |
1978 |
1,824 |
1 Stories |
|