|
|
|
| Larry Stein Oklahoma County Assessor (405) 713-1200 - Public Access System |
|
|
|
|
|
|
| Real Property Display - Screen Produced 3/31/2026 10:33:15 PM | ||||
|---|---|---|---|---|
| Account: R155451535 | Type: Residential | Location: |
3513 PARKWOODS LN |
|
| Building Name/Occupant: |
|
MIDWEST CITY |
||
| Owner Name 1: | BROWN TYRONE & CLAIRE |
Parcel PIN#: |
2537-15-545-1535 |
|
| Owner Name 2: | 1/4 section #: |
2537 |
||
| Owner Name 3: | Parent Acct: |
|
||
| Billing Address: | 3513 PARKWOODS LN | Tax District: |
|
|
| City, State, Zip | MIDWEST CITY, OK 73110-7429 | School System: |
Oklahoma City #89 |
|
|
Country: (If noted) |
Land Size: |
0.1680 Acres |
||
|
Land Value: 15,152 |
|
|||
|
Sect 35-T12N-R2W Qtr NE |
PARKWOODS
Block
004
Lot
023
|
|||
| Full Legal Description: PARKWOODS 004 023 |
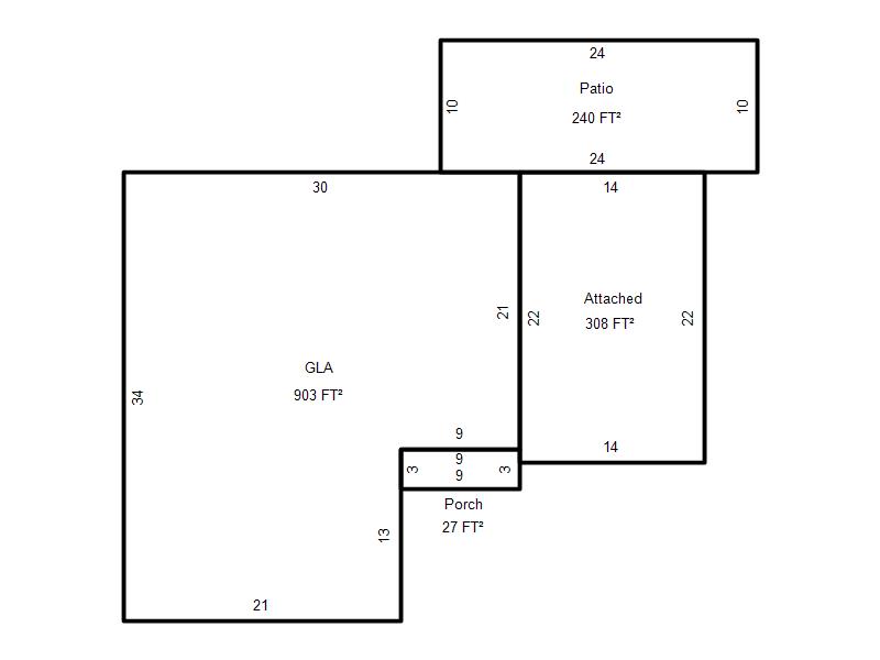
| Photo & Sketch (if available) | Comp Sales (ordered by relevancy) |
|
||||||||||||||||||
|
||||||||||||||||||||
| Value History (*The County Treasurer 405-713-1300 posts & collects actual tax amounts. Contact information HERE) | |||||||||||||
|---|---|---|---|---|---|---|---|---|---|---|---|---|---|
| Year | Market Value | Taxable Mkt Value | Gross Assessed | Exemption | Net Assessed | Millage | Est. Tax | Tax Savings | |||||
|
2026 |
129,000 |
129,000 |
14,190 |
0 |
14,190 |
114.34 |
$1,622 |
$0 |
|||||
|
2025 |
125,500 |
125,500 |
13,805 |
0 |
13,805 |
114.34 |
$1,578 |
$0 |
|||||
|
2024 |
91,500 |
60,490 |
6,653 |
0 |
6,653 |
116.11 |
$773 |
$396 |
|||||
|
2023 |
82,500 |
57,610 |
6,336 |
0 |
6,336 |
115.66 |
$733 |
$317 |
|||||
|
2022 |
70,000 |
54,867 |
6,034 |
0 |
6,034 |
110.02 |
$664 |
$183 |
|||||
| Property Account Status/Adjustments/Exemptions | ||
|---|---|---|
| Account # | Exemption Description | Amount |
|
R155451535 |
5% Capped Account |
0 |
| Property Deed Transaction History (Recorded in the County Clerk's Office) | |||||||
|---|---|---|---|---|---|---|---|
| Date | Type | Book | Page | Price | Grantor | Grantee | |
|
7/19/2024 |
|
Deeds |
$135,000 |
ANDERSON COLIN L |
BROWN TYRONE & CLAIRE |
||
|
1/17/2024 |
|
Hmstd Off & |
$0 |
CARGAL GAIL ANN |
ANDERSON COLIN L |
||
|
8/26/2020 |
|
Hmstd Off & |
$0 |
CARGAL GAIL ANN |
CARGAL GAIL ANN |
||
|
2/25/2014 |
|
Hmstd Off & |
$0 |
ANDERSON GAIL ANN |
CARGAL GAIL ANN |
||
|
3/1/1980 |
|
Historical |
$0 |
|
ANDERSON GAIL ANN |
||
| Last Mailed Notice of Value (N.O.V.) Information/History | ||||||||
|---|---|---|---|---|---|---|---|---|
| Year | Date | Market Value | Taxable Market Value | Gross Assessed | Exemption | Net Assessed | ||
|
2026 |
02/23/2026 |
129,000 |
129,000 |
14,190 |
0 |
14,190 |
||
|
2025 |
02/14/2025 |
125,500 |
125,500 |
13,805 |
0 |
13,805 |
||
|
2024 |
02/13/2024 |
91,500 |
60,490 |
6,653 |
0 |
6,653 |
||
|
2023 |
02/14/2023 |
82,500 |
57,610 |
6,336 |
0 |
6,336 |
||
|
2022 |
03/15/2022 |
70,000 |
54,867 |
6,034 |
0 |
6,034 |
||
| Property Building Permit History | |||||||||||
|---|---|---|---|---|---|---|---|---|---|---|---|
| Issued | Permit # | Provided by | Bldg # | Description | Est Construction Cost | Status | |||||
| No Building Permit records returned. | |||||||||||
| Click button on building number to access detailed information: | ||||||
|---|---|---|---|---|---|---|
| Bldg # | Vacant/Improved Land | Bldg Description | Year Built | SqFt | # Stories | |
|
1 |
Improved |
Ranch 1 Story |
1961 |
903 |
1 Stories |
|