|
|
|
| Larry Stein Oklahoma County Assessor (405) 713-1200 - Public Access System |
|
|
|
|
|
|
| Real Property Display - Screen Produced 4/1/2026 8:32:37 PM | ||||
|---|---|---|---|---|
| Account: R154271400 | Type: Residential | Location: |
101 HUDSON PL |
|
| Building Name/Occupant: |
|
MIDWEST CITY |
||
| Owner Name 1: | ALEXANDER EVAN & OLIVIA |
Parcel PIN#: |
2538-15-427-1400 |
|
| Owner Name 2: | 1/4 section #: |
2538 |
||
| Owner Name 3: | Parent Acct: |
|
||
| Billing Address: | 101 HUDSON PL | Tax District: |
|
|
| City, State, Zip | MIDWEST CITY, OK 73110-7758 | School System: |
Mid-Del #52 |
|
|
Country: (If noted) |
Land Size: |
0.0868 Acres |
||
|
Land Value: 14,742 |
|
|||
|
Sect 35-T12N-R2W Qtr SE |
NORTH OAKS ADD
Block
002
Lot
030
|
|||
| Full Legal Description: NORTH OAKS ADD 002 030 |
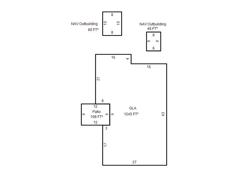
| Photo & Sketch (if available) | Comp Sales (ordered by relevancy) |
|
||||||||||||||||||
|
||||||||||||||||||||
| Value History (*The County Treasurer 405-713-1300 posts & collects actual tax amounts. Contact information HERE) | |||||||||||||
|---|---|---|---|---|---|---|---|---|---|---|---|---|---|
| Year | Market Value | Taxable Mkt Value | Gross Assessed | Exemption | Net Assessed | Millage | Est. Tax | Tax Savings | |||||
|
2026 |
126,000 |
126,000 |
13,860 |
0 |
13,860 |
119.58 |
$1,657 |
$0 |
|||||
|
2025 |
96,000 |
96,000 |
10,560 |
0 |
10,560 |
119.58 |
$1,263 |
$0 |
|||||
|
2024 |
94,000 |
38,183 |
4,200 |
0 |
4,200 |
122.51 |
$515 |
$752 |
|||||
|
2023 |
89,000 |
36,365 |
3,999 |
0 |
3,999 |
117.71 |
$471 |
$682 |
|||||
|
2022 |
58,000 |
34,634 |
3,808 |
0 |
3,808 |
116.64 |
$444 |
$300 |
|||||
| Property Account Status/Adjustments/Exemptions | ||||||
|---|---|---|---|---|---|---|
| Account # | Exemption Description | Amount | ||||
| No adjustment/exemption records returned. | ||||||
| Property Deed Transaction History (Recorded in the County Clerk's Office) | ||||||||||
|---|---|---|---|---|---|---|---|---|---|---|
| Date | Type | Book | Page | Price | Grantor | Grantee | ||||
|
4/23/2025 |
|
Deeds |
$133,000 |
NELSON MBM INVESTMENTS LLC |
ALEXANDER EVAN & OLIVIA |
|||||
|
10/29/2024 |
|
Deeds |
$37,000 |
CROSBY CHRISTINA |
OGLE PROPERTY SOLUTIONS LLC |
|||||
|
10/29/2024 |
|
Deeds |
$57,000 |
OGLE PROPERTY SOLUTIONS LLC |
NELSON MBM INVESTMENTS LLC |
|||||
|
12/23/2020 |
|
Hmstd Off & |
$0 |
DOYLE JAY W TRS & LIVING TRUST |
CROSBY CHRISTINA |
|||||
|
4/12/2017 |
|
Deeds |
$0 |
DOYLE JAY W |
DOYLE JAY W TRS & LIVING TRUST |
|||||
| Last Mailed Notice of Value (N.O.V.) Information/History | ||||||||
|---|---|---|---|---|---|---|---|---|
| Year | Date | Market Value | Taxable Market Value | Gross Assessed | Exemption | Net Assessed | ||
|
2026 |
02/23/2026 |
126,000 |
126,000 |
13,860 |
0 |
13,860 |
||
|
2025 |
02/14/2025 |
96,000 |
96,000 |
10,560 |
0 |
10,560 |
||
|
2024 |
02/13/2024 |
94,000 |
38,183 |
4,200 |
0 |
4,200 |
||
|
2023 |
02/14/2023 |
89,000 |
36,365 |
3,999 |
0 |
3,999 |
||
|
2022 |
03/15/2022 |
58,000 |
34,634 |
3,808 |
0 |
3,808 |
||
| Property Building Permit History | ||||||
|---|---|---|---|---|---|---|
| Issued | Permit # | Provided by | Bldg # | Description | Est Construction Cost | Status |
|
6/23/2014 |
10463539 |
MIDWEST CITY |
1 |
Storage Buil |
1,238 |
Inactive |
| Click button on building number to access detailed information: | ||||||
|---|---|---|---|---|---|---|
| Bldg # | Vacant/Improved Land | Bldg Description | Year Built | SqFt | # Stories | |
|
1 |
Improved |
Townhouse One Story |
1980 |
1,245 |
1 Stories |
|