|
|
|
| Larry Stein Oklahoma County Assessor (405) 713-1200 - Public Access System |
|
|
|
|
|
|
| Real Property Display - Screen Produced 4/3/2026 5:38:49 AM | ||||
|---|---|---|---|---|
| Account: R155101725 | Type: Residential | Location: |
909 JUNIPER AVE |
|
| Building Name/Occupant: |
|
MIDWEST CITY |
||
| Owner Name 1: | MAM HOMES LLC |
Parcel PIN#: |
2541-15-510-1725 |
|
| Owner Name 2: | 1/4 section #: |
2541 |
||
| Owner Name 3: | Parent Acct: |
|
||
| Billing Address: | 1901 HONEYSUCKLE LN | Tax District: |
|
|
| City, State, Zip | MIDWEST CITY, OK 73130-7042 | School System: |
Oklahoma City #89 |
|
|
Country: (If noted) |
Land Size: |
0.1653 Acres |
||
|
Land Value: 18,000 |
|
|||
|
Sect 36-T12N-R2W Qtr NE |
CULLENS 3RD
Block
002
Lot
033
|
|||
| Full Legal Description: CULLENS 3RD 002 033 |
| Photo & Sketch (if available) | Comp Sales (ordered by relevancy) |
|
||||||||||||||||||
|
||||||||||||||||||||
| Value History (*The County Treasurer 405-713-1300 posts & collects actual tax amounts. Contact information HERE) | |||||||||||||
|---|---|---|---|---|---|---|---|---|---|---|---|---|---|
| Year | Market Value | Taxable Mkt Value | Gross Assessed | Exemption | Net Assessed | Millage | Est. Tax | Tax Savings | |||||
|
2026 |
104,000 |
104,000 |
11,440 |
0 |
11,440 |
114.34 |
$1,308 |
$0 |
|||||
|
2025 |
104,000 |
102,900 |
11,319 |
0 |
11,319 |
114.34 |
$1,294 |
$14 |
|||||
|
2024 |
98,000 |
98,000 |
10,780 |
0 |
10,780 |
116.11 |
$1,252 |
$0 |
|||||
|
2023 |
91,500 |
91,500 |
10,065 |
0 |
10,065 |
115.66 |
$1,164 |
$0 |
|||||
|
2022 |
77,500 |
64,827 |
7,130 |
0 |
7,130 |
110.02 |
$785 |
$153 |
|||||
| Property Account Status/Adjustments/Exemptions | ||
|---|---|---|
| Account # | Exemption Description | Amount |
|
R155101725 |
5% Capped Account |
0 |
| Property Deed Transaction History (Recorded in the County Clerk's Office) | ||||||||||
|---|---|---|---|---|---|---|---|---|---|---|
| Date | Type | Book | Page | Price | Grantor | Grantee | ||||
|
3/7/2023 |
|
Deeds |
$120,000 |
WYNN WYNN CAPITAL LLC |
MAM HOMES LLC |
|||||
|
1/5/2022 |
|
Deeds |
$88,000 |
AFFORDABLE REAL ESTATE LLC |
WYNN WYNN CAPITAL LLC |
|||||
|
2/15/2012 |
|
Deeds |
$20,000 |
ADVANTAGE BANK |
AFFORDABLE REAL ESTATE LLC |
|||||
|
10/11/2011 |
|
Hmstd Off & |
$0 |
SMITH GLENDA |
ADVANTAGE BANK |
|||||
|
3/10/1998 |
|
Historical |
$35,000 |
BURCH KENNETH L & EMOGENE |
SMITH GLENDA |
|||||
| Last Mailed Notice of Value (N.O.V.) Information/History | ||||||||
|---|---|---|---|---|---|---|---|---|
| Year | Date | Market Value | Taxable Market Value | Gross Assessed | Exemption | Net Assessed | ||
|
2026 |
02/23/2026 |
104,000 |
104,000 |
11,440 |
0 |
11,440 |
||
|
2025 |
02/14/2025 |
104,000 |
102,900 |
11,319 |
0 |
11,319 |
||
|
2024 |
02/13/2024 |
98,000 |
98,000 |
10,780 |
0 |
10,780 |
||
|
2023 |
02/14/2023 |
91,500 |
91,500 |
10,065 |
0 |
10,065 |
||
|
2022 |
03/15/2022 |
77,500 |
64,827 |
7,130 |
0 |
7,130 |
||
| Property Building Permit History | |||||||||||
|---|---|---|---|---|---|---|---|---|---|---|---|
| Issued | Permit # | Provided by | Bldg # | Description | Est Construction Cost | Status | |||||
| No Building Permit records returned. | |||||||||||
| Click button on building number to access detailed information: | ||||||
|---|---|---|---|---|---|---|
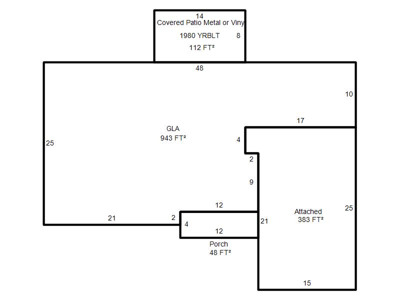
| Bldg # | Vacant/Improved Land | Bldg Description | Year Built | SqFt | # Stories | |
|
1 |
Improved |
Ranch 1 Story |
1959 |
943 |
1 Stories |
|