|
|
|
| Larry Stein Oklahoma County Assessor (405) 713-1200 - Public Access System |
|
|
|
|
|
|
| Real Property Display - Screen Produced 4/2/2026 10:17:30 AM | ||||
|---|---|---|---|---|
| Account: R155151670 | Type: Residential | Location: |
1004 LOTUS AVE |
|
| Building Name/Occupant: |
|
MIDWEST CITY |
||
| Owner Name 1: | BETTER LIVING ESTATES LLC |
Parcel PIN#: |
2541-15-515-1670 |
|
| Owner Name 2: | 1/4 section #: |
2541 |
||
| Owner Name 3: | Parent Acct: |
|
||
| Billing Address: | 120 35 233RD ST | Tax District: |
|
|
| City, State, Zip | CAMBRIA HEIGHTS, NY 11411-2231 | School System: |
Oklahoma City #89 |
|
|
Country: (If noted) |
Land Size: |
0.1722 Acres |
||
|
Land Value: 18,750 |
|
|||
|
Sect 36-T12N-R2W Qtr NE |
CULLENS 3RD 2ND SEC
Block
010
Lot
004
|
|||
| Full Legal Description: CULLENS 3RD 2ND SEC 010 004 |
| Photo & Sketch (if available) | Comp Sales (ordered by relevancy) |
|
||||||||||||||||||
|
||||||||||||||||||||
| Value History (*The County Treasurer 405-713-1300 posts & collects actual tax amounts. Contact information HERE) | |||||||||||||
|---|---|---|---|---|---|---|---|---|---|---|---|---|---|
| Year | Market Value | Taxable Mkt Value | Gross Assessed | Exemption | Net Assessed | Millage | Est. Tax | Tax Savings | |||||
|
2026 |
103,000 |
96,631 |
10,629 |
0 |
10,629 |
114.34 |
$1,215 |
$80 |
|||||
|
2025 |
102,500 |
92,030 |
10,123 |
0 |
10,123 |
114.34 |
$1,157 |
$132 |
|||||
|
2024 |
97,000 |
87,648 |
9,641 |
0 |
9,641 |
116.11 |
$1,119 |
$119 |
|||||
|
2023 |
90,000 |
83,475 |
9,182 |
0 |
9,182 |
115.66 |
$1,062 |
$83 |
|||||
|
2022 |
79,500 |
79,500 |
8,745 |
0 |
8,745 |
110.02 |
$962 |
$0 |
|||||
| Property Account Status/Adjustments/Exemptions | ||
|---|---|---|
| Account # | Exemption Description | Amount |
|
R155151670 |
5% Capped Account |
0 |
| Property Deed Transaction History (Recorded in the County Clerk's Office) | ||||||||||
|---|---|---|---|---|---|---|---|---|---|---|
| Date | Type | Book | Page | Price | Grantor | Grantee | ||||
|
10/3/2025 |
|
Hmstd Off & |
$0 |
BRATHWAITE KRISTOPHER |
BETTER LIVING ESTATES LLC |
|||||
|
4/20/2023 |
|
Hmstd Off & |
$0 |
BETTER LIVING ESTATES LLC |
BRATHWAITE KRISTOPHER |
|||||
|
1/23/2023 |
|
Hmstd Off & |
$0 |
BRATHWAITE KRISTOPHER |
BETTER LIVING ESTATES LLC |
|||||
|
11/30/2021 |
|
Deeds |
$82,000 |
PICHE EVAN G |
BRATHWAITE KRISTOPHER |
|||||
|
10/7/2019 |
|
Deeds |
$65,000 |
CRP 2 LLC |
PICHE EVAN G |
|||||
| Last Mailed Notice of Value (N.O.V.) Information/History | ||||||||
|---|---|---|---|---|---|---|---|---|
| Year | Date | Market Value | Taxable Market Value | Gross Assessed | Exemption | Net Assessed | ||
|
2026 |
02/23/2026 |
103,000 |
96,631 |
10,629 |
0 |
10,629 |
||
|
2025 |
02/14/2025 |
102,500 |
92,030 |
10,123 |
0 |
10,123 |
||
|
2024 |
02/13/2024 |
97,000 |
87,648 |
9,641 |
0 |
9,641 |
||
|
2023 |
02/14/2023 |
90,000 |
83,475 |
9,182 |
0 |
9,182 |
||
|
2022 |
03/15/2022 |
79,500 |
79,500 |
8,745 |
0 |
8,745 |
||
| Property Building Permit History | |||||||||||
|---|---|---|---|---|---|---|---|---|---|---|---|
| Issued | Permit # | Provided by | Bldg # | Description | Est Construction Cost | Status | |||||
| No Building Permit records returned. | |||||||||||
| Click button on building number to access detailed information: | ||||||
|---|---|---|---|---|---|---|
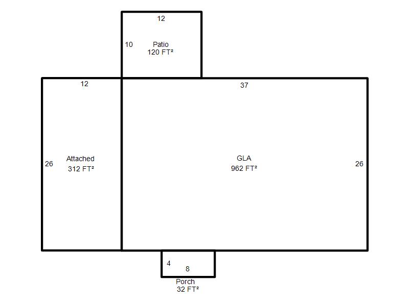
| Bldg # | Vacant/Improved Land | Bldg Description | Year Built | SqFt | # Stories | |
|
1 |
Improved |
Ranch 1 Story |
1962 |
962 |
1 Stories |
|