|
|
|
| Larry Stein Oklahoma County Assessor (405) 713-1200 - Public Access System |
|
|
|
|
|
|
| Real Property Display - Screen Produced 4/2/2026 12:35:48 AM | ||||
|---|---|---|---|---|
| Account: R155601250 | Type: Residential | Location: |
801 ROYAL AVE |
|
| Building Name/Occupant: |
|
MIDWEST CITY |
||
| Owner Name 1: | 801 ROYAL AVE TRUST |
Parcel PIN#: |
2541-15-560-1250 |
|
| Owner Name 2: | 1/4 section #: |
2541 |
||
| Owner Name 3: | Parent Acct: |
|
||
| Billing Address: | 30 N GOULD ST | Tax District: |
|
|
| City, State, Zip | SHERIDAN, WY 82801-6317 | School System: |
Oklahoma City #89 |
|
|
Country: (If noted) |
Land Size: |
0.3384 Acres |
||
|
Land Value: 33,204 |
|
|||
|
Sect 36-T12N-R2W Qtr NE |
CLEARMANS 1ST
Block
001
Lot
026
|
|||
| Full Legal Description: CLEARMANS 1ST 001 026 |
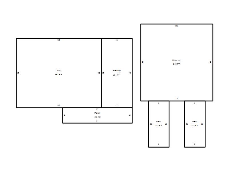
| Photo & Sketch (if available) | Comp Sales (ordered by relevancy) |
|
||||||||||||||||||
|
||||||||||||||||||||
| Value History (*The County Treasurer 405-713-1300 posts & collects actual tax amounts. Contact information HERE) | |||||||||||||
|---|---|---|---|---|---|---|---|---|---|---|---|---|---|
| Year | Market Value | Taxable Mkt Value | Gross Assessed | Exemption | Net Assessed | Millage | Est. Tax | Tax Savings | |||||
|
2026 |
150,500 |
150,500 |
16,555 |
0 |
16,555 |
114.34 |
$1,893 |
$0 |
|||||
|
2025 |
148,500 |
148,500 |
16,335 |
0 |
16,335 |
114.34 |
$1,868 |
$0 |
|||||
|
2024 |
144,000 |
144,000 |
15,840 |
0 |
15,840 |
116.11 |
$1,839 |
$0 |
|||||
|
2023 |
133,500 |
114,660 |
12,612 |
0 |
12,612 |
115.66 |
$1,459 |
$240 |
|||||
|
2022 |
112,000 |
109,200 |
12,012 |
0 |
12,012 |
110.02 |
$1,322 |
$34 |
|||||
| Property Account Status/Adjustments/Exemptions | ||
|---|---|---|
| Account # | Exemption Description | Amount |
|
R155601250 |
5% Capped Account |
0 |
| Property Deed Transaction History (Recorded in the County Clerk's Office) | |||||||
|---|---|---|---|---|---|---|---|
| Date | Type | Book | Page | Price | Grantor | Grantee | |
|
9/6/2023 |
|
Deeds |
$129,000 |
VELASCO LISANDRO GABRIEL |
801 ROYAL AVE TRUST |
||
|
3/31/2020 |
|
Deeds |
$105,000 |
CHAIREZ JOSE L |
VELASCO LISANDRO GABRIEL |
||
|
7/5/2017 |
|
Deeds |
$0 |
HARTZOG JAMES N |
HARTZOG JAMES N & TERESA I |
||
|
7/5/2017 |
|
Deeds |
$30,000 |
HARTZOG JAMES N & TERESA I |
CHAIREZ JOSE L |
||
|
1/1/1977 |
|
Historical |
$0 |
|
HARTZOG JAMES N & TERESA I |
||
| Last Mailed Notice of Value (N.O.V.) Information/History | ||||||||
|---|---|---|---|---|---|---|---|---|
| Year | Date | Market Value | Taxable Market Value | Gross Assessed | Exemption | Net Assessed | ||
|
2026 |
02/23/2026 |
150,500 |
150,500 |
16,555 |
0 |
16,555 |
||
|
2025 |
02/14/2025 |
148,500 |
148,500 |
16,335 |
0 |
16,335 |
||
|
2024 |
02/13/2024 |
144,000 |
144,000 |
15,840 |
0 |
15,840 |
||
|
2023 |
02/14/2023 |
133,500 |
114,660 |
12,612 |
0 |
12,612 |
||
|
2022 |
03/15/2022 |
112,000 |
109,200 |
12,012 |
0 |
12,012 |
||
| Property Building Permit History | |||||||||||
|---|---|---|---|---|---|---|---|---|---|---|---|
| Issued | Permit # | Provided by | Bldg # | Description | Est Construction Cost | Status | |||||
| No Building Permit records returned. | |||||||||||
| Click button on building number to access detailed information: | ||||||
|---|---|---|---|---|---|---|
| Bldg # | Vacant/Improved Land | Bldg Description | Year Built | SqFt | # Stories | |
|
1 |
Improved |
Ranch 1 Story |
1968 |
891 |
1 Stories |
|