|
|
|
| Larry Stein Oklahoma County Assessor (405) 713-1200 - Public Access System |
|
|
|
|
|
|
| Real Property Display - Screen Produced 4/1/2026 2:02:40 AM | ||||
|---|---|---|---|---|
| Account: R151362090 | Type: Residential | Location: |
9704 NE 2ND ST |
|
| Building Name/Occupant: |
|
MIDWEST CITY |
||
| Owner Name 1: | SFR OWNER I LLC |
Parcel PIN#: |
2542-15-136-2090 |
|
| Owner Name 2: | 1/4 section #: |
2542 |
||
| Owner Name 3: | Parent Acct: |
|
||
| Billing Address: | PO BOX 130 | Tax District: |
|
|
| City, State, Zip | PORTSMOUTH, NH 03802-0069 | School System: |
Mid-Del #52 |
|
|
Country: (If noted) |
Land Size: |
0.1653 Acres |
||
|
Land Value: 24,840 |
|
|||
|
Sect 36-T12N-R2W Qtr SE |
CULLEN 7TH
Block
004
Lot
036
|
|||
| Full Legal Description: CULLEN 7TH 004 036 |
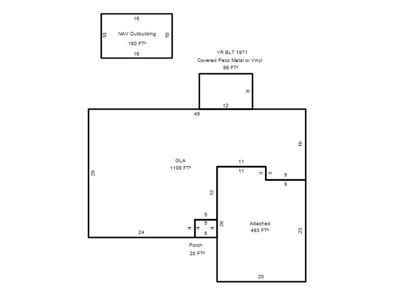
| Photo & Sketch (if available) | Comp Sales (ordered by relevancy) |
|
||||||||||||||||||
|
||||||||||||||||||||
| Value History (*The County Treasurer 405-713-1300 posts & collects actual tax amounts. Contact information HERE) | |||||||||||||
|---|---|---|---|---|---|---|---|---|---|---|---|---|---|
| Year | Market Value | Taxable Mkt Value | Gross Assessed | Exemption | Net Assessed | Millage | Est. Tax | Tax Savings | |||||
|
2026 |
135,000 |
135,000 |
14,850 |
0 |
14,850 |
119.58 |
$1,776 |
$0 |
|||||
|
2025 |
137,500 |
96,443 |
10,608 |
0 |
10,608 |
119.58 |
$1,269 |
$540 |
|||||
|
2024 |
132,500 |
91,851 |
10,103 |
0 |
10,103 |
122.51 |
$1,238 |
$548 |
|||||
|
2023 |
121,500 |
87,478 |
9,622 |
0 |
9,622 |
117.71 |
$1,133 |
$441 |
|||||
|
2022 |
105,000 |
83,313 |
9,163 |
0 |
9,163 |
116.64 |
$1,069 |
$278 |
|||||
| Property Account Status/Adjustments/Exemptions | ||||||
|---|---|---|---|---|---|---|
| Account # | Exemption Description | Amount | ||||
| No adjustment/exemption records returned. | ||||||
| Property Deed Transaction History (Recorded in the County Clerk's Office) | ||||||||||
|---|---|---|---|---|---|---|---|---|---|---|
| Date | Type | Book | Page | Price | Grantor | Grantee | ||||
|
11/5/2025 |
|
Deeds |
$134,000 |
TOONE LYNDI |
SFR OWNER I LLC |
|||||
|
12/10/2024 |
|
Hmstd Off & |
$0 |
ANDERSON LISA M TRS |
TOONE LYNDI |
|||||
|
1/26/2017 |
|
Deeds |
$0 |
ANDERSON LISA OWENS LYNDI M |
ANDERSON LISA M TRS |
|||||
|
8/15/2014 |
|
Deeds |
$57,500 |
HEARN CORMACK P SR & CATHERINE M |
ANDERSON LISA OWENS LYNDI M |
|||||
|
7/1/2013 |
|
Deeds |
$50,000 |
GORE DANIEL L GORE CHELSY M |
HEARN CORMACK P SR & CATHERINE M |
|||||
| Last Mailed Notice of Value (N.O.V.) Information/History | ||||||||
|---|---|---|---|---|---|---|---|---|
| Year | Date | Market Value | Taxable Market Value | Gross Assessed | Exemption | Net Assessed | ||
|
2026 |
02/23/2026 |
135,000 |
135,000 |
14,850 |
0 |
14,850 |
||
|
2025 |
02/14/2025 |
137,500 |
96,443 |
10,608 |
0 |
10,608 |
||
|
2024 |
02/13/2024 |
132,500 |
91,851 |
10,103 |
0 |
10,103 |
||
|
2023 |
02/14/2023 |
121,500 |
87,478 |
9,622 |
0 |
9,622 |
||
|
2022 |
03/15/2022 |
105,000 |
83,313 |
9,163 |
0 |
9,163 |
||
| Property Building Permit History | ||||||
|---|---|---|---|---|---|---|
| Issued | Permit # | Provided by | Bldg # | Description | Est Construction Cost | Status |
|
3/18/1996 |
10248609 |
MIDWEST CITY |
1 |
Storage Buil |
2,600 |
Inactive |
| Click button on building number to access detailed information: | ||||||
|---|---|---|---|---|---|---|
| Bldg # | Vacant/Improved Land | Bldg Description | Year Built | SqFt | # Stories | |
|
1 |
Improved |
Ranch 1 Story |
1971 |
1,108 |
1 Stories |
|