|
|
|
| Larry Stein Oklahoma County Assessor (405) 713-1200 - Public Access System |
|
|
|
|
|
|
| Real Property Display - Screen Produced 4/1/2026 12:33:41 AM | ||||
|---|---|---|---|---|
| Account: R119882035 | Type: Residential | Location: |
2619 NW 67TH ST |
|
| Building Name/Occupant: |
|
OKLAHOMA CITY |
||
| Owner Name 1: | TEMPLE KATHERINE ELIZABETH |
Parcel PIN#: |
2623-11-988-2035 |
|
| Owner Name 2: | 1/4 section #: |
2623 |
||
| Owner Name 3: | Parent Acct: |
|
||
| Billing Address: | 2619 NW 67TH ST | Tax District: |
|
|
| City, State, Zip | OKLAHOMA CITY, OK 73116-4703 | School System: |
Oklahoma City #89 |
|
|
Country: (If noted) |
Land Size: |
0.2316 Acres |
||
|
Land Value: 63,044 |
|
|||
|
Sect 6-T12N-R3W Qtr SW |
TREADWELL GRAND VIEW CTRY CLB
Block
014
Lot
011
|
|||
| Full Legal Description: TREADWELL GRAND VIEW CTRY CLB 014 011 |
| Photo & Sketch (if available) | Comp Sales (ordered by relevancy) |
|
||||||||||||||||||
|
||||||||||||||||||||
| Value History (*The County Treasurer 405-713-1300 posts & collects actual tax amounts. Contact information HERE) | |||||||||||||
|---|---|---|---|---|---|---|---|---|---|---|---|---|---|
| Year | Market Value | Taxable Mkt Value | Gross Assessed | Exemption | Net Assessed | Millage | Est. Tax | Tax Savings | |||||
|
2026 |
352,000 |
352,000 |
38,720 |
0 |
38,720 |
122.90 |
$4,759 |
$0 |
|||||
|
2025 |
354,000 |
353,075 |
38,837 |
0 |
38,837 |
122.90 |
$4,773 |
$13 |
|||||
|
2024 |
345,500 |
336,262 |
36,988 |
0 |
36,988 |
123.89 |
$4,583 |
$126 |
|||||
|
2023 |
334,500 |
320,250 |
35,227 |
0 |
35,227 |
122.82 |
$4,327 |
$193 |
|||||
|
2022 |
305,000 |
305,000 |
33,550 |
0 |
33,550 |
117.63 |
$3,946 |
$0 |
|||||
| Property Account Status/Adjustments/Exemptions | ||||||
|---|---|---|---|---|---|---|
| Account # | Exemption Description | Amount | ||||
| No adjustment/exemption records returned. | ||||||
| Property Deed Transaction History (Recorded in the County Clerk's Office) | ||||||||||
|---|---|---|---|---|---|---|---|---|---|---|
| Date | Type | Book | Page | Price | Grantor | Grantee | ||||
|
5/19/2025 |
|
Deeds |
$356,000 |
BURKEY CHRISTOPHER C FAMILY TRUST |
TEMPLE KATHERINE ELIZABETH |
|||||
|
4/15/2021 |
|
Deeds |
$292,500 |
PAIGE MIKE & MARY |
BURKEY CHRISTOPHER C FAMILY TRUST |
|||||
|
10/10/2016 |
|
Hmstd Off & |
$0 |
QUINN MARY PAIGE MIKE |
PAIGE MIKE & MARY |
|||||
|
7/22/2013 |
|
Deeds |
$238,000 |
WILLIAMS AUTUMN |
QUINN MARY PAIGE MIKE |
|||||
|
6/25/2008 |
|
Deeds |
$97,500 |
STILES MIKE C & JILL KIMMER |
WILLIAMS AUTUMN |
|||||
| Last Mailed Notice of Value (N.O.V.) Information/History | ||||||||
|---|---|---|---|---|---|---|---|---|
| Year | Date | Market Value | Taxable Market Value | Gross Assessed | Exemption | Net Assessed | ||
|
2025 |
02/14/2025 |
354,000 |
353,075 |
38,837 |
0 |
38,837 |
||
|
2024 |
02/13/2024 |
345,500 |
336,262 |
36,988 |
0 |
36,988 |
||
|
2023 |
02/14/2023 |
334,500 |
320,250 |
35,227 |
0 |
35,227 |
||
|
2022 |
03/15/2022 |
305,000 |
305,000 |
33,550 |
0 |
33,550 |
||
|
2021 |
03/19/2021 |
285,000 |
277,647 |
30,541 |
1,000 |
29,541 |
||
| Property Building Permit History | |||||||||||
|---|---|---|---|---|---|---|---|---|---|---|---|
| Issued | Permit # | Provided by | Bldg # | Description | Est Construction Cost | Status | |||||
| No Building Permit records returned. | |||||||||||
| Click button on building number to access detailed information: | ||||||
|---|---|---|---|---|---|---|
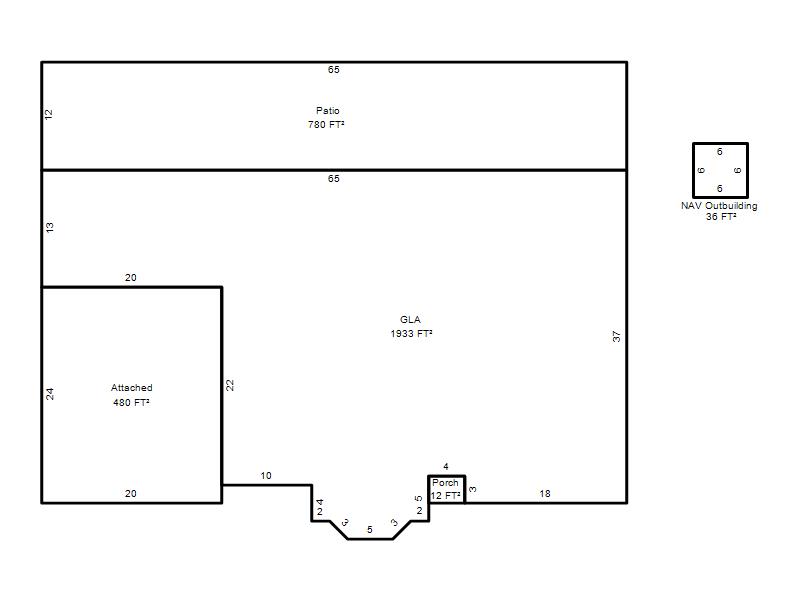
| Bldg # | Vacant/Improved Land | Bldg Description | Year Built | SqFt | # Stories | |
|
1 |
Improved |
Ranch 1 Story |
1956 |
1,933 |
1 Stories |
|