|
|
|
| Larry Stein Oklahoma County Assessor (405) 713-1200 - Public Access System |
|
|
|
|
|
|
| Real Property Display - Screen Produced 4/1/2026 12:33:40 AM | ||||
|---|---|---|---|---|
| Account: R119882585 | Type: Residential | Location: |
2627 NW 69TH ST |
|
| Building Name/Occupant: |
|
OKLAHOMA CITY |
||
| Owner Name 1: | TURMELLE THOMAS J & LEE ANN TRS |
Parcel PIN#: |
2623-11-988-2585 |
|
| Owner Name 2: | TURMELLE REV TRUST | 1/4 section #: |
2623 |
|
| Owner Name 3: | Parent Acct: |
|
||
| Billing Address: | 2627 NW 69TH ST | Tax District: |
|
|
| City, State, Zip | OKLAHOMA CITY, OK 73116 | School System: |
Oklahoma City #89 |
|
|
Country: (If noted) |
Land Size: |
0.2590 Acres |
||
|
Land Value: 70,500 |
|
|||
|
Sect 6-T12N-R3W Qtr SW |
TREADWELL GRAND VIEW CTRY CLB
Block
021
Lot
009
|
|||
| Full Legal Description: TREADWELL GRAND VIEW CTRY CLB 021 009 |
| Photo & Sketch (if available) | Comp Sales (ordered by relevancy) |
|
||||||||||||||||||
|
||||||||||||||||||||
| Value History (*The County Treasurer 405-713-1300 posts & collects actual tax amounts. Contact information HERE) | |||||||||||||
|---|---|---|---|---|---|---|---|---|---|---|---|---|---|
| Year | Market Value | Taxable Mkt Value | Gross Assessed | Exemption | Net Assessed | Millage | Est. Tax | Tax Savings | |||||
|
2026 |
384,500 |
384,500 |
42,295 |
1,000 |
41,295 |
122.90 |
$5,075 |
$123 |
|||||
|
2025 |
387,000 |
387,000 |
42,570 |
1,000 |
41,570 |
122.90 |
$5,109 |
$123 |
|||||
|
2024 |
291,500 |
265,151 |
29,165 |
0 |
29,165 |
123.89 |
$3,613 |
$359 |
|||||
|
2023 |
286,500 |
252,525 |
27,777 |
0 |
27,777 |
122.82 |
$3,412 |
$459 |
|||||
|
2022 |
240,500 |
240,500 |
26,455 |
0 |
26,455 |
117.63 |
$3,112 |
$0 |
|||||
| Property Account Status/Adjustments/Exemptions | ||
|---|---|---|
| Account # | Exemption Description | Amount |
|
R119882585 |
3% Cap Homestead |
0 |
|
R119882585 |
Homestead |
1,000 |
| Property Deed Transaction History (Recorded in the County Clerk's Office) | ||||||||||
|---|---|---|---|---|---|---|---|---|---|---|
| Date | Type | Book | Page | Price | Grantor | Grantee | ||||
|
5/22/2024 |
|
Hmstd Off & |
$0 |
WMPC LLC |
WMPC INVESTMENTS LLC |
|||||
|
5/22/2024 |
|
Deeds |
$399,000 |
WMPC INVESTMENTS LLC |
TURMELLE THOMAS J & LEE ANN |
|||||
|
5/22/2024 |
|
Hmstd Off & |
$0 |
TURMELLE THOMAS J & LEE ANN |
TURMELLE THOMAS J & LEE ANN TRS |
|||||
|
6/21/2021 |
|
Hmstd Off & |
$0 |
HUDSON PATRICIA |
WMPC LLC |
|||||
|
6/11/2021 |
|
Deeds |
$235,000 |
DEAN SEANA K CO TRS |
WMPC LLC |
|||||
| Last Mailed Notice of Value (N.O.V.) Information/History | ||||||||
|---|---|---|---|---|---|---|---|---|
| Year | Date | Market Value | Taxable Market Value | Gross Assessed | Exemption | Net Assessed | ||
|
2025 |
02/14/2025 |
387,000 |
387,000 |
42,570 |
1,000 |
41,570 |
||
|
2024 |
02/13/2024 |
291,500 |
265,151 |
29,165 |
0 |
29,165 |
||
|
2023 |
02/14/2023 |
286,500 |
252,525 |
27,777 |
0 |
27,777 |
||
|
2021 |
03/19/2021 |
312,000 |
311,400 |
34,254 |
0 |
34,254 |
||
|
2020 |
03/10/2020 |
297,000 |
296,572 |
32,622 |
0 |
32,622 |
||
| Property Building Permit History | |||||||||||
|---|---|---|---|---|---|---|---|---|---|---|---|
| Issued | Permit # | Provided by | Bldg # | Description | Est Construction Cost | Status | |||||
| No Building Permit records returned. | |||||||||||
| Click button on building number to access detailed information: | ||||||
|---|---|---|---|---|---|---|
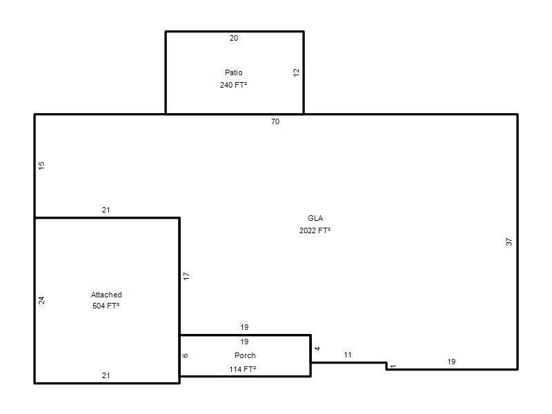
| Bldg # | Vacant/Improved Land | Bldg Description | Year Built | SqFt | # Stories | |
|
1 |
Improved |
Ranch 1 Story |
1958 |
2,022 |
1 Stories |
|