|
|
|
| Larry Stein Oklahoma County Assessor (405) 713-1200 - Public Access System |
|
|
|
|
|
|
| Real Property Display - Screen Produced 3/26/2026 12:30:19 PM | ||||
|---|---|---|---|---|
| Account: R100921165 | Type: Residential | Location: |
2300 NW 59TH ST |
|
| Building Name/Occupant: |
|
OKLAHOMA CITY |
||
| Owner Name 1: | BUXTON VIRGINIA K |
Parcel PIN#: |
2625-10-092-1165 |
|
| Owner Name 2: | 1/4 section #: |
2625 |
||
| Owner Name 3: | Parent Acct: |
|
||
| Billing Address: | 2300 NW 59TH ST | Tax District: |
|
|
| City, State, Zip | OKLAHOMA CITY, OK 73112-7346 | School System: |
Oklahoma City #89 |
|
|
Country: (If noted) |
Land Size: |
0.4597 Acres |
||
|
Land Value: 110,000 |
|
|||
|
Sect 7-T12N-R3W Qtr NE |
WILEMAN 9TH REPLAT
Block
003
Lot
001
|
|||
| Full Legal Description: WILEMAN 9TH REPLAT 003 001 |
| Photo & Sketch (if available) | Comp Sales (ordered by relevancy) |
|
||||||||||||||||||
|
||||||||||||||||||||
| Value History (*The County Treasurer 405-713-1300 posts & collects actual tax amounts. Contact information HERE) | |||||||||||||
|---|---|---|---|---|---|---|---|---|---|---|---|---|---|
| Year | Market Value | Taxable Mkt Value | Gross Assessed | Exemption | Net Assessed | Millage | Est. Tax | Tax Savings | |||||
|
2026 |
792,000 |
683,550 |
75,190 |
0 |
75,190 |
122.90 |
$9,241 |
$1,466 |
|||||
|
2025 |
651,000 |
651,000 |
71,610 |
0 |
71,610 |
122.90 |
$8,801 |
$0 |
|||||
|
2024 |
693,500 |
631,967 |
69,515 |
1,000 |
68,515 |
123.89 |
$8,488 |
$962 |
|||||
|
2023 |
690,500 |
613,561 |
67,491 |
1,000 |
66,491 |
122.82 |
$8,167 |
$1,162 |
|||||
|
2022 |
632,500 |
595,691 |
65,525 |
1,000 |
64,525 |
117.63 |
$7,590 |
$594 |
|||||
| Property Account Status/Adjustments/Exemptions | ||
|---|---|---|
| Account # | Exemption Description | Amount |
|
R100921165 |
5% Capped Account |
0 |
| Property Deed Transaction History (Recorded in the County Clerk's Office) | ||||||||||
|---|---|---|---|---|---|---|---|---|---|---|
| Date | Type | Book | Page | Price | Grantor | Grantee | ||||
|
3/22/2024 |
|
Deeds |
$650,000 |
SMITH CHARLES C REV TRUST |
BUXTON VIRGINIA K |
|||||
|
8/9/2019 |
|
Deeds |
$445,000 |
OBRIEN JOSEPH P & KATHRYN F |
SMITH CHARLES C REV TRUST |
|||||
|
8/15/2011 |
|
Deeds |
$0 |
PATE J DURWOOD & NATHALIE R TRS PATE J DURWOOD & NATHALIE RE |
PATE NATHALIE TRS PATE J DURWOOD & NATHALIE REV TRUST |
|||||
|
8/15/2011 |
|
Deeds |
$310,000 |
PATE NATHALIE TRS PATE J D & NATHALIE REV TRUST |
OBRIEN JOSEPH P & KATHRYN F |
|||||
|
10/24/2007 |
|
Deeds |
$0 |
PATE J D & NATHALIE R |
PATE J DURWOOD & NATHALIE R TRS PATE J DURWOOD & NATHALIE RE |
|||||
| Last Mailed Notice of Value (N.O.V.) Information/History | ||||||||
|---|---|---|---|---|---|---|---|---|
| Year | Date | Market Value | Taxable Market Value | Gross Assessed | Exemption | Net Assessed | ||
|
2026 |
02/23/2026 |
792,000 |
683,550 |
75,190 |
0 |
75,190 |
||
|
2025 |
02/14/2025 |
651,000 |
651,000 |
71,610 |
0 |
71,610 |
||
|
2024 |
02/13/2024 |
693,500 |
631,967 |
69,515 |
1,000 |
68,515 |
||
|
2024 |
04/05/2024 |
693,500 |
631,967 |
69,515 |
1,000 |
68,515 |
||
|
2023 |
02/14/2023 |
690,500 |
613,561 |
67,491 |
1,000 |
66,491 |
||
| Property Building Permit History | ||||||
|---|---|---|---|---|---|---|
| Issued | Permit # | Provided by | Bldg # | Description | Est Construction Cost | Status |
|
9/16/2020 |
BLDR-2020-04258 |
|
1 |
Remodeled |
20,000 |
Inactive |
| Click button on building number to access detailed information: | ||||||
|---|---|---|---|---|---|---|
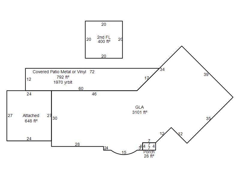
| Bldg # | Vacant/Improved Land | Bldg Description | Year Built | SqFt | # Stories | |
|
1 |
Improved |
1½ Story Fin |
1961 |
3,501 |
1.5 Stories |
|