|
|
|
| Larry Stein Oklahoma County Assessor (405) 713-1200 - Public Access System |
|
|
|
|
|
|
| Real Property Display - Screen Produced 3/31/2026 10:30:06 PM | ||||
|---|---|---|---|---|
| Account: R055522035 | Type: Residential | Location: |
2424 NW 55TH TER |
|
| Building Name/Occupant: |
|
OKLAHOMA CITY |
||
| Owner Name 1: | DANIEL LAN |
Parcel PIN#: |
2626-05-552-2035 |
|
| Owner Name 2: | NAIFEH DANIEL MAGGIE MARIE | 1/4 section #: |
2626 |
|
| Owner Name 3: | Parent Acct: |
|
||
| Billing Address: | 2424 NW 55TH TER | Tax District: |
|
|
| City, State, Zip | OKLAHOMA CITY, OK 73112-7764 | School System: |
Oklahoma City #89 |
|
|
Country: (If noted) |
Land Size: |
0.4066 Acres |
||
|
Land Value: 119,556 |
|
|||
|
Sect 7-T12N-R3W Qtr SE |
WILEMAN 6TH
Block
006
Lot
020
|
|||
| Full Legal Description: WILEMAN 6TH 006 020 |
| Photo & Sketch (if available) | Comp Sales (ordered by relevancy) |
|
||||||||||||||||||
|
||||||||||||||||||||
| Value History (*The County Treasurer 405-713-1300 posts & collects actual tax amounts. Contact information HERE) | |||||||||||||
|---|---|---|---|---|---|---|---|---|---|---|---|---|---|
| Year | Market Value | Taxable Mkt Value | Gross Assessed | Exemption | Net Assessed | Millage | Est. Tax | Tax Savings | |||||
|
2026 |
465,500 |
465,500 |
51,205 |
0 |
51,205 |
122.90 |
$6,293 |
$0 |
|||||
|
2025 |
548,000 |
548,000 |
60,280 |
0 |
60,280 |
122.90 |
$7,408 |
$0 |
|||||
|
2024 |
301,000 |
301,000 |
33,110 |
0 |
33,110 |
123.89 |
$4,102 |
$0 |
|||||
|
2023 |
300,000 |
270,884 |
29,796 |
0 |
29,796 |
122.82 |
$3,660 |
$393 |
|||||
|
2022 |
267,500 |
257,985 |
28,378 |
0 |
28,378 |
117.63 |
$3,338 |
$123 |
|||||
| Property Account Status/Adjustments/Exemptions | ||
|---|---|---|
| Account # | Exemption Description | Amount |
|
R055522035 |
5% Capped Account |
0 |
| Property Deed Transaction History (Recorded in the County Clerk's Office) | ||||||||||
|---|---|---|---|---|---|---|---|---|---|---|
| Date | Type | Book | Page | Price | Grantor | Grantee | ||||
|
6/20/2024 |
|
Deeds |
$549,000 |
CHAMBERLAIN BEN C |
DANIEL LAN |
|||||
|
6/30/2023 |
|
Deeds |
$260,000 |
BLANKS MARY M |
CHAMBERLAIN BEN C |
|||||
|
5/23/2016 |
|
Hmstd Off & |
$0 |
BLANKS MARY M |
BLANKS MARY M |
|||||
|
12/20/2006 |
|
Deeds |
$188,000 |
ROHDE JOHN P & DEBBIE |
BLANKS MARY M |
|||||
|
5/20/1994 |
|
Historical |
$0 |
FIRST METHODIST CH |
ROHDE JOHN P & DEBBIE |
|||||
| Last Mailed Notice of Value (N.O.V.) Information/History | ||||||||
|---|---|---|---|---|---|---|---|---|
| Year | Date | Market Value | Taxable Market Value | Gross Assessed | Exemption | Net Assessed | ||
|
2025 |
02/14/2025 |
548,000 |
548,000 |
60,280 |
0 |
60,280 |
||
|
2024 |
02/13/2024 |
301,000 |
301,000 |
33,110 |
0 |
33,110 |
||
|
2023 |
02/14/2023 |
300,000 |
270,884 |
29,796 |
0 |
29,796 |
||
|
2022 |
03/15/2022 |
267,500 |
257,985 |
28,378 |
0 |
28,378 |
||
|
2021 |
03/19/2021 |
249,500 |
245,700 |
27,027 |
0 |
27,027 |
||
| Property Building Permit History | |||||||||||
|---|---|---|---|---|---|---|---|---|---|---|---|
| Issued | Permit # | Provided by | Bldg # | Description | Est Construction Cost | Status | |||||
| No Building Permit records returned. | |||||||||||
| Click button on building number to access detailed information: | ||||||
|---|---|---|---|---|---|---|
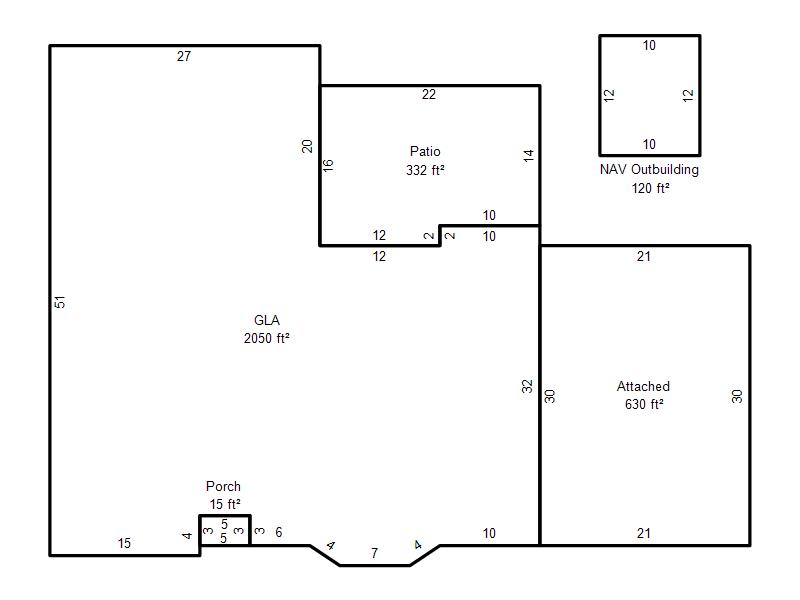
| Bldg # | Vacant/Improved Land | Bldg Description | Year Built | SqFt | # Stories | |
|
1 |
Improved |
Ranch 1 Story |
1957 |
2,050 |
1 Stories |
|