|
|
|
| Larry Stein Oklahoma County Assessor (405) 713-1200 - Public Access System |
|
|
|
|
|
|
| Real Property Display - Screen Produced 4/2/2026 8:59:48 PM | ||||
|---|---|---|---|---|
| Account: R149801565 | Type: Residential | Location: |
5505 N EVEREST AVE |
|
| Building Name/Occupant: |
|
OKLAHOMA CITY |
||
| Owner Name 1: | REGISTER JENNIFER |
Parcel PIN#: |
2643-14-980-1565 |
|
| Owner Name 2: | IDLET STEVEN | 1/4 section #: |
2643 |
|
| Owner Name 3: | Parent Acct: |
|
||
| Billing Address: | 5505 N EVEREST AVE | Tax District: |
|
|
| City, State, Zip | OKLAHOMA CITY, OK 73111-6641 | School System: |
Millwood #37 |
|
|
Country: (If noted) |
Land Size: |
0.4736 Acres |
||
|
Land Value: 53,633 |
|
|||
|
Sect 11-T12N-R3W Qtr SW |
CASHIONS WILDEWOOD
Block
004
Lot
018
|
|||
| Full Legal Description: CASHIONS WILDEWOOD 004 018 |
| Photo & Sketch (if available) | Comp Sales (ordered by relevancy) |
|
||||||||||||||||||
|
||||||||||||||||||||
| Value History (*The County Treasurer 405-713-1300 posts & collects actual tax amounts. Contact information HERE) | |||||||||||||
|---|---|---|---|---|---|---|---|---|---|---|---|---|---|
| Year | Market Value | Taxable Mkt Value | Gross Assessed | Exemption | Net Assessed | Millage | Est. Tax | Tax Savings | |||||
|
2026 |
379,000 |
379,000 |
41,690 |
0 |
41,690 |
131.17 |
$5,468 |
$0 |
|||||
|
2025 |
366,500 |
361,200 |
39,732 |
0 |
39,732 |
131.17 |
$5,212 |
$76 |
|||||
|
2024 |
344,000 |
344,000 |
37,840 |
0 |
37,840 |
132.60 |
$5,018 |
$0 |
|||||
|
2023 |
513,000 |
385,875 |
42,446 |
0 |
42,446 |
134.52 |
$5,710 |
$1,881 |
|||||
|
2022 |
428,000 |
367,500 |
40,425 |
0 |
40,425 |
129.77 |
$5,246 |
$864 |
|||||
| Property Account Status/Adjustments/Exemptions | ||||||
|---|---|---|---|---|---|---|
| Account # | Exemption Description | Amount | ||||
| No adjustment/exemption records returned. | ||||||
| Property Deed Transaction History (Recorded in the County Clerk's Office) | ||||||||||
|---|---|---|---|---|---|---|---|---|---|---|
| Date | Type | Book | Page | Price | Grantor | Grantee | ||||
|
12/4/2025 |
|
Deeds |
$469,000 |
GRANT KAYLA |
REGISTER JENNIFER |
|||||
|
8/3/2023 |
|
Deeds |
$430,000 |
COHEN LLOYD CARNELLIUS III & SHANI RASHIDA |
GRANT KAYLA |
|||||
|
8/15/2018 |
|
Deeds |
$0 |
COHEN LLOYD CARNELLIUS III |
COHEN LLOYD CARNELLIUS III & SHANI RASHIDA |
|||||
|
7/7/2016 |
|
Deeds |
$170,000 |
THOMAS KENO V PER REP ESTATE OF NAOMI LEE THOMAS |
COHEN LLOYD CARNELLIUS III |
|||||
|
1/5/2016 |
|
Hmstd Off & |
$0 |
THOMAS JAMES C & NAOMI L |
THOMAS KENO V PER REP ESTATE OF NAOMI LEE THOMAS |
|||||
| Last Mailed Notice of Value (N.O.V.) Information/History | ||||||||
|---|---|---|---|---|---|---|---|---|
| Year | Date | Market Value | Taxable Market Value | Gross Assessed | Exemption | Net Assessed | ||
|
2026 |
02/23/2026 |
379,000 |
379,000 |
41,690 |
0 |
41,690 |
||
|
2025 |
02/14/2025 |
366,500 |
361,200 |
39,732 |
0 |
39,732 |
||
|
2023 |
02/14/2023 |
513,000 |
385,875 |
42,446 |
0 |
42,446 |
||
|
2022 |
03/15/2022 |
428,000 |
367,500 |
40,425 |
0 |
40,425 |
||
|
2018 |
05/15/2018 |
350,000 |
350,000 |
38,500 |
0 |
38,500 |
||
| Property Building Permit History | |||||||||||
|---|---|---|---|---|---|---|---|---|---|---|---|
| Issued | Permit # | Provided by | Bldg # | Description | Est Construction Cost | Status | |||||
| No Building Permit records returned. | |||||||||||
| Click button on building number to access detailed information: | ||||||
|---|---|---|---|---|---|---|
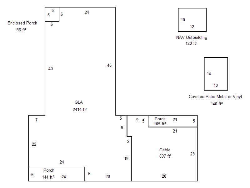
| Bldg # | Vacant/Improved Land | Bldg Description | Year Built | SqFt | # Stories | |
|
1 |
Improved |
Ranch 1 Story |
1959 |
2,414 |
1 Stories |
|