|
|
|
| Larry Stein Oklahoma County Assessor (405) 713-1200 - Public Access System |
|
|
|
|
|
|
| Real Property Display - Screen Produced 3/3/2026 3:44:24 PM | ||||
|---|---|---|---|---|
| Account: R116530175 | Type: Residential | Location: |
1530 NE 43RD ST |
|
| Building Name/Occupant: |
|
OKLAHOMA CITY |
||
| Owner Name 1: | ADAMS CHRISTOPHER LLOYD & KARLEE LAUREN |
Parcel PIN#: |
2653-11-653-0175 |
|
| Owner Name 2: | 1/4 section #: |
2653 |
||
| Owner Name 3: | Parent Acct: |
|
||
| Billing Address: | 1530 NE 43RD ST | Tax District: |
|
|
| City, State, Zip | OKLAHOMA CITY, OK 73111-6030 | School System: |
Oklahoma City #89 |
|
|
Country: (If noted) |
Land Size: |
0.1377 Acres |
||
|
Land Value: 14,700 |
|
|||
|
Sect 14-T12N-R3W Qtr NE |
PARK ESTATES 6TH ADD
Block
001
Lot
007
|
|||
| Full Legal Description: PARK ESTATES 6TH ADD 001 007 |
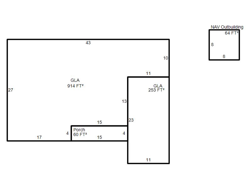
| Photo & Sketch (if available) | Comp Sales (ordered by relevancy) |
|
||||||||||||||||||
|
||||||||||||||||||||
| Value History (*The County Treasurer 405-713-1300 posts & collects actual tax amounts. Contact information HERE) | |||||||||||||
|---|---|---|---|---|---|---|---|---|---|---|---|---|---|
| Year | Market Value | Taxable Mkt Value | Gross Assessed | Exemption | Net Assessed | Millage | Est. Tax | Tax Savings | |||||
|
2025 |
153,000 |
153,000 |
16,830 |
0 |
16,830 |
122.90 |
$2,068 |
$0 |
|||||
|
2024 |
152,500 |
152,500 |
16,775 |
0 |
16,775 |
123.89 |
$2,078 |
$0 |
|||||
|
2023 |
63,500 |
63,500 |
6,985 |
0 |
6,985 |
122.82 |
$858 |
$0 |
|||||
|
2022 |
56,000 |
11,801 |
1,298 |
1,298 |
0 |
117.63 |
$0 |
$725 |
|||||
|
2021 |
54,000 |
11,801 |
1,298 |
1,298 |
0 |
117.70 |
$0 |
$699 |
|||||
| Property Account Status/Adjustments/Exemptions | ||
|---|---|---|
| Account # | Exemption Description | Amount |
|
R116530175 |
5% Capped Account |
0 |
| Property Deed Transaction History (Recorded in the County Clerk's Office) | |||||||
|---|---|---|---|---|---|---|---|
| Date | Type | Book | Page | Price | Grantor | Grantee | |
|
10/20/2023 |
|
Deeds |
$136,500 |
SECOND CHANCE INVESTMENTS INC |
ADAMS CHRISTOPHER LLOYD & KARLEE LAUREN |
||
|
10/25/2022 |
|
Sheriff's/Ma |
$60,000 |
OBY IDA B |
SECOND CHANCE INVESTMENTS INC |
||
|
5/1/1980 |
|
Historical |
$0 |
|
OBY IDA B |
||
| Last Mailed Notice of Value (N.O.V.) Information/History | ||||||||
|---|---|---|---|---|---|---|---|---|
| Year | Date | Market Value | Taxable Market Value | Gross Assessed | Exemption | Net Assessed | ||
|
2026 |
02/23/2026 |
160,500 |
160,500 |
17,655 |
0 |
17,655 |
||
|
2025 |
02/14/2025 |
153,000 |
153,000 |
16,830 |
0 |
16,830 |
||
|
2024 |
02/13/2024 |
152,500 |
152,500 |
16,775 |
0 |
16,775 |
||
|
2023 |
02/14/2023 |
63,500 |
63,500 |
6,985 |
0 |
6,985 |
||
|
2022 |
03/15/2022 |
56,000 |
11,801 |
1,298 |
1,298 |
0 |
||
| Property Building Permit History | |||||||||||
|---|---|---|---|---|---|---|---|---|---|---|---|
| Issued | Permit # | Provided by | Bldg # | Description | Est Construction Cost | Status | |||||
| No Building Permit records returned. | |||||||||||
| Click button on building number to access detailed information: | ||||||
|---|---|---|---|---|---|---|
| Bldg # | Vacant/Improved Land | Bldg Description | Year Built | SqFt | # Stories | |
|
1 |
Improved |
Ranch 1 Story |
1959 |
1,167 |
1 Stories |
|