|
|
|
| Larry Stein Oklahoma County Assessor (405) 713-1200 - Public Access System |
|
|
|
|
|
|
| Real Property Display - Screen Produced 3/18/2026 8:03:15 PM | ||||
|---|---|---|---|---|
| Account: R200551140 | Type: Residential | Location: |
14900 SE 79TH ST |
|
| Building Name/Occupant: |
|
OKLAHOMA CITY |
||
| Owner Name 1: | RAMSEY FAMILY JOINT TRUST |
Parcel PIN#: |
1337-20-055-1140 |
|
| Owner Name 2: | 1/4 section #: |
1337 |
||
| Owner Name 3: | Parent Acct: |
|
||
| Billing Address: | 14900 SE 79TH ST | Tax District: |
|
|
| City, State, Zip | CHOCTAW, OK 73020 | School System: |
Choctaw #4 |
|
|
Country: (If noted) |
UNITED STATES |
Land Size: |
1.3324 Acres |
|
|
Land Value: 68,741 |
|
|||
|
Sect 35-T11N-R1W Qtr NE |
DEERFIELD ESTATES
Block
002
Lot
002
|
|||
| Full Legal Description: DEERFIELD ESTATES 002 002 |
| Photo & Sketch (if available) | Comp Sales (ordered by relevancy) |
|
||||||||||||||||||
|
||||||||||||||||||||
| Value History (*The County Treasurer 405-713-1300 posts & collects actual tax amounts. Contact information HERE) | |||||||||||||
|---|---|---|---|---|---|---|---|---|---|---|---|---|---|
| Year | Market Value | Taxable Mkt Value | Gross Assessed | Exemption | Net Assessed | Millage | Est. Tax | Tax Savings | |||||
|
2025 |
372,500 |
326,088 |
35,869 |
0 |
35,869 |
132.37 |
$4,748 |
$676 |
|||||
|
2024 |
375,500 |
310,560 |
34,160 |
0 |
34,160 |
131.28 |
$4,485 |
$938 |
|||||
|
2023 |
356,500 |
295,772 |
32,534 |
0 |
32,534 |
131.88 |
$4,291 |
$881 |
|||||
|
2022 |
306,500 |
281,688 |
30,985 |
0 |
30,985 |
130.63 |
$4,048 |
$357 |
|||||
|
2021 |
279,000 |
268,275 |
29,510 |
0 |
29,510 |
129.79 |
$3,830 |
$153 |
|||||
| Property Account Status/Adjustments/Exemptions | ||
|---|---|---|
| Account # | Exemption Description | Amount |
|
R200551140 |
Homestead |
1,000 |
| Property Deed Transaction History (Recorded in the County Clerk's Office) | ||||||||||
|---|---|---|---|---|---|---|---|---|---|---|
| Date | Type | Book | Page | Price | Grantor | Grantee | ||||
|
11/25/2025 |
|
Deeds |
$393,500 |
CALDWELL JOHN ALEXANDER CO TRS |
RAMSEY FAMILY JOINT TRUST |
|||||
|
7/19/2023 |
|
Deeds |
$0 |
CALDWELL JOHN A |
CALDWELL JOHN ALEXANDER CO TRS |
|||||
|
6/10/2019 |
|
Deeds |
$240,000 |
FRY SHANNON & JAMIE |
CALDWELL JOHN A |
|||||
|
3/14/2019 |
|
Deeds |
$62,500 |
SALMON MATT H |
FRY SHANNON & JAMIE |
|||||
|
8/9/2017 |
|
Deeds |
$0 |
WITT AMIE SUZANNE |
SALMON MATT H |
|||||
| Last Mailed Notice of Value (N.O.V.) Information/History | ||||||||
|---|---|---|---|---|---|---|---|---|
| Year | Date | Market Value | Taxable Market Value | Gross Assessed | Exemption | Net Assessed | ||
|
2026 |
02/06/2026 |
390,000 |
390,000 |
42,900 |
0 |
42,900 |
||
|
2025 |
01/31/2025 |
372,500 |
326,088 |
35,869 |
0 |
35,869 |
||
|
2024 |
01/22/2024 |
375,500 |
310,560 |
34,160 |
0 |
34,160 |
||
|
2023 |
01/23/2023 |
356,500 |
295,772 |
32,534 |
0 |
32,534 |
||
|
2022 |
02/22/2022 |
306,500 |
281,688 |
30,985 |
0 |
30,985 |
||
| Property Building Permit History | ||||||
|---|---|---|---|---|---|---|
| Issued | Permit # | Provided by | Bldg # | Description | Est Construction Cost | Status |
|
2/8/1999 |
10266739 |
OKLAHOMA CITY |
1 |
Swimming Pool |
27,000 |
Inactive |
|
10/6/1998 |
10266738 |
OKLAHOMA CITY |
1 |
Main Dwellin |
130,000 |
Inactive |
|
8/4/1998 |
10266737 |
OKLAHOMA CITY |
1 |
Other |
0 |
Inactive |
| Click button on building number to access detailed information: | ||||||
|---|---|---|---|---|---|---|
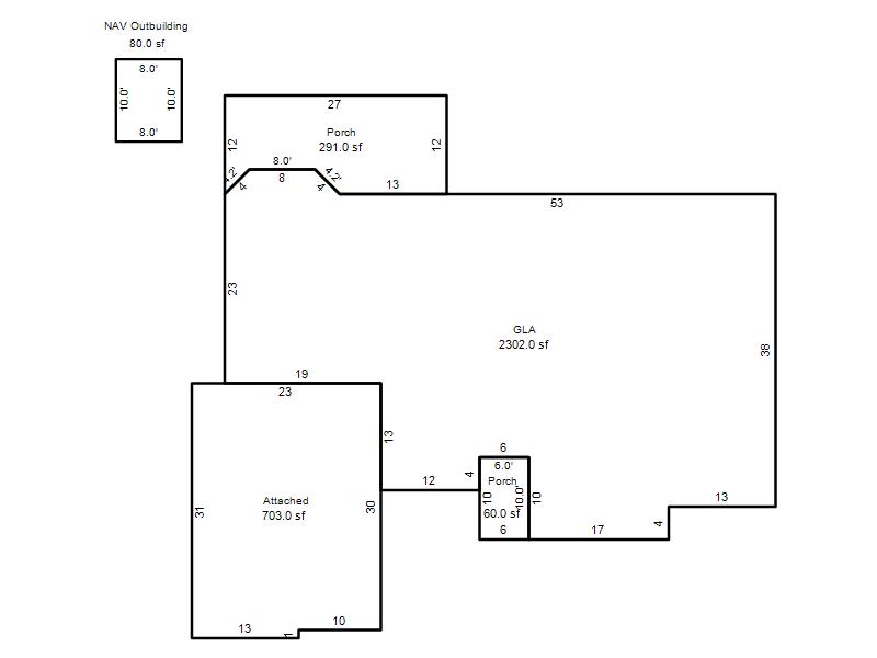
| Bldg # | Vacant/Improved Land | Bldg Description | Year Built | SqFt | # Stories | |
|
1 |
Improved |
Ranch 1 Story |
1999 |
2,302 |
1 Stories |
|