|
|
|
| Larry Stein Oklahoma County Assessor (405) 713-1200 - Public Access System |
|
|
|
|
|
|
| Real Property Display - Screen Produced 3/3/2026 1:00:22 PM | ||||
|---|---|---|---|---|
| Account: R089711575 | Type: Residential | Location: |
1613 NE 38TH ST |
|
| Building Name/Occupant: |
|
OKLAHOMA CITY |
||
| Owner Name 1: | HARDISON HOLDINGS LLC |
Parcel PIN#: |
2654-08-971-1575 |
|
| Owner Name 2: | 1/4 section #: |
2654 |
||
| Owner Name 3: | Parent Acct: |
|
||
| Billing Address: | 604 SAMANTHA LN | Tax District: |
|
|
| City, State, Zip | MOORE, OK 73160-8435 | School System: |
Oklahoma City #89 |
|
|
Country: (If noted) |
Land Size: |
0.1604 Acres |
||
|
Land Value: 13,970 |
|
|||
|
Sect 14-T12N-R3W Qtr SE |
PARK ESTATES 10 ADD
Block
004
Lot
009
|
|||
| Full Legal Description: PARK ESTATES 10 ADD 004 009 |
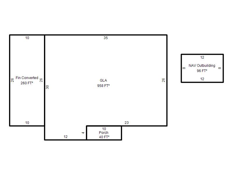
| Photo & Sketch (if available) | Comp Sales (ordered by relevancy) |
|
||||||||||||||||||
|
||||||||||||||||||||
| Value History (*The County Treasurer 405-713-1300 posts & collects actual tax amounts. Contact information HERE) | |||||||||||||
|---|---|---|---|---|---|---|---|---|---|---|---|---|---|
| Year | Market Value | Taxable Mkt Value | Gross Assessed | Exemption | Net Assessed | Millage | Est. Tax | Tax Savings | |||||
|
2025 |
87,000 |
87,000 |
9,570 |
0 |
9,570 |
122.90 |
$1,176 |
$0 |
|||||
|
2024 |
87,000 |
81,375 |
8,951 |
0 |
8,951 |
123.89 |
$1,109 |
$77 |
|||||
|
2023 |
77,500 |
77,500 |
8,525 |
0 |
8,525 |
122.82 |
$1,047 |
$0 |
|||||
|
2022 |
45,500 |
29,950 |
3,293 |
0 |
3,293 |
117.63 |
$388 |
$201 |
|||||
|
2021 |
44,500 |
28,524 |
3,137 |
0 |
3,137 |
117.70 |
$369 |
$207 |
|||||
| Property Account Status/Adjustments/Exemptions | ||
|---|---|---|
| Account # | Exemption Description | Amount |
|
R089711575 |
5% Capped Account |
0 |
| Property Deed Transaction History (Recorded in the County Clerk's Office) | ||||||||||
|---|---|---|---|---|---|---|---|---|---|---|
| Date | Type | Book | Page | Price | Grantor | Grantee | ||||
|
11/5/2024 |
|
Deeds |
$118,000 |
BEAR PROPERTIES LLC |
HARDISON HOLDINGS LLC |
|||||
|
3/25/2022 |
|
Deeds |
$51,500 |
FLOYD CHRISTOPHER |
HAPPY GUYS BUYS HOUSES LLC |
|||||
|
3/24/2022 |
|
Deeds |
$60,000 |
HAPPY GUYS BUYS HOUSES LLC |
LEGACY INVESTMENT HOLDINGS LLC |
|||||
|
3/24/2022 |
|
Deeds |
$75,500 |
LEGACY INVESTMENT HOLDINGS LLC |
BEAR PROPERTIES LLC |
|||||
|
11/16/2020 |
|
Hmstd Off & |
$0 |
MAYFIELD LINDA FLOYD |
FLOYD CHRISTOPHER |
|||||
| Last Mailed Notice of Value (N.O.V.) Information/History | ||||||||
|---|---|---|---|---|---|---|---|---|
| Year | Date | Market Value | Taxable Market Value | Gross Assessed | Exemption | Net Assessed | ||
|
2025 |
02/14/2025 |
87,000 |
87,000 |
9,570 |
0 |
9,570 |
||
|
2024 |
02/13/2024 |
87,000 |
81,375 |
8,951 |
0 |
8,951 |
||
|
2023 |
02/14/2023 |
77,500 |
77,500 |
8,525 |
0 |
8,525 |
||
|
2022 |
03/15/2022 |
45,500 |
29,950 |
3,293 |
0 |
3,293 |
||
|
2021 |
03/19/2021 |
44,500 |
28,524 |
3,137 |
0 |
3,137 |
||
| Property Building Permit History | ||||||
|---|---|---|---|---|---|---|
| Issued | Permit # | Provided by | Bldg # | Description | Est Construction Cost | Status |
|
12/9/2025 |
|
|
|
Remodeled |
|
Active |
| Click button on building number to access detailed information: | ||||||
|---|---|---|---|---|---|---|
| Bldg # | Vacant/Improved Land | Bldg Description | Year Built | SqFt | # Stories | |
|
1 |
Improved |
Ranch 1 Story |
1953 |
958 |
1 Stories |
|