|
|
|
| Larry Stein Oklahoma County Assessor (405) 713-1200 - Public Access System |
|
|
|
|
|
|
| Real Property Display - Screen Produced 3/4/2026 1:44:09 AM | ||||
|---|---|---|---|---|
| Account: R086153800 | Type: Residential | Location: |
1319 NE 38TH ST |
|
| Building Name/Occupant: |
|
OKLAHOMA CITY |
||
| Owner Name 1: | PETTEL NEEV |
Parcel PIN#: |
2655-08-615-3800 |
|
| Owner Name 2: | 1/4 section #: |
2655 |
||
| Owner Name 3: | Parent Acct: |
|
||
| Billing Address: | 2001 ATLANTIC SHORES BLVD, Unit 520 | Tax District: |
|
|
| City, State, Zip | HALLANDALE BEACH, FL 33009 | School System: |
Oklahoma City #89 |
|
|
Country: (If noted) |
UNITED STATES |
Land Size: |
0.1616 Acres |
|
|
Land Value: 14,080 |
|
|||
|
Sect 14-T12N-R3W Qtr SW |
CUTLERS ADDITION
Block
001
Lot
000
|
|||
| Full Legal Description: CUTLERS ADDITION 001 000 LOTS 18 & 19 & W5FT OF LOT 20 |
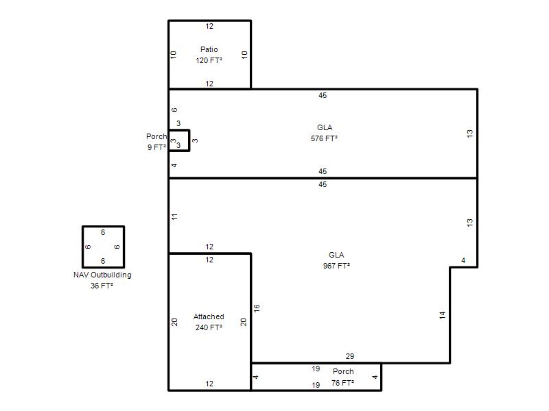
| Photo & Sketch (if available) | Comp Sales (ordered by relevancy) |
|
||||||||||||||||||
|
||||||||||||||||||||
| Value History (*The County Treasurer 405-713-1300 posts & collects actual tax amounts. Contact information HERE) | |||||||||||||
|---|---|---|---|---|---|---|---|---|---|---|---|---|---|
| Year | Market Value | Taxable Mkt Value | Gross Assessed | Exemption | Net Assessed | Millage | Est. Tax | Tax Savings | |||||
|
2025 |
142,500 |
142,500 |
15,675 |
0 |
15,675 |
122.90 |
$1,926 |
$0 |
|||||
|
2024 |
143,500 |
143,500 |
15,785 |
0 |
15,785 |
123.89 |
$1,956 |
$0 |
|||||
|
2023 |
157,000 |
157,000 |
17,270 |
0 |
17,270 |
122.82 |
$2,121 |
$0 |
|||||
|
2022 |
103,500 |
103,500 |
11,385 |
0 |
11,385 |
117.63 |
$1,339 |
$0 |
|||||
|
2021 |
69,500 |
16,380 |
1,801 |
1,801 |
0 |
117.70 |
$0 |
$900 |
|||||
| Property Account Status/Adjustments/Exemptions | ||
|---|---|---|
| Account # | Exemption Description | Amount |
|
R086153800 |
5% Capped Account |
0 |
| Property Deed Transaction History (Recorded in the County Clerk's Office) | |||||||
|---|---|---|---|---|---|---|---|
| Date | Type | Book | Page | Price | Grantor | Grantee | |
|
5/20/2022 |
|
Deeds |
$147,000 |
COLLINS JOYCE T |
PETTEL NEEV |
||
|
11/30/2021 |
|
Deeds |
$95,000 |
DAVIS EWERT F |
SOUP TO NUTS LLC |
||
|
11/30/2021 |
|
Deeds |
$105,000 |
SOUP TO NUTS LLC |
COLLINS JOYCE T |
||
|
5/22/1995 |
|
Historical |
$0 |
DAVIS EWERT F & LESLIE J |
DAVIS EWERT F |
||
|
11/11/1911 |
|
Historical |
$0 |
|
DAVIS EWERT F & LESLIE J |
||
| Last Mailed Notice of Value (N.O.V.) Information/History | ||||||||
|---|---|---|---|---|---|---|---|---|
| Year | Date | Market Value | Taxable Market Value | Gross Assessed | Exemption | Net Assessed | ||
|
2026 |
02/23/2026 |
177,500 |
149,625 |
16,458 |
0 |
16,458 |
||
|
2023 |
02/14/2023 |
157,000 |
157,000 |
17,270 |
0 |
17,270 |
||
|
2022 |
03/15/2022 |
103,500 |
103,500 |
11,385 |
0 |
11,385 |
||
|
2021 |
03/19/2021 |
69,500 |
16,380 |
1,801 |
1,801 |
0 |
||
|
2020 |
03/10/2020 |
60,500 |
16,380 |
1,801 |
1,801 |
0 |
||
| Property Building Permit History | |||||||||||
|---|---|---|---|---|---|---|---|---|---|---|---|
| Issued | Permit # | Provided by | Bldg # | Description | Est Construction Cost | Status | |||||
| No Building Permit records returned. | |||||||||||
| Click button on building number to access detailed information: | ||||||
|---|---|---|---|---|---|---|
| Bldg # | Vacant/Improved Land | Bldg Description | Year Built | SqFt | # Stories | |
|
1 |
Improved |
Ranch 1 Story |
1949 |
1,543 |
1 Stories |
|